Prodej bytu 1+kk, Praha, Formanská, 33 m2 (ID: 2773567)

Formanská, Praha, Újezd u Průhonic

5 690 000 Kč /za nemovitost HYPOTÉKA od 25 431 Kč /za měsíc

(cena je vč. provize RK a právního servisu)

Prověřené firmy v Praze 4

Stěhovací služby

Výkup a prodej starého nábytku

Informace k bytu

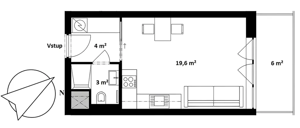
V zastoupení majitele nabízíme prodej skeletové novostavby z roku 2022, v osobním vlastnictví, dispozice 1+kk o výměře 27m2, lodžie o výměře 6 m² a venkovní parkovací stání, 15 m2 (zahrnuto v ceně nemovitosti).
Moderní byt je umístěný ve zvýšeném přízemí residenčního projektu Rezidence Stříbrná Zahrada (kolaudace domu 5/2022).

Světlý byt s orientaci na S/Z se skládá z:

Koupelny s WC a sprchou s bezhlučným automatickým odvětráním,
obývacího pokoje s kuchyňskou linkou s indukční varnou deskou, digestoří, myčkou a multifunkční mikrovlnnou trouboou, klimatizací.
Podlahové vytápění, okna trojsklo s dřevěným okenním rámem,venkovní hliníkové žaluzie s ovládáním, plovoucí podlaha-třívrstvá v kombinaci s dlažbou, rekuperační jednotka.
K dispozici je rovněž zděná sklepní kóje, 2m2.

Přímo před domem je zastávka autobusu, směr metro Opatov (linka „C“) nebo Průhonice a Čestlice. 5 minut autem od OC Čestlice nebo Westfield Chodov.

Financovat lze vlastními zdroji, či hypotečním úvěrem, který Vám rádi zařídíme. Ideální startovací byt pro mladší, či ideální investiční byt.

Vřele doporučuji.

Parametry bytu

Cena
5 690 000 Kč /za nemovitost Spočítat hypotéku
Poznámka k ceně
cena je vč. provize RK a právního servisu
Náklady na bydlení
1850
Aktualizováno
8. 1. 2026
Adresa
Formanská, Praha, Újezd u Průhonic
ID
FO1133
Stavba
Cihlová
Stav objektu
Novostavba
Patro
2. z 4
Vybaveno
Ano
Lokalita objektu
Okraj obce
Vlastnictví
Osobní
Užitná plocha
33 m2
Třída energetické náročnosti
B - Velmi úsporná
Elektřina
230V
Plyn
Plynovod
Odpad
Veřejná kanalizace
Komunikace
Betonová, Dlážděná, Asfaltová
Telekomunikace
Kabelová televize
Doprava
Dálnice, Silnice, Autobus
Voda
Vodovod
Topné těleso
Podlahové vytápění
Zdroj topení
Centrální dálkové
Zdroj teplé vody
Centrální dálkový ohřev
Balkon
Sklep
Výtah
Bezbarierový přístup

Kontaktovat makléře

Máte zájem o tento byt?

Tímto, v souladu s nařízením Evropského parlamentu a Rady (EU) 2016/679, v platném znění, prohlašuji, že mi je alespoň 16 let a uděluji tak svůj souhlas se zpracováním zadaných údajů (jméno, telefon, e-mail, ip adresa) společnosti B3 Technology, s.r.o., IČ: 07330600, se sídlem Novostavby 126/23, 435 11 Lom (správce dat), za účelem předání dotazu z tohoto formuláře Vámi vybranému inzerentovi a zpětného kontaktování mé osoby. Osobní údaje bude správce zpracovávat manuálně i automaticky přímo prostřednictvím svých zaměstnanců. Informace předané tímto formulářem budou uloženy v databázi správce maximálně po dobu 10 let. Odvolání souhlasu s uložením a zpracováním poskytnutých dat lze e-mailem na info@realitypro.eu. V případě podezření na neoprávněné použití Vámi poskytnutých údajů máte právo předat podnět k šetření Úřadu pro ochranu osobních údajů. Více informací
Chystáte se prodat nemovitost?
Pomůžeme Vám!

Inzerát si prohlédlo 0 lidí

Prodejce

Bohumír Kocián

Bohumír Kocián

Hlídací pes

Chcete dostávat emailem podobné nabídky prodeje bytů 1+kk v Praze 4?

Podobné nemovitosti