Prodej rodinného domu, Veverské Knínice, 99 m2 (ID: 2773201)

Veverské Knínice

10 490 000 Kč /za nemovitost HYPOTÉKA od 46 884 Kč /za měsíc
Prověřené firmy v Veverských Knínicích

Informace k domu

Zprostředkujeme Vám prodej pěkného stavebního pozemku o velikosti 800 m2 v obci Veverské Knínice, který nabízíme k prodeji ve výhradním zastoupení majitele, na výstavbu rodinného patrového domu KLASIK 99 s dispozicí 4+KK a užitnou plochou 99 m2. Nabídková cena je včetně pozemku, vodovodní a kanalizační přípojky a katalogové ceny RD na klíč. Pozemek se nachází na kraji obce ve velmi klidné části. Stavební šířka pozemku je cca 15,5 m a délka cca 51,6 m. Vjezd na pozemek vede z obecní cesty.
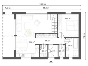
Doporučujeme na pozemku postavit tento rodinný patrový kompaktní 4-pokojový dům KLASIK 99, jehož moderní otevřená dispozice s velkým prosklením, otevřeným přes dvě patra, se stala aktuálním hitem. Je citlivě zakomponovaná do současného rodinného domu a získala tak krásný otevřený prostor v obývací, jídelní a kuchyňské části domu. Skrze velké prosklené dveře lze přejít přímo na terasu před domem. V pokoji pro hosty nebo ložnici v patře s výhledem skrze obrovské prosklení bude zážitek usínat. Pokud preferujete klid, dům nabízí další dvě velké místnosti poskytující naprosté soukromí. Design domu, prosklení a exteriérové provedení je nádhernou ukázkou toho, jak sladit moderní dům s praktickými požadavky rodiny. Věříme, že si ho budete dlouho užívat.
Provedení domu 4+kk
Užitná plocha 99 m2
Zastavěná plocha vč. terasy a stání 102 m2
Rozměry domu 13.1 x 7.8 m
Proč si vybrat dům od RD Rýmařov? Tepelné čerpadlo v ceně domu, čerpadlo vzduch - vzduch v zimě dům vyhřeje, v létě zase ochladí v ceně domu, fotovoltaická elektrárna v ceně domu. Systém ON GRID s akumulací do zásobníku TUV: využívá sluneční energii pro ohřev užitkové vody v 200 litrovém zásobníku. Základová deska je v ceně domu - ušetříte, a navíc vám odpadne spousta starostí.
Veverské Knínice jsou obec v okrese Brno-venkov v Jihomoravském kraji. Leží na rozhraní Boskovické brázdy a Křižanovské vrchoviny. Krásná příroda v okolí obce poskytuje velké možnosti pro volnočasovou aktivitu v blízkosti Brněnské přehrady a hradu Veveří. Ve Veverských Knínicích můžete navštívit kapličku sv. Ludmily s kamenem z Araratu, případně zrekonstruovanou sokolovnu. Pro výlety do okolí se hodí Podkomorské lesy s památníkem Helenky z Pohádky máje, nebo se můžete vydat na nedalekou vyhlídku Trůn. Mezi další blízké cíle patří Jarošův mlýn ve Veverské Bítýšce , hrad Veveří nebo Auto-motodrom Brno v Ostrovačicích. Obec je součástí dobrovolného svazku obcí Panství hradu veverského. V současné době je v obci 332 domů a žije tu přibližně 954 obyvatel. Obec je vzdálená cca 10 km od města Rosice a cca 20 Km západně od města Brno. Sjezd z dálnice D1 je v blízkosti 3 km u obce Ostrovačice a v centru Brna lze být autem za 15 minut. Vizualizace RD k výstavbě je pouze ilustrativní. Nabídku doporučujeme a se zajištěním financování Vám rádi pomůžeme.
Energetický štítek: B - Úsporná dle vyhlášky č. 264/2020 Sb.

Parametry domu

Cena
10 490 000 Kč /za nemovitost Spočítat hypotéku
Aktualizováno
21. 3. 2026
Adresa
Veverské Knínice
ID
N00013
Stavba
Dřevěná
Stav objektu
Projekt
Typ objektu
Patrový
Druh objektu
Samostatný
Lokalita objektu
Okraj obce
Vlastnictví
Osobní
Užitná plocha
99 m2
Zastavěná plocha
102 m2
Plocha pozemku
800 m2
Třída energetické náročnosti
B - Velmi úsporná
Ukazatel energetické náročnosti
0.16 kWh/m2 za rok
Elektřina
230V
Odpad
Veřejná kanalizace
Topení
Ústřední elektrické
Telekomunikace
Kabelové rozvody
Doprava
Dálnice, Silnice, Autobus
Voda
Vodovod

Kontaktovat makléře

Máte zájem o tento dům?

Tímto, v souladu s nařízením Evropského parlamentu a Rady (EU) 2016/679, v platném znění, prohlašuji, že mi je alespoň 16 let a uděluji tak svůj souhlas se zpracováním zadaných údajů (jméno, telefon, e-mail, ip adresa) společnosti B3 Technology, s.r.o., IČ: 07330600, se sídlem Novostavby 126/23, 435 11 Lom (správce dat), za účelem předání dotazu z tohoto formuláře Vámi vybranému inzerentovi a zpětného kontaktování mé osoby. Osobní údaje bude správce zpracovávat manuálně i automaticky přímo prostřednictvím svých zaměstnanců. Informace předané tímto formulářem budou uloženy v databázi správce maximálně po dobu 10 let. Odvolání souhlasu s uložením a zpracováním poskytnutých dat lze e-mailem na info@realitypro.eu. V případě podezření na neoprávněné použití Vámi poskytnutých údajů máte právo předat podnět k šetření Úřadu pro ochranu osobních údajů. Více informací
Chystáte se prodat nemovitost?
Pomůžeme Vám!

Inzerát si prohlédlo 2 lidí

Prodejce

Ing. Hana Vaculíková

Ing. Hana Vaculíková

Hlídací pes

Chcete dostávat emailem podobné nabídky prodeje rodinných domů v Veverských Knínicích?

Podobné nemovitosti