Pronájem bytu 5+1, Praha - Libeň, Přádova, 130 m2 (ID: 2773136)

Přádova, Praha, Libeň

39 000 Kč /za měsíc Získejte výhodnou HYPOTÉKU

(+ 2 500,- + převod elektřiny a plynu na nájemce (odhad spotřeby 3 500 - 4 500 Kč))

Prověřené firmy v Praze 8

Stěhovací služby

Výkup a prodej starého nábytku

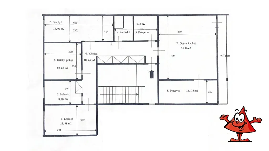
Informace k bytu

Pronájem zrekonstruovaného světlého bytu o užitné ploše cca 135 m2 5+1+zasklená lodžie + 2xWC + 2 x koupelna + garáž (+ možnost další garáže) + sklepní kóje, 122,9 m2 + zasklená prostorná lodžie 10 m2 + sklepní kóje 2,7 m2 + garáž. Byt v cihlovém domě v klidné vilové čtvrti Praha 8 – Libeň, ul. Přádova - jde o místo cca 300m vzdálené od tramvajové zastávky Hercovka a cca 500 m od stanice metra Kobylisy (linka C), kde se kříží další tramvajové linky. Místo je to tedy s výbornou dopravní obslužností, přičemž se v okolí celkem bezproblémově parkuje auty. Z bytu jsou krásné výhledy do okolí, a jde o slunný byt. Byt má čtyři neprůchozí pokoje, dvě plnohodnotné koupelny s WC, množství úložného prostoru v podobě vestavěných skříní, sklepní kóje a prostoru v samostatné uzamykatelné garáži. Rozměry pohodlně velké garáže: vjezdová vrata jsou široká 260 cm, výška vrat je přes 220 cm, výška garáže je cca 260 cm, šířka garáže je 270 cm a délka garáže je 495 cm - jde tedy o pohodlnou velkou garáž. Podlahy bytu: dlažba, koberce, dubové parkety. Na stěnách luxusní sádrové omítky. Topení vlastní ústřední na plynový kotel i s vlastním ohřevem vody. Kuchyně vybavená: sporákem (plyn a elektřina), lednice s mrazákem, pračka, myčka, mikrovlnná trouba, masivní protipožární bezpečnostní dveře. Nábytek možno doplnit dle přání nájemníka. Dostupný satelit, internet, telefonní linka. K dispozici další garáž za příplatek 2 500,-Kč + služby. Byt je v 1. patře (2. nadzemní podlaží) domu s dvěma podlažími (nad bytem tedy již nikdo nebydlí). Byt je cca 10 let po kompletní rekonstrukci. Nastěhování možné dle dohody - volné ihned. Cena 39 000 + poplatky cca 2 500 + elektřina a plyn, které se převádí na nájemce. Parkování před domem pro rezidenty je velmi bezproblémové. Nově: zateplení fasády a rekonstrukce střechy. Připojení k internetu je možné bez problému. Pro info volejte makléře. Nájemce při uzavření smlouvy hradí 39 000 Kč nájem + 2 500 Kč poplatky na první měsíc bydlení + 50 000 Kč jistotu + 47 190 Kč provizi RK. Byt si lze pronajímat dlouhodobě, přičemž minimální lhůta nájmu je jeden rok. Dům je energetická třída D.

Parametry bytu

Cena
39 000 Kč /za měsíc
Poznámka k ceně
+ 2 500,- + převod elektřiny a plynu na nájemce (odhad spotřeby 3 500 - 4 500 Kč)
Aktualizováno
8. 1. 2026
Adresa
Přádova, Praha, Libeň
ID
NR09591
Stavba
Cihlová
Stav objektu
Velmi dobrý
Patro
2. z 2
Vybaveno
Částečně
Vlastnictví
Osobní
Užitná plocha
130 m2
Třída energetické náročnosti
D - Méně úsporná
Ukazatel energetické náročnosti
128 kWh/m2 za rok
Garáž
Sklep
Lodžie
Parkování

Kontaktovat makléře

Máte zájem o tento byt?

Tímto, v souladu s nařízením Evropského parlamentu a Rady (EU) 2016/679, v platném znění, prohlašuji, že mi je alespoň 16 let a uděluji tak svůj souhlas se zpracováním zadaných údajů (jméno, telefon, e-mail, ip adresa) společnosti B3 Technology, s.r.o., IČ: 07330600, se sídlem Novostavby 126/23, 435 11 Lom (správce dat), za účelem předání dotazu z tohoto formuláře Vámi vybranému inzerentovi a zpětného kontaktování mé osoby. Osobní údaje bude správce zpracovávat manuálně i automaticky přímo prostřednictvím svých zaměstnanců. Informace předané tímto formulářem budou uloženy v databázi správce maximálně po dobu 10 let. Odvolání souhlasu s uložením a zpracováním poskytnutých dat lze e-mailem na info@realitypro.eu. V případě podezření na neoprávněné použití Vámi poskytnutých údajů máte právo předat podnět k šetření Úřadu pro ochranu osobních údajů. Více informací
Chystáte se prodat nemovitost?
Pomůžeme Vám!

Inzerát si prohlédlo 0 lidí

Prodejce

Pavel Novák

Pavel Novák

Hlídací pes

Chcete dostávat emailem podobné nabídky pronájmu bytů 5+1 v Praze 8?

Podobné nemovitosti