Prodej rodinného domu, Bohumín, 100 m2 (ID: 2769743)

Bohumín, Záblatí

7 290 000 Kč /za nemovitost HYPOTÉKA od 32 582 Kč /za měsíc
Prověřené firmy v Bohumíně

Informace k domu

Nabízíme k prodeji novostavbu rodinného domu o dispozici 4+kk, nacházející se na pomezí Záblatí a Rychvaldu.
Tento nízkoenergetický bungalov je postaven z kvalitních porobetonových tvárnic s kontaktním zateplením, stropní konstrukce a krov jsou dřevěné, střešní krytina je z poplastovaného plechu. Dům disponuje plastovými okny s izolačním trojsklem, ohřev vody zajišťuje bojler s tepelným čerpadlem a podlahové vytápění vám poskytne maximální komfort.

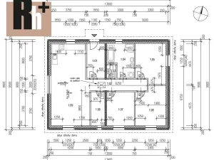
Dispozice domu je velmi prakticky navržená: vstupujete do zádveří, které vás dovede do chodby, odkud se dostanete do prostorného obývacího pokoje propojeného s kuchyní a jídelnou. Z obývacího pokoje je přístup na prostornou terasu. Na protější straně se nachází ložnice a dva pokoje, které jsou dostatečné pro vytvoření spací i hrací zóny, všechny pokoje mají samostatný vstup z chodby. Koupelna je vybavena jak vanou, tak sprchovým koutem, toaleta je oddělena a k dispozici je také technická místnost s přípojkou na pračku a sušičku. Součástí domu je rovněž půdní prostor o velikosti 16 m², který je pochozí.

Interiér nemovitosti je zařízen v moderních, jednoduchých a esteticky jemných barvách. Kuchyňská linka není součástí prodeje.
Venkovní úpravy zahrnují srovnaný terén, chodník kolem celého domu a nezastřešenou terasu ze zámkové dlažby. Před domem jsou dvě nekrytá parkovací místa.

Nemovitost je napojena na obecní vodovod a kanalizaci.
Příjezd k domu je zajištěn spoluvlastnickým podílem na společné komunikaci.

Fotografie interiéru jsme použili z již prodaného domu totožného typu. Dokončení prací na RD cca listopad.

Záblatí je klidná a příjemná lokalita, ideální pro pohodlné bydlení v souladu s přírodou, přitom v blízkosti centra města.
Výborná dopravní dostupnost do různých směrů – Ostrava, Rychvald, Orlová, nájezd na dálnici je vzdálen přibližně 7 minut.

V případě zájmu o prohlídku nás neváhejte kontaktovat.
ID: 140 160

Parametry domu

Cena
7 290 000 Kč /za nemovitost Spočítat hypotéku
Aktualizováno
5. 1. 2026
Adresa
Bohumín, Záblatí
ID
140160
Stavba
Cihlová
Stav objektu
Novostavba
Druh objektu
Samostatný
Užitná plocha
100 m2
Zastavěná plocha
100 m2
Plocha pozemku
613 m2
Třída energetické náročnosti
B - Velmi úsporná

Kontaktovat makléře

Máte zájem o tento dům?

Tímto, v souladu s nařízením Evropského parlamentu a Rady (EU) 2016/679, v platném znění, prohlašuji, že mi je alespoň 16 let a uděluji tak svůj souhlas se zpracováním zadaných údajů (jméno, telefon, e-mail, ip adresa) společnosti B3 Technology, s.r.o., IČ: 07330600, se sídlem Novostavby 126/23, 435 11 Lom (správce dat), za účelem předání dotazu z tohoto formuláře Vámi vybranému inzerentovi a zpětného kontaktování mé osoby. Osobní údaje bude správce zpracovávat manuálně i automaticky přímo prostřednictvím svých zaměstnanců. Informace předané tímto formulářem budou uloženy v databázi správce maximálně po dobu 10 let. Odvolání souhlasu s uložením a zpracováním poskytnutých dat lze e-mailem na info@realitypro.eu. V případě podezření na neoprávněné použití Vámi poskytnutých údajů máte právo předat podnět k šetření Úřadu pro ochranu osobních údajů. Více informací
Chystáte se prodat nemovitost?
Pomůžeme Vám!

Inzerát si prohlédlo 1 lidí

Prodejce

Bc. Eva Hozová

Bc. Eva Hozová

Hlídací pes

Chcete dostávat emailem podobné nabídky prodeje rodinných domů v Bohumíně?

Podobné nemovitosti