Prodej rodinného domu, Hluboká nad Vltavou, Smetanova, 90 m2

Smetanova, Hluboká nad Vltavou

9 350 000 Kč /za nemovitost HYPOTÉKA od 41 789 Kč /za měsíc
Prověřené firmy v Hluboké nad Vltavou

Výkup a prodej starého nábytku

Informace k domu

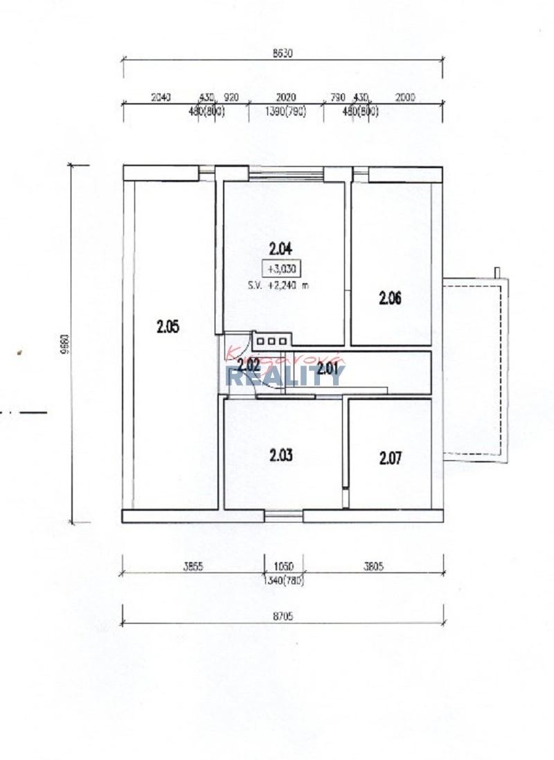
Doporučuji samostatný rodinný dům v nádherném místě a klidné ulici Hluboká nad Vltavou Zámostí. Jedná se o dům v původním, zachovalém stavu postavený v roce 1947, se zastřešenou verandou, komplet podsklepený (kotelna, prádelna, sklep, dílna), zastavěná plocha 90m2, s dispozicí 2 pokoje ve zvýšeném přízemí a kuchyně, koupelna a WC s komorou celkem 63m2, podkroví jeden pokoj s kuchyní, a půda celkem 66m2. Sklep je suchý, prostorný, rozdělený na 4 místnosti celkem 57m2. Vytápění řešené etážové elektrickým kotlem, ohřev vody přes elektrický bojler. Plyn v domě zavedený není, je v ulici. Dřevěná špaletová okna, zajímavé prvky například vestavěná skříň, vestavěná knihovnička. Stav domu je sice původní, ale zachovalý. Sřecha nová. Na pozemku zahrady se nachází menší stavby pro chov drobných zvířat, garáž s kolnou, studna, zahrada je odkanalizovaná. Dům je s investicí na rekonstrukci velmi zajímavá nemovitost pro rodinné bydlení. Okolí nemovitosti: zámek Hluboká, obchody, školka Montessori, základní škola, plovárna, golfové hřiště, sportovní přístav, vlakové nádraží, veškerá infastruktura, cyklostezky, zologická zahrada, mezinárodní škola, kino, dobré spojení do krajského města. Cena: 9.350.000,-Kč k jednání. Energetický štítek se nyní připravuje. Volné ihned po zaplacení.

Parametry domu

Cena
9 350 000 Kč /za nemovitost Spočítat hypotéku
Aktualizováno
11. 2. 2026
Adresa
Smetanova, Hluboká nad Vltavou
ID
742
Stavba
Cihlová
Stav objektu
Dobrý
Typ objektu
Přízemní
Druh objektu
Samostatný
Lokalita objektu
Klidná část obce
Užitná plocha
90 m2
Zastavěná plocha
109 m2
Plocha pozemku
721 m2
Plocha zahrady
612 m2
Třída energetické náročnosti
G - Mimořádně nehospodárná
Elektřina
230V, 400V
Plyn
Plynovod
Odpad
Veřejná kanalizace
Topení
Ústřední elektrické
Voda
Vodovod
Topné těleso
Radiátory
Zdroj topení
Elektrokotel
Zdroj teplé vody
Bojler - elektro
Garáž
Sklep
Výtah
Bezbarierový přístup
Parkování

Kontaktovat makléře

Realitní kancelář

Logo KRIGAROVÁ REALITY

KRIGAROVÁ REALITY

Žižkova 309/12, České Budějovice

Chystáte se prodat nemovitost?
Pomůžeme Vám!

Máte zájem o tento dům?

Tímto, v souladu s nařízením Evropského parlamentu a Rady (EU) 2016/679, v platném znění, prohlašuji, že mi je alespoň 16 let a uděluji tak svůj souhlas se zpracováním zadaných údajů (jméno, telefon, e-mail, ip adresa) společnosti B3 Technology, s.r.o., IČ: 07330600, se sídlem Novostavby 126/23, 435 11 Lom (správce dat), za účelem předání dotazu z tohoto formuláře Vámi vybranému inzerentovi a zpětného kontaktování mé osoby. Osobní údaje bude správce zpracovávat manuálně i automaticky přímo prostřednictvím svých zaměstnanců. Informace předané tímto formulářem budou uloženy v databázi správce maximálně po dobu 10 let. Odvolání souhlasu s uložením a zpracováním poskytnutých dat lze e-mailem na info@realitypro.eu. V případě podezření na neoprávněné použití Vámi poskytnutých údajů máte právo předat podnět k šetření Úřadu pro ochranu osobních údajů. Více informací
Chystáte se prodat nemovitost?
Pomůžeme Vám!

Inzerát si prohlédlo 10 lidí

Prodejce

Irena Krigarová

Irena Krigarová

Hlídací pes

Chcete dostávat emailem podobné nabídky prodeje rodinných domů v Hluboké nad Vltavou?

Top nabídky

Podobné nemovitosti