Prodej bytu 2+1, Praha - Libeň, Na stráži, 48 m2

Na stráži, Libeň - Praha 8

7 599 000 Kč /za nemovitost HYPOTÉKA od 33 963 Kč /za měsíc

(Provize 1 % + DPH)

Prověřené firmy v Praze 8

Stěhovací služby

Výkup a prodej starého nábytku

Informace k bytu

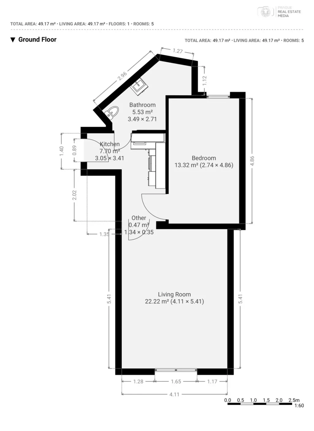
Nabízíme na prodej byt o dispozici 2+1 a velikosti 48 m² na Praze 8 - Libeň. Byt je součástí cihlového domu, prošel kompletní rekonstrukcí a nabízí moderní a komfortní bydlení

Dispozice bytu tvoří předsíň, samostatný kuchyňský kout, koupelna s WC, ložnice orientovaná do vnitrobloku a obývací pokoj s okny do ulice. Dům má udržované společné prostory a menší vnitřní dvůr, který je k dispozici pro obyvatele domu.

Rekonstrukce zahrnuje:
• kompletní výměnu elektroinstalace
• novou kuchyňskou linku se spotřebiči
• kompletní rekonstrukci koupelny a samostatného WC
• nový bojler na ohřev vody
• nové dřevěné podlahy

Možná výměna za Váš byt v Praze a okolí.

Součástí prodeje je také možnost uzavření management contractu – zajišťujeme kompletní rental management pro klienty, kteří hledají investiční nemovitost a chtějí dosáhnout co nejvyššího výnosu z pronájmu.

Pokud vás byt zaujal, neváhejte nás kontaktovat, nejlépe telefonicky!

Parametry bytu

Cena
7 599 000 Kč /za nemovitost Spočítat hypotéku
Poznámka k ceně
Provize 1 % + DPH
Aktualizováno
27. 3. 2026
Adresa
Na stráži, Libeň - Praha 8
ID
N447
Stavba
Cihlová
Stav objektu
Po rekonstrukci
Patro
1. z 4
Typ objektu
Patrový
Vlastnictví
Osobní
Užitná plocha
48 m2
Podlahová plocha
48 m2
Třída energetické náročnosti
E - Nehospodárná
Telekomunikace
Telefon, Internet
Doprava
MHD, Autobus

Kontaktovat makléře

Máte zájem o tento byt?

Tímto, v souladu s nařízením Evropského parlamentu a Rady (EU) 2016/679, v platném znění, prohlašuji, že mi je alespoň 16 let a uděluji tak svůj souhlas se zpracováním zadaných údajů (jméno, telefon, e-mail, ip adresa) společnosti B3 Technology, s.r.o., IČ: 07330600, se sídlem Novostavby 126/23, 435 11 Lom (správce dat), za účelem předání dotazu z tohoto formuláře Vámi vybranému inzerentovi a zpětného kontaktování mé osoby. Osobní údaje bude správce zpracovávat manuálně i automaticky přímo prostřednictvím svých zaměstnanců. Informace předané tímto formulářem budou uloženy v databázi správce maximálně po dobu 10 let. Odvolání souhlasu s uložením a zpracováním poskytnutých dat lze e-mailem na info@realitypro.eu. V případě podezření na neoprávněné použití Vámi poskytnutých údajů máte právo předat podnět k šetření Úřadu pro ochranu osobních údajů. Více informací
Chystáte se prodat nemovitost?
Pomůžeme Vám!

Inzerát si prohlédlo 10 lidí

Prodejce

Call Centrum CAPITAL Trust, a.s

Call Centrum CAPITAL Trust, a.s

Hlídací pes

Chcete dostávat emailem podobné nabídky prodeje bytů 2+1 v Praze 8?

Podobné nemovitosti