Prodej rodinného domu, Dolní Bousov - Vlčí Pole, 213 m2

Dolní Bousov, Vlčí Pole

17 289 000 Kč /za nemovitost HYPOTÉKA od 77 271 Kč /za měsíc

(Cena včetně právního servisu, služeb, provize a servisu RK.)

Prověřené firmy v Dolním Bousově

Pojištění a finance

Informace k domu

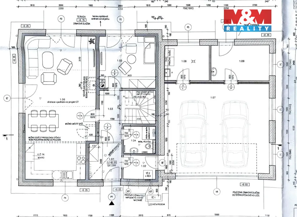
Prodej rodinného domu, 213 m², Vlčí Pole, Dolní Bousov

Takto může vypadat Váš nový domov. Přibližně 25 minut z centra Mladé Boleslavi, v klidné obci Vlčí Pole, nabízíme k prodeji dokončenou novostavbu, která spojuje moderní architekturu, kvalitní materiály a velkorysý prostor. Nemovitost je připravena k okamžitému nastěhování. Majitelé se z osobních důvodů stěhují na Moravu, což vytváří jedinečnou příležitost k pořízení této výjimečné rezidence. Dům s užitnou plochou 213 m² je zasazen do rozlehlé, udržované zahrady o velikosti 1 480 m² a disponuje prostornou garáží o výměře 44 m². Dispozice domu nabízí šest obytných místností rozložených do dvou nadzemních podlaží. Stavba je realizována z kvalitního konstrukčního systému Liapor, který zajišťuje stabilní a příjemné vnitřní klima po celý rok. O efektivní vytápění se stará tepelné čerpadlo, podlahové topení je instalováno v celém domě a v obývacím pokoji je příprava na krb. Osobní návštěva Vám umožní ocenit kvalitu a prostor této nemovitosti. Prosím kontaktujte mě pro termín prohlídky.

Parametry domu

Cena
17 289 000 Kč /za nemovitost Spočítat hypotéku
Poznámka k ceně
Cena včetně právního servisu, služeb, provize a servisu RK.
Aktualizováno
29. 1. 2026
Adresa
Dolní Bousov, Vlčí Pole
ID
922493
Stav objektu
Velmi dobrý
Vybaveno
Částečně
Druh objektu
Samostatný
Lokalita objektu
Okraj obce
Vlastnictví
Osobní
Užitná plocha
213 m2
Plocha pozemku
1649 m2

Kontaktovat makléře

Realitní kancelář

Logo M&M reality

M&M reality

ulice Krakovská 583/9, Praha

Chystáte se prodat nemovitost?
Pomůžeme Vám!

Máte zájem o tento dům?

Tímto, v souladu s nařízením Evropského parlamentu a Rady (EU) 2016/679, v platném znění, prohlašuji, že mi je alespoň 16 let a uděluji tak svůj souhlas se zpracováním zadaných údajů (jméno, telefon, e-mail, ip adresa) společnosti B3 Technology, s.r.o., IČ: 07330600, se sídlem Novostavby 126/23, 435 11 Lom (správce dat), za účelem předání dotazu z tohoto formuláře Vámi vybranému inzerentovi a zpětného kontaktování mé osoby. Osobní údaje bude správce zpracovávat manuálně i automaticky přímo prostřednictvím svých zaměstnanců. Informace předané tímto formulářem budou uloženy v databázi správce maximálně po dobu 10 let. Odvolání souhlasu s uložením a zpracováním poskytnutých dat lze e-mailem na info@realitypro.eu. V případě podezření na neoprávněné použití Vámi poskytnutých údajů máte právo předat podnět k šetření Úřadu pro ochranu osobních údajů. Více informací
Chystáte se prodat nemovitost?
Pomůžeme Vám!
Theleadway banner

Inzerát si prohlédlo 7 lidí

Prodejce

Michele Baruth

Michele Baruth

Hlídací pes

Chcete dostávat emailem podobné nabídky prodeje rodinných domů v Dolním Bousově?

Podobné nemovitosti