Prodej atypického bytu, Špindlerův Mlýn, 60 m2

Špindlerův Mlýn, Přední Labská

5 500 000 Kč /za nemovitost HYPOTÉKA od 24 582 Kč /za měsíc
Prověřené firmy v Špindlerově Mlýně

Informace k bytu

Jedinečný podkrovní byt s věží u Špindlerova Mlýna

Nabízíme k prodeji výjimečný podkrovní byt s vlastním věžovým prostorem, který kombinuje atmosféru horské architektury s praktickým využitím. Byt a dům prošel kompletní rekonstrukcí v roce 2022 a nachází se ve 3. patře historického domu, pouhé 3 km od sjezdovek ve Špindlerově Mlýně.

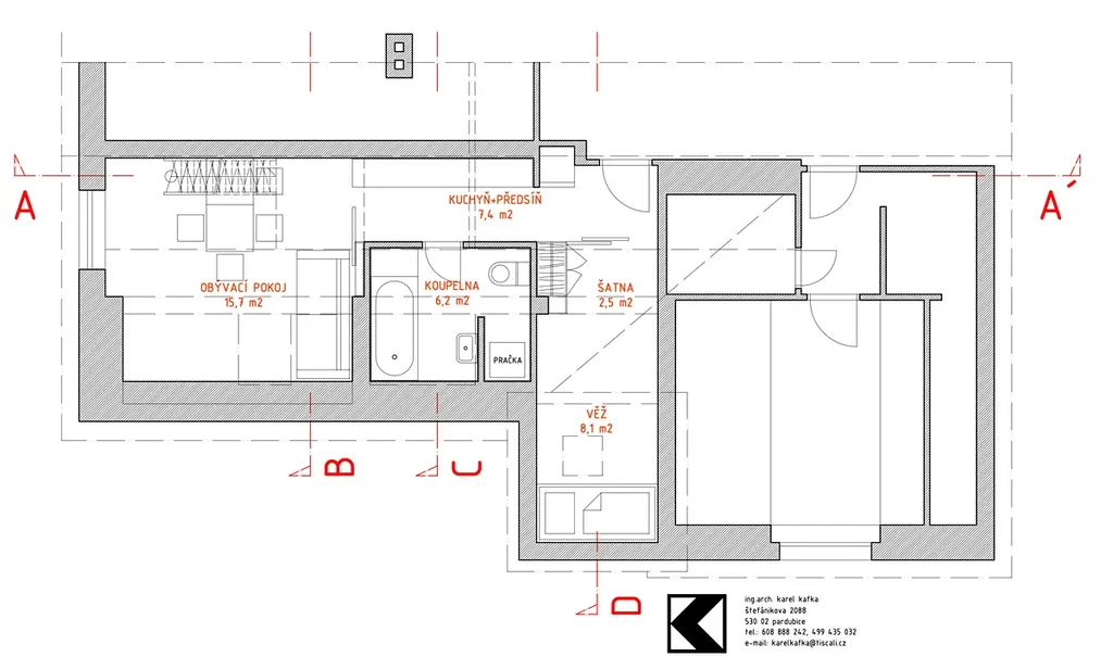
Celková podlahová plocha bytu činí 60 m², z toho 40 m² dle ČSN (plocha nad 1,2 m výšky).


Dispozice bytu:

vstupní chodba

kuchyň

koupelna s vanou a WC

obytný prostor s patrem na spaní (2 lůžka, střešní okno)

šatna

dětský pokoj s palandou a přímým vstupem do věže (ideální jako pracovna nebo knihovna)


Společné prostory a benefity:

společenská místnost s barem, krbem a kulečníkem

sauna s odpočívárnou

lyžárna se sušákem na boty

zahrada s altánem k posezení


Další výhody:

prodej formou převodu 100% podílu ve společnosti s.r.o. vlastnící prodávaný apartmán.(Rychlý a jednoduchý převod, možnost daňové optimalizace a plná kontrola nad nemovitostí prostřednictvím vlastnictví společnosti)

velmi nízké provozní náklady – cca 1 500 Kč / měsíc

klidný dům a výborný sousedský kolektiv


Přehled ploch:

3. NP

kuchyň a předsíň: 7,4 m²

šatna: 2,5 m²

věž – spodní část: 8,1 m²

koupelna s WC: 6,2 m²

obývací pokoj: 15,2 m²

4. NP

úložné prostory nad obývacím pokojem: 4,1 m²

patro na spaní: 10,7 m²

věž – horní část: 6,1 m²


Tato nemovitost je ideální volbou pro rekreační bydlení a není vhodná pro komerční pronájmy. Dům užívají jen vlastníci jednotek - unikátní ve Špindlerově Mlýně.

Parametry bytu

Cena
5 500 000 Kč /za nemovitost Spočítat hypotéku
Aktualizováno
21. 12. 2025
Adresa
Špindlerův Mlýn, Přední Labská
ID
ŠPINDL
Stavba
Cihlová
Stav objektu
Velmi dobrý
Patro
3.
Vlastnictví
Osobní
Užitná plocha
60 m2
Sklep
Parkování

Kontaktovat makléře

Realitní kancelář

SKLADUJ.CZ

Na Poříčí 1079/3a, 11000 Praha, Nové Město, Praha

Chystáte se prodat nemovitost?
Pomůžeme Vám!

Máte zájem o tento byt?

Tímto, v souladu s nařízením Evropského parlamentu a Rady (EU) 2016/679, v platném znění, prohlašuji, že mi je alespoň 16 let a uděluji tak svůj souhlas se zpracováním zadaných údajů (jméno, telefon, e-mail, ip adresa) společnosti B3 Technology, s.r.o., IČ: 07330600, se sídlem Novostavby 126/23, 435 11 Lom (správce dat), za účelem předání dotazu z tohoto formuláře Vámi vybranému inzerentovi a zpětného kontaktování mé osoby. Osobní údaje bude správce zpracovávat manuálně i automaticky přímo prostřednictvím svých zaměstnanců. Informace předané tímto formulářem budou uloženy v databázi správce maximálně po dobu 10 let. Odvolání souhlasu s uložením a zpracováním poskytnutých dat lze e-mailem na info@realitypro.eu. V případě podezření na neoprávněné použití Vámi poskytnutých údajů máte právo předat podnět k šetření Úřadu pro ochranu osobních údajů. Více informací
Chystáte se prodat nemovitost?
Pomůžeme Vám!

Inzerát si prohlédlo 0 lidí

Prodejce

Ing. Jakub Holec, MRICS

Ing. Jakub Holec, MRICS

Hlídací pes

Chcete dostávat emailem podobné nabídky prodeje atypických bytů v Špindlerově Mlýně?

Top nabídky

Podobné nemovitosti