Prodej rodinného domu, Vrábče, 180 m2 (ID: 2751936)

Vrábče, Koroseky

12 900 000 Kč /za nemovitost HYPOTÉKA od 57 655 Kč /za měsíc
Prověřené firmy v Vrábči

Výkup a prodej starého nábytku

Informace k domu

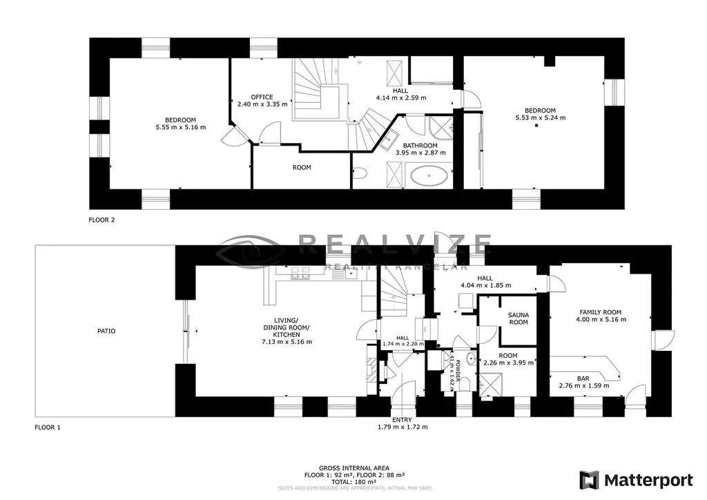
Nabízíme k prodeji samostatně stojící rodinný dům po rekonstrukci, který se nachází v klidné lokalitě Koroseky-Vrábče u Českých Budějovic. Dům má užitnou plochu 180 m2, stojí na pozemku o velikosti 207 m2 a je ideální pro rodinu, která hledá pohodlí, klid a minimum starostí s údržbou.

V domě najdete 4 pokoje, 2 koupelny a garáž pro jedno auto. Dům je rozložen do dvou podlaží, což umožňuje praktické a pohodlné využití prostoru.

Vytápění zajišťuje podlahové topení, topení na tuhá paliva s výměníkem, tepelné čerpadlo a fotovoltaika – to vše výrazně snižuje náklady na provoz.
Napojení na obecní vodovod, odpad řešen čtyřkomorovým septikem.

Dům se nachází ve velmi klidné lokalitě obklopené přírodou, ideální pro ty, kteří chtějí klidné bydlení bez nutnosti starat se o velký pozemek – zahrada je přesně tak akorát.

Skvělá volba pro rodinu, která hledá harmonické a udržitelné bydlení mimo městský ruch.

Více informací na vyžádání u makléře. Budeme se těšit na prohlídce.

Parametry domu

Cena
12 900 000 Kč /za nemovitost Spočítat hypotéku
Aktualizováno
7. 12. 2025
Adresa
Vrábče, Koroseky
ID
00526
Stavba
Smíšená
Stav objektu
Velmi dobrý
Vybaveno
Ano
Druh objektu
Samostatný
Lokalita objektu
Polosamota
Užitná plocha
180 m2
Zastavěná plocha
126 m2
Plocha pozemku
207 m2
Třída energetické náročnosti
G - Mimořádně nehospodárná
Komunikace
Asfaltová
Telekomunikace
Telefon, Internet
Doprava
Silnice
Voda
Vodovod
Topné těleso
Podlahové vytápění, Radiátory, Krbová kamna
Zdroj teplé vody
Tepelné čerpadlo
Garáž
Výtah

Kontaktovat makléře

Realitní kancelář

Realvize - realitní kancelář

Staroměstská 1504/1, České Budějovice

Chystáte se prodat nemovitost?
Pomůžeme Vám!

Máte zájem o tento dům?

Tímto, v souladu s nařízením Evropského parlamentu a Rady (EU) 2016/679, v platném znění, prohlašuji, že mi je alespoň 16 let a uděluji tak svůj souhlas se zpracováním zadaných údajů (jméno, telefon, e-mail, ip adresa) společnosti B3 Technology, s.r.o., IČ: 07330600, se sídlem Novostavby 126/23, 435 11 Lom (správce dat), za účelem předání dotazu z tohoto formuláře Vámi vybranému inzerentovi a zpětného kontaktování mé osoby. Osobní údaje bude správce zpracovávat manuálně i automaticky přímo prostřednictvím svých zaměstnanců. Informace předané tímto formulářem budou uloženy v databázi správce maximálně po dobu 10 let. Odvolání souhlasu s uložením a zpracováním poskytnutých dat lze e-mailem na info@realitypro.eu. V případě podezření na neoprávněné použití Vámi poskytnutých údajů máte právo předat podnět k šetření Úřadu pro ochranu osobních údajů. Více informací
Chystáte se prodat nemovitost?
Pomůžeme Vám!

Inzerát si prohlédlo 13 lidí

Prodejce

Filip Navrátil

Filip Navrátil

Hlídací pes

Chcete dostávat emailem podobné nabídky prodeje rodinných domů v Vrábči?

Top nabídky

Podobné nemovitosti