Prodej pozemku pro bydlení, Česká Kamenice, Lipová, 1696 m2 (ID: 2746299)

Lipová, Česká Kamenice

1 999 000 Kč /za nemovitost HYPOTÉKA od 8 934 Kč /za měsíc

(včetně poplatků a právního servisu)

Prověřené firmy v České Kamenici

Okna a dveře

Rekonstrukce

Zámečnické práce

Informace k pozemku

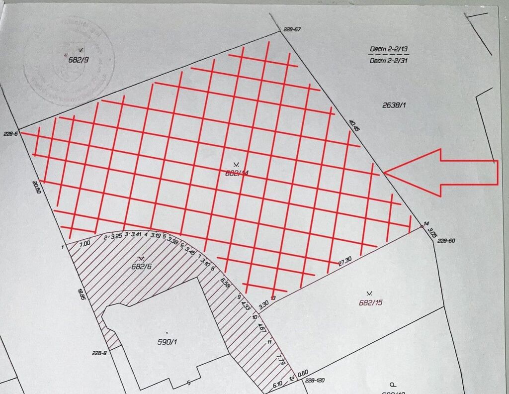
Prodej stavebního pozemku v České Kamenici Nabízíme vám stavební pozemek v České Kamenici o výměře 1696 m2. Nachází se na kraji města nedaleko jeho centra. Tento velice zajímavý pozemek je na slunném místě při silnici vedoucí do Žandova. Elektřina a voda je na hranici pozemku.
Pozemek je v územním plánu označen jako BI a je tedy určen pro výstavbu především rodinných domů.
Město má velice dobrou strategickou polohu. V Okresních městech Děčín a Česká Lípa jste do 20 minut. Oblíbený národní park České Švýcarsko je rovněž nedaleko.
Občanská vybavenost je samozřejmostí. S financováním také pomůžeme.
Pro více informací si zavolejte nebo napište.
Tomáš Fodor realitní makléř.

Parametry pozemku

Cena
1 999 000 Kč /za nemovitost Spočítat hypotéku
Poznámka k ceně
včetně poplatků a právního servisu
Aktualizováno
1. 12. 2025
Adresa
Lipová, Česká Kamenice
ID
841
Plocha pozemku
1696 m2
Bezbarierový přístup

Kontaktovat makléře

Máte zájem o tento pozemek?

Tímto, v souladu s nařízením Evropského parlamentu a Rady (EU) 2016/679, v platném znění, prohlašuji, že mi je alespoň 16 let a uděluji tak svůj souhlas se zpracováním zadaných údajů (jméno, telefon, e-mail, ip adresa) společnosti B3 Technology, s.r.o., IČ: 07330600, se sídlem Novostavby 126/23, 435 11 Lom (správce dat), za účelem předání dotazu z tohoto formuláře Vámi vybranému inzerentovi a zpětného kontaktování mé osoby. Osobní údaje bude správce zpracovávat manuálně i automaticky přímo prostřednictvím svých zaměstnanců. Informace předané tímto formulářem budou uloženy v databázi správce maximálně po dobu 10 let. Odvolání souhlasu s uložením a zpracováním poskytnutých dat lze e-mailem na info@realitypro.eu. V případě podezření na neoprávněné použití Vámi poskytnutých údajů máte právo předat podnět k šetření Úřadu pro ochranu osobních údajů. Více informací
Chystáte se prodat nemovitost?
Pomůžeme Vám!

Inzerát si prohlédlo 0 lidí

Prodejce

Tomáš Fodor

Tomáš Fodor

Hlídací pes

Chcete dostávat emailem podobné nabídky prodeje pozemků pro bydlení v České Kamenici?

Podobné nemovitosti