Prodej pozemku pro bydlení, Moravské Budějovice, Chelčického, 4997 m2

Chelčického, Moravské Budějovice

6 359 000 Kč /za nemovitost HYPOTÉKA od 28 421 Kč /za měsíc

(včetně DPH, včetně poplatků, včetně provize, včetně právního servisu)

Prověřené firmy v Moravských Budějovicích

Informace k pozemku

Ideální příležitost pro developera či investora – projekty připravené, stavební povolení vydáno

Hledáte ucelený developerský projekt v atraktivní a stabilní lokalitě s vysokou poptávkou po rodinném bydlení?
V Moravských Budějovicích nyní nabízíme soubor 5 stavebních pozemků určených k okamžité výstavbě:
• 4 pozemky určené pro moderní polořadové domy
• 1 pozemek pro samostatně stojící rodinný dům

Vše s vydaným stavebním povolením a hotovými architektonickými návrhy, díky čemuž můžete začít stavět bez zbytečných odkladů.

Co tento projekt dělá výjimečným?
• Ucelený koncept výstavby
• Projekt počítá s moderním rezidenčním souborem – 4 polořadové domy tvoří harmonický celek, zatímco pátý dům nabízí
komfortní solitérní bydlení.
• Vysoká poptávka po rodinném bydlení ve městě
• Moravské Budějovice jsou klidné, bezpečné a plně vybavené město. Školy, školky, zdravotní péče, obchody i služby jsou v
docházkové vzdálenosti, což výrazně zvyšuje atraktivitu projektu.
• Historické a kulturní prostředí
• Centrum města je městskou památkovou zónou — Zámek Moravské Budějovice, Kostel sv. Jiljí nebo upravené náměstí
jsou prvky, které dávají lokalitě unikátní kouzlo.
Tohle není anonymní developerský projekt “na zelené louce” — tady stavíte v místě s atmosférou.
• Skvělé možnosti volnočasových aktivit
• Okolí je jako dělané pro aktivní život: cyklotrasy, běžecké stezky, procházky i příroda doslova kolem města. Ideální pro rodiny s dětmi i mladé páry.
• Výborná dopravní dostupnost
• Moravské Budějovice leží na spojnici mezi Znojmem, Třebíčí a Jihočeským krajem, s rychlou vazbou na hlavní tahy Vysočiny.

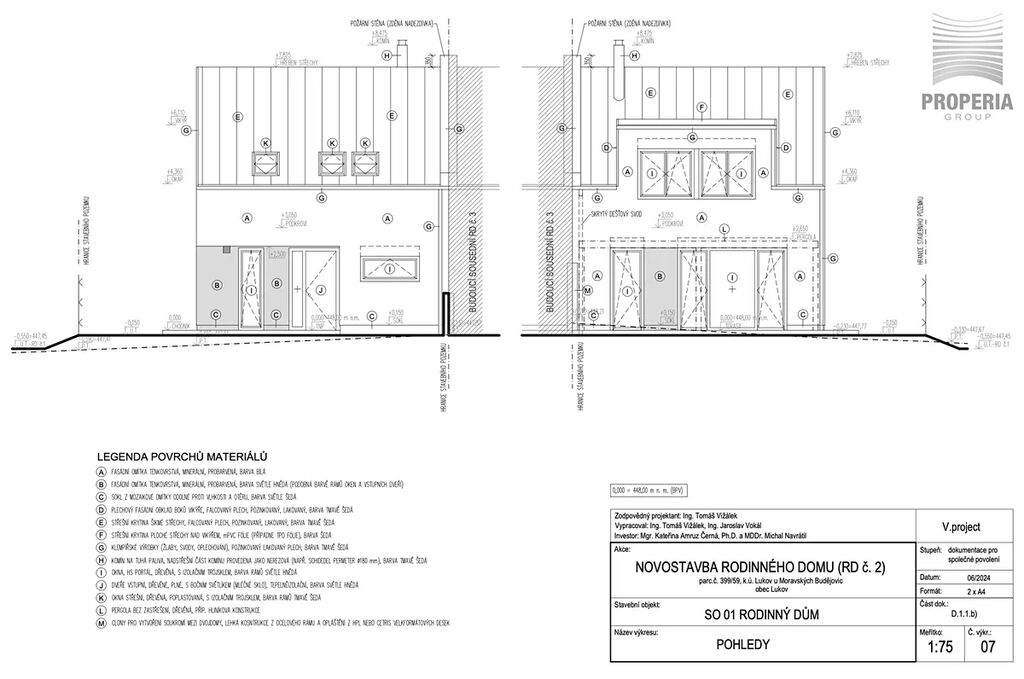
Technické informace k pozemkům a domům:
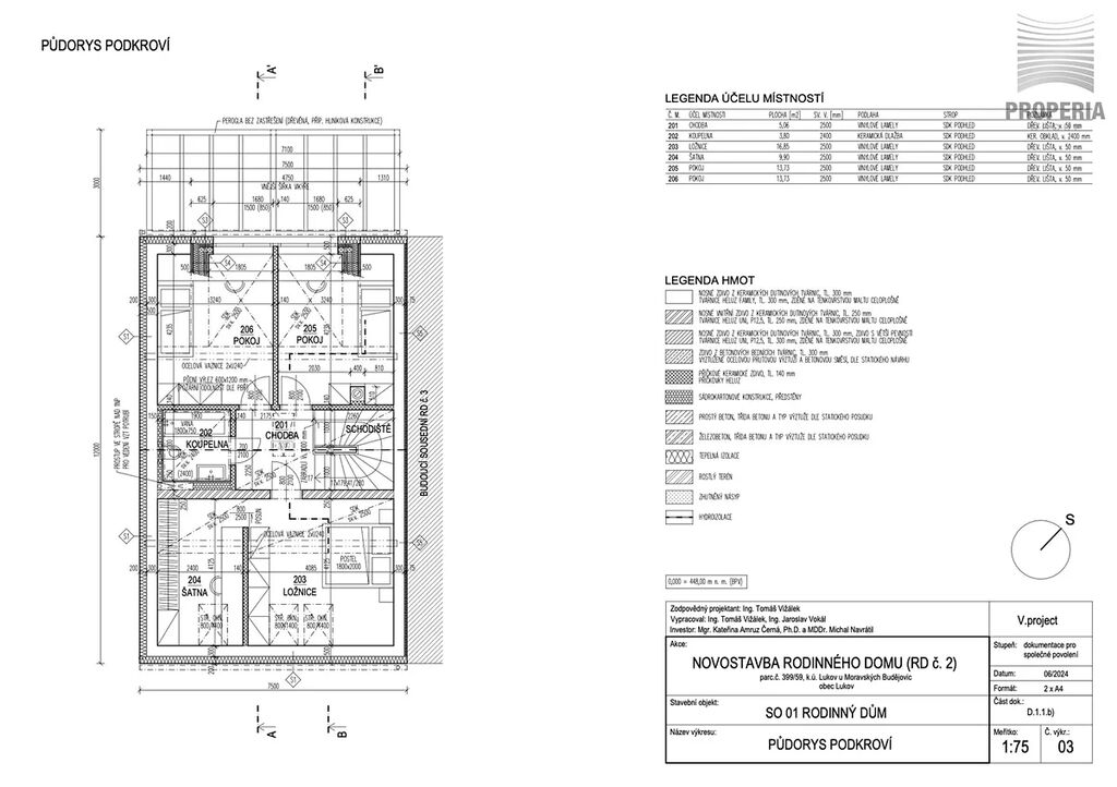
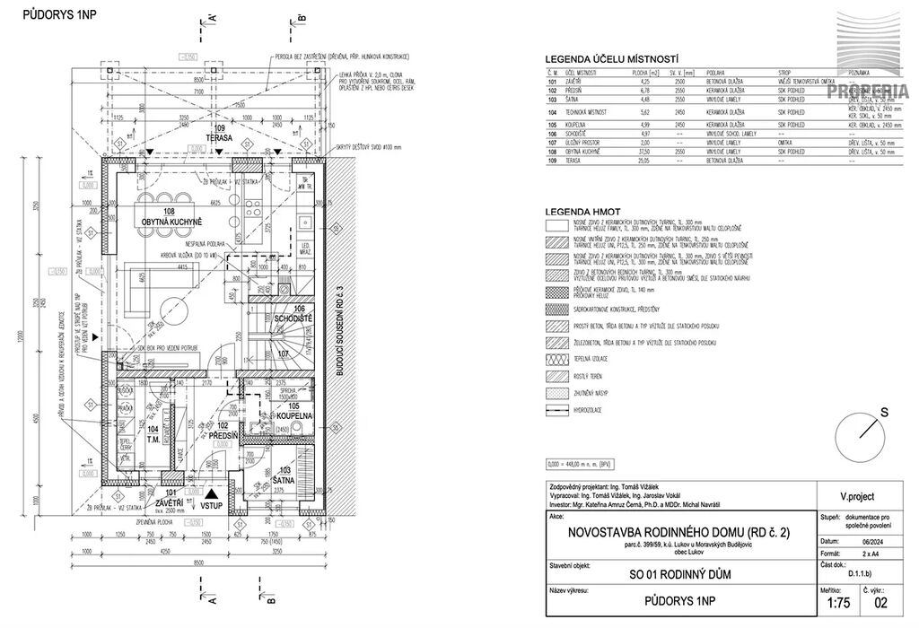
4 pozemky pro polořadové domy (RD č.2, RD č.3, RD č.4, RD č.5)
(shodné parametry projektu)
• Dispozice domu: 4+kk
• Zastavěná plocha: 90 m²
• Užitná plocha: 129,41 m²
• 1. NP = 66,34 m²
• Podkroví = 63,07 m²
• Technologie:
• Zděná stavba
• Tepelné čerpadlo vzduch–voda
• Podlahové teplovodní vytápění
• Rekuperační jednotka
• Sedlová střecha
• Sekundární zdroj: krbová vložka na dřevo
• Ohřev vody: tepelné čerpadlo
• Větrání: rekuperace
• Napojení na inženýrské sítě: vodovod, kanalizace – splašková stoka, NN elektřina
• Orientace pozemků: SZ (zahrada), JV (vstup / přední část)

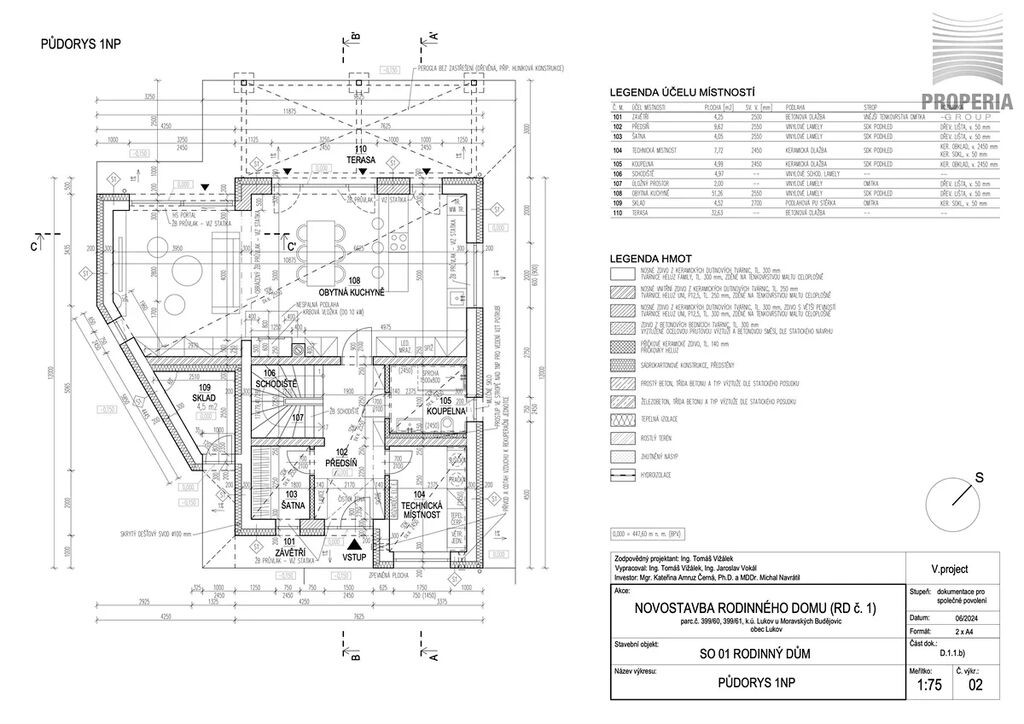
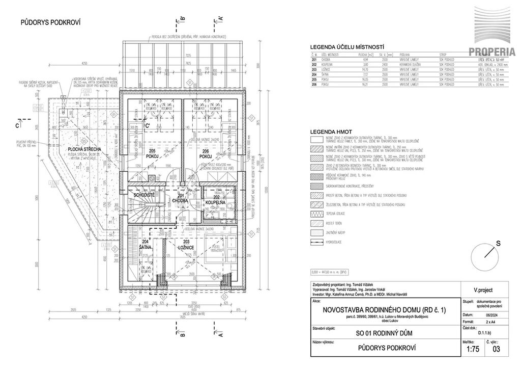
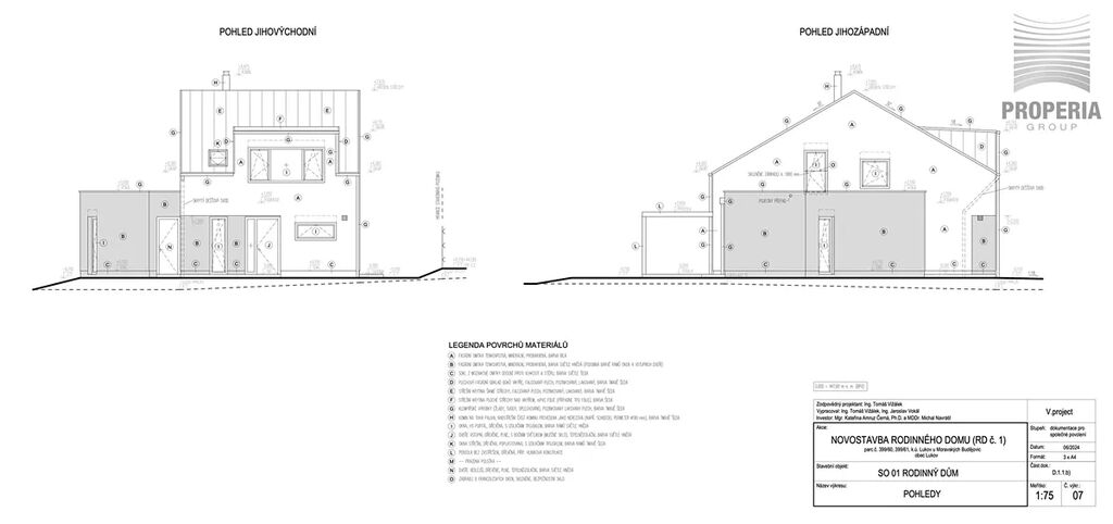
1 samostatný pozemek – solitérní rodinný dům
Parametry:
1 solitérní dům (RD č. 1)
parc.č. 399/60, 399/61, k.ú. Lukov u Moravských Budějovic
obec Lukov
Zastavěná plocha: 120,22 m²
Obestavěný prostor: 755 m3
Podlahová plocha rodinného domu: 151,95 m²
(1NP = 89,13 m², podkroví = 62,82 m²)
151,95 m²


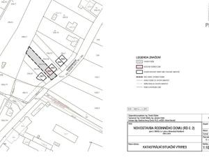
Konkrétní výměry jednotlivých pozemků:
1. Parcela 399/61 výměra 989 m²
Parcela 399/60 výměra 621 m²
2. Parcela 399/59 výměra 685 m²
3. Parcela 399/58 výměra 740 m²
4. Parcela 399/57 výměra 789 m²
5. Parcela 399/1 výměra 1173 m²
= celkem 4 997 m²

Pro koho je tento soubor pozemků ideální?
• Pro developera, který chce rozběhnout projekt bez čekání na povolení.
• Pro investora hledajícího lokalitu s dlouhodobě stabilní poptávkou po rodinném bydlení.
• Pro ty, kteří chtějí stavět v lokalitě s duší, historií a kompletní občanskou vybaveností.

Zaujalo vás to?

Rád vám poskytnu kompletní projektovou dokumentaci, územní podklady, technické listy a pomohu sladit další kroky.
Dáme si prohlídku přímo na místě a projdeme všechny možnosti projektu.

Parametry pozemku

Cena
6 359 000 Kč /za nemovitost Spočítat hypotéku
Poznámka k ceně
včetně DPH, včetně poplatků, včetně provize, včetně právního servisu
Aktualizováno
1. 12. 2025
Adresa
Chelčického, Moravské Budějovice
ID
03709
Plocha pozemku
4997 m2

Kontaktovat makléře

Máte zájem o tento pozemek?

Tímto, v souladu s nařízením Evropského parlamentu a Rady (EU) 2016/679, v platném znění, prohlašuji, že mi je alespoň 16 let a uděluji tak svůj souhlas se zpracováním zadaných údajů (jméno, telefon, e-mail, ip adresa) společnosti B3 Technology, s.r.o., IČ: 07330600, se sídlem Novostavby 126/23, 435 11 Lom (správce dat), za účelem předání dotazu z tohoto formuláře Vámi vybranému inzerentovi a zpětného kontaktování mé osoby. Osobní údaje bude správce zpracovávat manuálně i automaticky přímo prostřednictvím svých zaměstnanců. Informace předané tímto formulářem budou uloženy v databázi správce maximálně po dobu 10 let. Odvolání souhlasu s uložením a zpracováním poskytnutých dat lze e-mailem na info@realitypro.eu. V případě podezření na neoprávněné použití Vámi poskytnutých údajů máte právo předat podnět k šetření Úřadu pro ochranu osobních údajů. Více informací
Chystáte se prodat nemovitost?
Pomůžeme Vám!

Inzerát si prohlédlo 0 lidí

Prodejce

Martin Schuppler

Martin Schuppler

Hlídací pes

Chcete dostávat emailem podobné nabídky prodeje pozemků pro bydlení v Moravských Budějovicích?

Podobné nemovitosti