Prodej bytu 3+1, Svitavy, Kapitána Jaroše, 69 m2 (ID: 2745507)

Kapitána Jaroše, Svitavy, Lány

3 440 000 Kč /za nemovitost HYPOTÉKA od 15 375 Kč /za měsíc

(včetně DPH, včetně poplatků, včetně provize, včetně právního servisu)

Prověřené firmy v Svitavách

Informace k bytu

Ve výhradním zastoupení majitele nabízíme k prodeji velmi pěkný družstevní byt s lodžií o velikosti 3+1 ve Svitavách na ulici Kapitána Jaroše. Je zažádáno o převod bytu do osobního vlastnictví k 31.10.2026, byt tedy lze financovat hypotékou (družstvo vydá potvrzení pro banku).

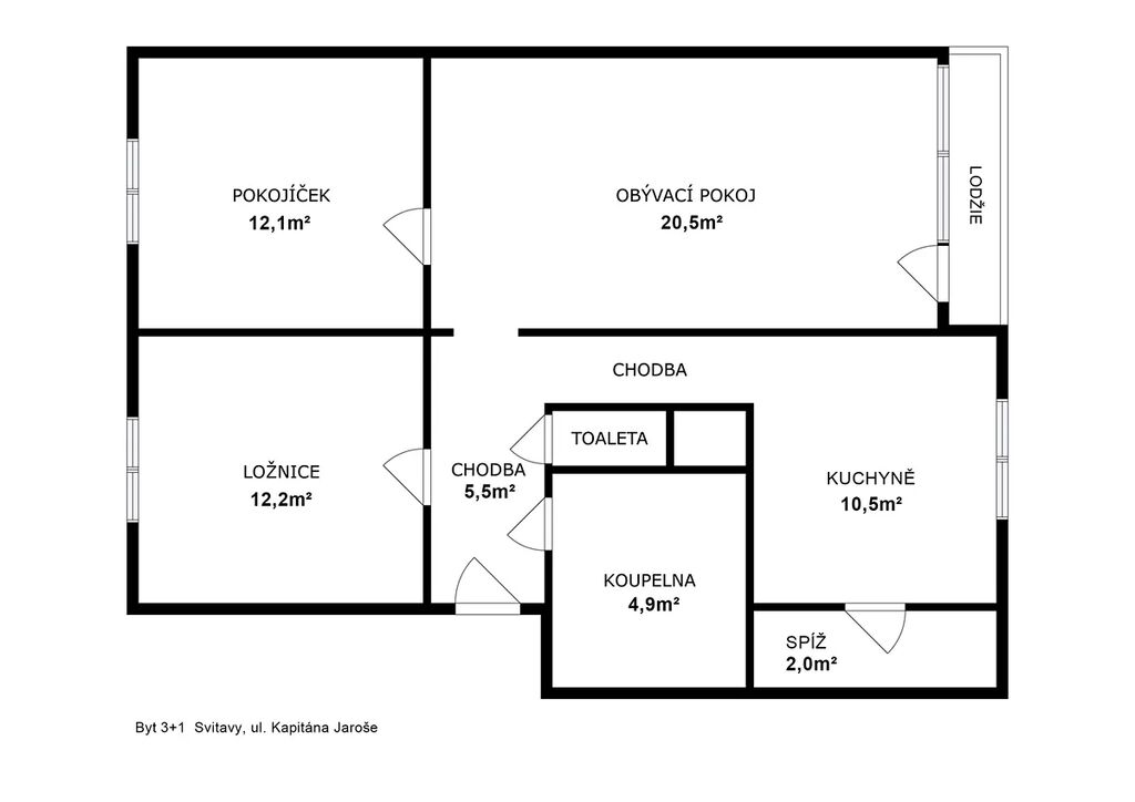
Byt o celkové výměře 69m2 se nachází ve 2. nadzemním podlaží třípodlažního zatepleného cihlového domu bez výtahu.
Byt má následující dispozici:
Obývací pokoj (20,5m2), pokojíček (12,1m2), ložnice (12,2m2), kuchyně (10,5m2), spíž (2,0 m2), koupelna s komorou (4,9m2), předsíň (5,5m2) a samostatné WC (1,0m2). Byt má lodžii (cca 2,4m2) a sklep (cca 6,8m2).
Vybavení kuchyňské linky – elektrický sporák, elektrická trouba a myčka.
Vybavení bytu je doloženo na fotografiích a videu a vše může být ponecháno vyjma sedačky v obývacím pokoji.
V obývacím pokoji je krb na biolíh.
Okna jsou plastová se žaluziemi.
Podlahy tvoří plovoucí podlaha vyjma koupelny a WC, kde je dlažba.
Bytový dům byl postaven kolem roku 1993. Dům byl zateplen s rekonstrukcí střechy před 15-ti lety. Byt byl rekonstruován před 10-ti lety.
Byt má vlastní plynový kotel Baxi jak pro topení, tak pro ohřev teplé vody.
Pokojíček a ložnice jsou orientovány na západ do ulice, obývací pokoj a kuchyně jsou orientovány na východ do dvora.
Do bytu je zaveden internet.
Celkové měsíční náklady na bydlení jsou 2.733,- Kč (splátka anuity 294,- Kč/měsíc, opravy a údržba domu 1.168,- Kč/měsíc) + elektřina (záloha 1.040,- Kč/měsíc) + plyn (záloha 810,- Kč/měsíc).
Úklid v domě si zajišťují obyvatelé domu.
Byt je připraven ihned k nastěhování.
Parkování je bezproblémové před domem.
Zastávka vlaku je 5 minut cesty od domu, zastávka autobusu městské dopravy je 2 minuty cesty a do centra jsou to 2km.
Ve Svitavách je veškerá občanská vybavenost.

Prohlídky jsou možné kdykoliv po domluvě s uvedeným makléřem.
Prodávající si vyhrazuje právo vybrat kupujícího na základě jím zvolených kritérií.

Parametry bytu

Cena
3 440 000 Kč /za nemovitost Spočítat hypotéku
Poznámka k ceně
včetně DPH, včetně poplatků, včetně provize, včetně právního servisu
Aktualizováno
29. 11. 2025
Adresa
Kapitána Jaroše, Svitavy, Lány
ID
00063
Stavba
Cihlová
Stav objektu
Velmi dobrý
Patro
2. z 3
Vybaveno
Ano
Lokalita objektu
Klidná část obce
Vlastnictví
Družstevní
Užitná plocha
69 m2
Podlahová plocha
78 m2
Třída energetické náročnosti
B - Velmi úsporná
Ukazatel energetické náročnosti
109 kWh/m2 za rok
Elektřina
230V
Plyn
Plynovod
Odpad
Veřejná kanalizace
Komunikace
Asfaltová
Telekomunikace
Internet
Doprava
Vlak, Silnice, MHD, Autobus
Voda
Vodovod
Zdroj topení
Plynový kotel
Zdroj teplé vody
Plynový kotel
Sklep
Lodžie
Výtah
Převod do OV

Kontaktovat makléře

Máte zájem o tento byt?

Tímto, v souladu s nařízením Evropského parlamentu a Rady (EU) 2016/679, v platném znění, prohlašuji, že mi je alespoň 16 let a uděluji tak svůj souhlas se zpracováním zadaných údajů (jméno, telefon, e-mail, ip adresa) společnosti B3 Technology, s.r.o., IČ: 07330600, se sídlem Novostavby 126/23, 435 11 Lom (správce dat), za účelem předání dotazu z tohoto formuláře Vámi vybranému inzerentovi a zpětného kontaktování mé osoby. Osobní údaje bude správce zpracovávat manuálně i automaticky přímo prostřednictvím svých zaměstnanců. Informace předané tímto formulářem budou uloženy v databázi správce maximálně po dobu 10 let. Odvolání souhlasu s uložením a zpracováním poskytnutých dat lze e-mailem na info@realitypro.eu. V případě podezření na neoprávněné použití Vámi poskytnutých údajů máte právo předat podnět k šetření Úřadu pro ochranu osobních údajů. Více informací
Chystáte se prodat nemovitost?
Pomůžeme Vám!

Inzerát si prohlédlo 1 lidí

Prodejce

Ing. Petra Anna Skopalová

Ing. Petra Anna Skopalová

Hlídací pes

Chcete dostávat emailem podobné nabídky prodeje bytů 3+1 v Svitavách?

Podobné nemovitosti