Prodej pozemku pro bydlení, Zásmuky - Nesměň, 1022 m2 (ID: 2744646)

Zásmuky, Nesměň

4 490 000 Kč /za nemovitost HYPOTÉKA od 20 068 Kč /za měsíc
Prověřené firmy v Zásmukách

Informace k pozemku

Prodej pozemku k bydlení, 1022 m², Nesměň u Zásmuk

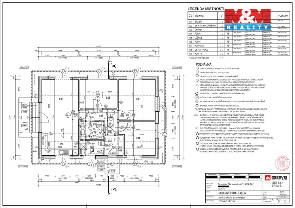
Nabízíme k prodeji atraktivní pozemek k bydlení o rozloze 1022 m² a ornou půdu o rozloze 1377 m² v obci Nesměň u Zásmuk. Součástí prodeje je kompletní projektová dokumentace rodinného domu. Přízemní dům 4+kk se zastavěnou plochou 105 m², prostorný obývací pokoj s kuchyní, ložnice, dva další pokoje, koupelna a samostatná toaleta. Dům je řešen jako moderní nízkoenergetická dřevostavba. Stav pozemku je velmi dobrý, připravený pro zahájení výstavby. Nachází se v klidné části obce, ideální pro ty, kteří hledají únik od ruchu velkoměsta a touží po klidném prostředí pro výstavbu svého vysněného domova. Největší ozdobou pozemku je malebné jezírko obklopené zelení. V okolí naleznete krásnou přírodu, která vybízí k procházkám a relaxaci. Výborná dostupnost do Zásmuk i dalších okolních měst jako například Kolín zajišťuje snadnou dopravní obslužnost. Jestliže plánujete financování hypotékou, zajistíme vám nabídku s nejnižší úrokovou sazbou. Kontaktujte nás pro více informací či sjednání prohlídky.

Parametry pozemku

Cena
4 490 000 Kč /za nemovitost Spočítat hypotéku
Aktualizováno
27. 11. 2025
Adresa
Zásmuky, Nesměň
ID
920104
Stav objektu
Velmi dobrý
Vybaveno
Ne
Lokalita objektu
Klidná část obce
Vlastnictví
Osobní
Plocha pozemku
1022 m2

Kontaktovat makléře

Realitní kancelář

Logo M&M reality

M&M reality

ulice Krakovská 583/9, Praha

Chystáte se prodat nemovitost?
Pomůžeme Vám!

Máte zájem o tento pozemek?

Tímto, v souladu s nařízením Evropského parlamentu a Rady (EU) 2016/679, v platném znění, prohlašuji, že mi je alespoň 16 let a uděluji tak svůj souhlas se zpracováním zadaných údajů (jméno, telefon, e-mail, ip adresa) společnosti B3 Technology, s.r.o., IČ: 07330600, se sídlem Novostavby 126/23, 435 11 Lom (správce dat), za účelem předání dotazu z tohoto formuláře Vámi vybranému inzerentovi a zpětného kontaktování mé osoby. Osobní údaje bude správce zpracovávat manuálně i automaticky přímo prostřednictvím svých zaměstnanců. Informace předané tímto formulářem budou uloženy v databázi správce maximálně po dobu 10 let. Odvolání souhlasu s uložením a zpracováním poskytnutých dat lze e-mailem na info@realitypro.eu. V případě podezření na neoprávněné použití Vámi poskytnutých údajů máte právo předat podnět k šetření Úřadu pro ochranu osobních údajů. Více informací
Chystáte se prodat nemovitost?
Pomůžeme Vám!

Inzerát si prohlédlo 0 lidí

Prodejce

Stanislav Mytrovka

Stanislav Mytrovka

Hlídací pes

Chcete dostávat emailem podobné nabídky prodeje pozemků pro bydlení v Zásmukách?

Podobné nemovitosti