Prodej bytu 2+1, Ústí nad Labem - Severní Terasa, Svojsíkova, 50 m2

Svojsíkova, Ústí nad Labem, okres ústí nad labem, Ústí nad Labem-Severní Terasa

2 950 000 Kč /za nemovitost HYPOTÉKA od 13 185 Kč /za měsíc
Prověřené firmy v Ústí nad Labem

Okna a dveře

Rekonstrukce

Zámečnické práce

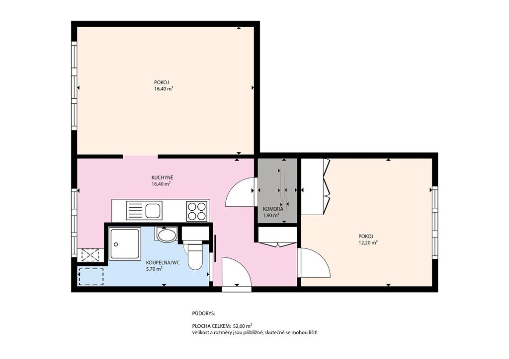
Informace k bytu

Exkluzivně nabízíme byt 2+1 po rekonstrukci, který se nachází na atraktivní adrese Svojsíkova v oblasti Severní Terasa ve městě Ústí nad Labem. Tento byt o rozloze 50 m² se nachází v 1.patře revitalizovaného panelového domu a byl průběžně kompletně rekonstruován.
Byt je kuchyní a pokojem orientován k jihozápadu, je tedy velmi světlý a poskytuje velmi pěkný výhled. V bytě je zděné jádro, nová koupelna se sprchovým koutem a pračkou, plastová okna, na podlahách dlažba a v pokojích dřevo, kuchyňská linka zánovní. V bytě je několik praktických a také zánovních kusů vybavení, které by mohlo přijít vhod potenciálním nájemníkům viz fotografie. Dům je zateplený, má nová stoupací vedení i výtah, je úsporný, velmi dobře udržovaný a spravovaný. V bytě je praktická šatna, k bytu patří dále komora v mezipatře, sklepní kóje a užívání malého balkonu také v mezipatře.
Vzhledem k tomu, že byt se nachází v bezprostřední blízkosti krajské nemocnice, je ideální příležitostí pro investory. Platba za byt činí pro 1 osobu celkem měsíčně 4500 Kč, z toho fond oprav je 1820 Kč. Byt není zatížený zástavním právem ani jiným omezením.
V blízkosti se nachází kompletní občanská vybavenost včetně škol a školek i obchodů a úřadu městské části, do města se snadno dostanete MHD.
Veškeré informace, které jste nenašli tady, Vám ráda doplním a zajistím prohlídku bytu. je vynikající jak pro vlastní bydlení, tak jako investice neváhejte.

Parametry bytu

Cena
2 950 000 Kč /za nemovitost Spočítat hypotéku
Aktualizováno
27. 11. 2025
Adresa
Svojsíkova, Ústí nad Labem, okres ústí nad labem, Ústí nad Labem-Severní Terasa
ID
971460
Stavba
Panelová
Stav objektu
Po rekonstrukci
Patro
2. z 9
Vybaveno
Částečně
Vlastnictví
Osobní
Užitná plocha
50 m2
Podlahová plocha
50 m2
Třída energetické náročnosti
C - Úsporná
Elektřina
230V
Topení
Ústřední dálkové
Doprava
Silnice, MHD, Autobus
Sklep
Výtah

Kontaktovat makléře

Realitní kancelář

Logo ERA Sever

ERA Sever

Masarykova 106/129, Ústí nad Labem

Chystáte se prodat nemovitost?
Pomůžeme Vám!

Máte zájem o tento byt?

Tímto, v souladu s nařízením Evropského parlamentu a Rady (EU) 2016/679, v platném znění, prohlašuji, že mi je alespoň 16 let a uděluji tak svůj souhlas se zpracováním zadaných údajů (jméno, telefon, e-mail, ip adresa) společnosti B3 Technology, s.r.o., IČ: 07330600, se sídlem Novostavby 126/23, 435 11 Lom (správce dat), za účelem předání dotazu z tohoto formuláře Vámi vybranému inzerentovi a zpětného kontaktování mé osoby. Osobní údaje bude správce zpracovávat manuálně i automaticky přímo prostřednictvím svých zaměstnanců. Informace předané tímto formulářem budou uloženy v databázi správce maximálně po dobu 10 let. Odvolání souhlasu s uložením a zpracováním poskytnutých dat lze e-mailem na info@realitypro.eu. V případě podezření na neoprávněné použití Vámi poskytnutých údajů máte právo předat podnět k šetření Úřadu pro ochranu osobních údajů. Více informací
Chystáte se prodat nemovitost?
Pomůžeme Vám!

Inzerát si prohlédlo 0 lidí

Prodejce

Jolana Šulcová

Jolana Šulcová

Hlídací pes

Chcete dostávat emailem podobné nabídky prodeje bytů 2+1 v Ústí nad Labem?

Podobné nemovitosti