Prodej rodinného domu, Podkopná Lhota, 305 m2 (ID: 2740599)

Podkopná Lhota

1 290 000 Kč /za nemovitost HYPOTÉKA od 5 766 Kč /za měsíc
Prověřené firmy v Podkopné Lhotě

Informace k domu

Realitka Green ® vám zprostředkuje prodej samostatně stojícího rodinného domu v obci Podkopná Lhota, vzdálené 17 km od města Zlín.

Celková plocha je 344 m2.

Nachází se ve velmi klidné lokalitě, v blízkosti lesa.

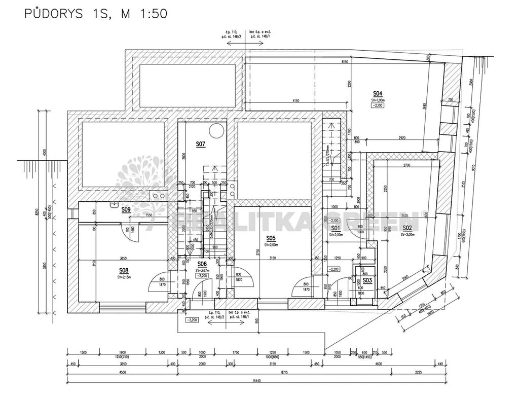
Dům je částečně podsklepený, určen k celkové rekonstrukci. Vhodný jak k bydlení, tak k přebudování na komerční využití, popř. ubytování. K dispozici jsou 3 podlaží. Zdivo cihla, tvárnice. Střecha plechová s možností půdní vestavby.

IS: elektřina, vlastní studna, plynová a vodovodní v přípojka v blízkosti domu.

Veškerá dokumentace k domu. (půdorys, řez domu, PENB). Energetická náročnost budovy: B-velmi úsporná.

V blízkosti je rekreační středisko, lyžařský vlek.

Tato nemovitost je ideální k čerpání dotace v rámci výzvy "Oprav dům po babičce", kde získáte zálohově 50% z nákladů na rekonstrukci (zateplení, fasády, výměna oken a dveří, zateplení střechy, fotovoltaika, tepelné čerpadlo, atd.) Dotace je vyplácena najednou, ještě před realizací rekonstrukce. Výše dotace může činit až 1 milion korun + možné bonusy.

K dispozici ihned. V případě zájmu zajistíme výhodné financování.

Parametry domu

Cena
1 290 000 Kč /za nemovitost Spočítat hypotéku
Aktualizováno
23. 11. 2025
Adresa
Podkopná Lhota
ID
21116
Stavba
Cihlová
Stav objektu
Před rekonstrukcí
Druh objektu
Samostatný
Lokalita objektu
Klidná část obce
Užitná plocha
305 m2
Zastavěná plocha
305 m2
Plocha pozemku
344 m2
Třída energetické náročnosti
B - Velmi úsporná
Ukazatel energetické náročnosti
816 kWh/m2 za rok
Elektřina
400V
Odpad
Septik
Komunikace
Asfaltová
Doprava
Silnice
Voda
Místní zdroj vody
Výtah
Bezbarierový přístup

Kontaktovat makléře

Realitní kancelář

REALITKA GREEN

Na Příkopě 814, Vsetín

Chystáte se prodat nemovitost?
Pomůžeme Vám!

Máte zájem o tento dům?

Tímto, v souladu s nařízením Evropského parlamentu a Rady (EU) 2016/679, v platném znění, prohlašuji, že mi je alespoň 16 let a uděluji tak svůj souhlas se zpracováním zadaných údajů (jméno, telefon, e-mail, ip adresa) společnosti B3 Technology, s.r.o., IČ: 07330600, se sídlem Novostavby 126/23, 435 11 Lom (správce dat), za účelem předání dotazu z tohoto formuláře Vámi vybranému inzerentovi a zpětného kontaktování mé osoby. Osobní údaje bude správce zpracovávat manuálně i automaticky přímo prostřednictvím svých zaměstnanců. Informace předané tímto formulářem budou uloženy v databázi správce maximálně po dobu 10 let. Odvolání souhlasu s uložením a zpracováním poskytnutých dat lze e-mailem na info@realitypro.eu. V případě podezření na neoprávněné použití Vámi poskytnutých údajů máte právo předat podnět k šetření Úřadu pro ochranu osobních údajů. Více informací
Chystáte se prodat nemovitost?
Pomůžeme Vám!

Inzerát si prohlédlo 1 lidí

Prodejce

Jan Biernát

Jan Biernát

Hlídací pes

Chcete dostávat emailem podobné nabídky prodeje rodinných domů v Podkopné Lhotě?

Top nabídky

Podobné nemovitosti