Prodej rodinného domu, Vrané nad Vltavou, 187 m2

Vrané nad Vltavou

18 500 000 Kč /za nemovitost HYPOTÉKA od 82 684 Kč /za měsíc
Prověřené firmy v Vraném nad Vltavou

Informace k domu

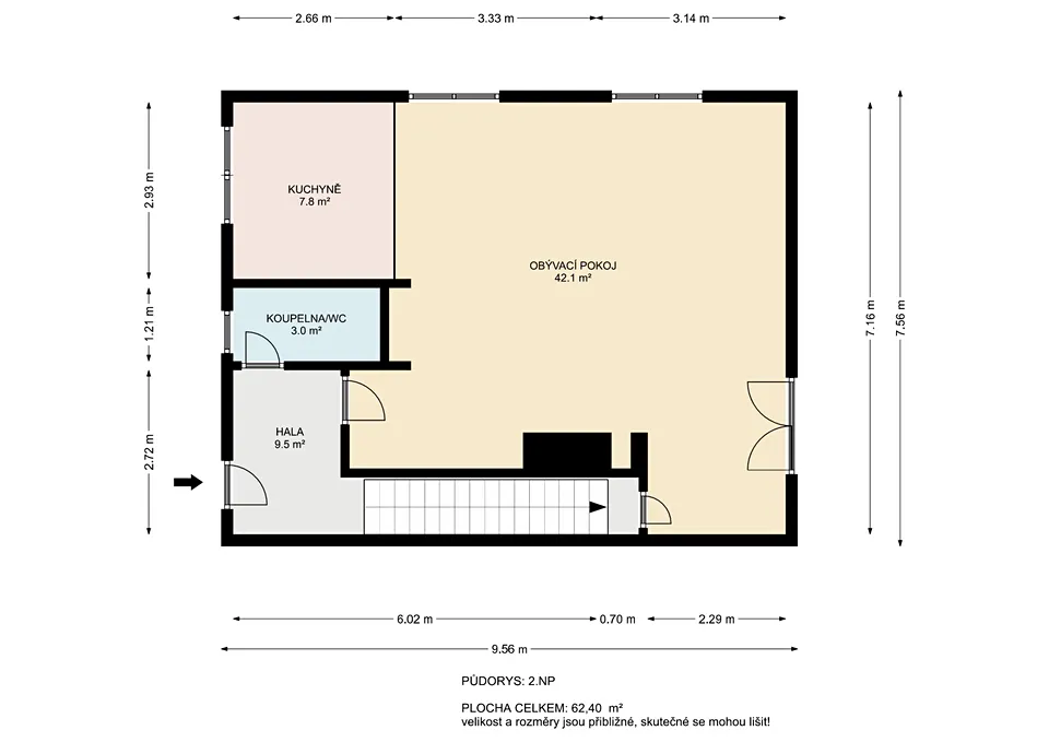
Rádi bychom Vám představili tento rodinný dům k prodeji ve Vrané nad Vltavou, který nabízíme k prodeji v exkluzivním zastoupení majitelky. Nachází se v klidné části obce a je ideální volbou pro ty, kteří hledají prostorné bydlení v blízkosti přírody, ale zároveň s dobrým přístupem do města. Dům, postavený v roce 2008 a zkolaudovaný v roce 2018, je ve velmi dobrém stavu a nabízí celkovou užitnou plochu 187 m2, což zajišťuje pohodlné bydlení pro větší rodinu. Výhodou je možnost rozdělení domu na dvě samostatné bytové jednotky a sice o dispozici 2+kk a 4+kk, což dává prostor pro vícegeneračních bydlení Dům je velice pěkně zařízený a udržovaný, vybavený zařizovacími předměty ve vysokém standardu. řada místností je vybavena vestavným nábytkem, schozem na prádlo, centrálním vysavačem a dalšími praktickými řešeními. Tento patrový dům, sestává z více než pěti pokojů, je panelové konstrukce (systém Velox) a má rohové umístění, což zajišťuje dostatek přirozeného světla. Disponuje třemi podlažími, což poskytuje dostatek prostoru pro všechny členy rodiny. K domu náleží malebná zahrada o ploše 60 m2, která i přes menší rozlohu nabízí dostatek místa pro relaxaci nebo drobné zahradničení. Pro vaše vozidla je k dispozici garáž a k tomu dvě parkovací místa (u domu a před garáží). Dům se nachází v zástavbě určené k bydlení a v obytné části obce s dobrou dostupností veřejné dopravy, včetně vlaku, autobusu a MHD. Na Smíchov pojedete pár minut. Lokalita zajišťuje nejen klidné a pohodlné bydlení, ale také rychlý přístup k potřebným službám a do centra města. Pro další informace nebo pro sjednání prohlídky nás neváhejte kontaktovat. Prohlídky jsou možné po předchozí domluvě. Pro více informací o této nemovitosti nebo sjednání prohlídky nás prosím kontaktujte nebo vyplňte níže uvedený formulář, rádi Vám pomůžeme. Dále Vám na vyžádání e-mailem zašleme virtuální prohlídku, kterou nechceme zveřejňovat kvůli ochraně soukromí, stejně tak rádi zodpovíme případné dotazy a zašleme další podklady. Koupi je samozřejmě možné financovat hypotečním úvěrem, s jehož vyřízením Vám rádi budeme nápomocni.

Parametry domu

Cena
18 500 000 Kč /za nemovitost Spočítat hypotéku
Aktualizováno
21. 11. 2025
Adresa
Vrané nad Vltavou
Stavba
Panelová
Stav objektu
Velmi dobrý
Vybaveno
Částečně
Druh objektu
Rohový
Užitná plocha
187 m2
Zastavěná plocha
127 m2
Plocha pozemku
207 m2
Plocha zahrady
60 m2
Třída energetické náročnosti
G - Mimořádně nehospodárná
Odpad
Veřejná kanalizace
Doprava
Vlak, Silnice, MHD, Autobus
Voda
Studna
Topné těleso
Podlahové vytápění, Krb
Zdroj topení
Tepelné čerpadlo, Krb
Zdroj teplé vody
Bojler - elektro
Garáž
Parkování

Kontaktovat makléře

Máte zájem o tento dům?

Tímto, v souladu s nařízením Evropského parlamentu a Rady (EU) 2016/679, v platném znění, prohlašuji, že mi je alespoň 16 let a uděluji tak svůj souhlas se zpracováním zadaných údajů (jméno, telefon, e-mail, ip adresa) společnosti B3 Technology, s.r.o., IČ: 07330600, se sídlem Novostavby 126/23, 435 11 Lom (správce dat), za účelem předání dotazu z tohoto formuláře Vámi vybranému inzerentovi a zpětného kontaktování mé osoby. Osobní údaje bude správce zpracovávat manuálně i automaticky přímo prostřednictvím svých zaměstnanců. Informace předané tímto formulářem budou uloženy v databázi správce maximálně po dobu 10 let. Odvolání souhlasu s uložením a zpracováním poskytnutých dat lze e-mailem na info@realitypro.eu. V případě podezření na neoprávněné použití Vámi poskytnutých údajů máte právo předat podnět k šetření Úřadu pro ochranu osobních údajů. Více informací
Chystáte se prodat nemovitost?
Pomůžeme Vám!

Inzerát si prohlédlo 7 lidí

Prodejce

Ing. Lucie Onderčaninová

Ing. Lucie Onderčaninová

Hlídací pes

Chcete dostávat emailem podobné nabídky prodeje rodinných domů v Vraném nad Vltavou?

Podobné nemovitosti