Prodej bytu 3+1, Praha - Nusle, Horní, 66 m2

Horní, Praha, Nusle

11 190 000 Kč /za nemovitost HYPOTÉKA od 50 013 Kč /za měsíc
Prověřené firmy v Praze 4

Stěhovací služby

Výkup a prodej starého nábytku

Informace k bytu

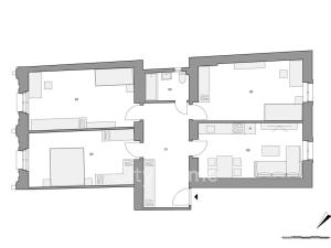
Nabízíme k prodeji prostorný byt 3+1 o velikosti 94,5 m², který se nachází ve 4. nadzemním podlaží v klidné rezidenční části Prahy 4 – Nusle, přímo naproti parku Jezerka. Byt je určen k rekonstrukci, což novému majiteli poskytuje možnost přizpůsobit si interiér přesně podle vlastních představ a vytvořit si bydlení snů.
Současná dispozice zahrnuje prostornou vstupní chodbu, tři neprůchozí pokoje a samostatnou kuchyni a koupelnu s toaletou. Díky neprůchozím místnostem je byt vhodný jak pro rodinné bydlení, tak i například na spolubydlení nebo jako investiční příležitost.

Společné prostory domu projdou renovací, včetně nové výmalby a opravy vstupních dveří. V přízemí budou instalována moderní stropní svítidla s čidly pohybu, která zajistí vyšší bezpečnost a úsporu energií. Nový nátěr a oprava fasády dodají budově svěží a reprezentativní vzhled.

Za domem se nachází společný uzavřený dvorek, který mohou budoucí majitelé bytů využívat. Rodiny ocení blízkost škol, školek a zdravotnických zařízení. Výbornou dopravní dostupnost zajišťuje tramvajová a autobusová zastávka v docházkové vzdálenosti.

Nusle nabízejí kombinaci klidného městského prostředí s výbornou dostupností do centra Prahy a kompletní občanskou vybaveností, včetně obchodů, restaurací a služeb.

Tento byt představuje rovněž zajímavou investiční příležitost s potenciálem zhodnocení díky možnosti rekonstrukce a variabilního dispozičního řešení.

Pro více informací nás neváhejte kontaktovat nebo si rovnou rezervujte termín prohlídky.

Parametry bytu

Cena
11 190 000 Kč /za nemovitost Spočítat hypotéku
Aktualizováno
20. 11. 2025
Adresa
Horní, Praha, Nusle
ID
HOR_A4.2
Stavba
Cihlová
Stav objektu
Dobrý
Patro
3. z 6
Vybaveno
Ne
Druh objektu
V bloku
Lokalita objektu
Klidná část obce
Vlastnictví
Osobní
Užitná plocha
66 m2
Podlahová plocha
66 m2
Třída energetické náročnosti
G - Mimořádně nehospodárná
Výtah

Kontaktovat makléře

Máte zájem o tento byt?

Tímto, v souladu s nařízením Evropského parlamentu a Rady (EU) 2016/679, v platném znění, prohlašuji, že mi je alespoň 16 let a uděluji tak svůj souhlas se zpracováním zadaných údajů (jméno, telefon, e-mail, ip adresa) společnosti B3 Technology, s.r.o., IČ: 07330600, se sídlem Novostavby 126/23, 435 11 Lom (správce dat), za účelem předání dotazu z tohoto formuláře Vámi vybranému inzerentovi a zpětného kontaktování mé osoby. Osobní údaje bude správce zpracovávat manuálně i automaticky přímo prostřednictvím svých zaměstnanců. Informace předané tímto formulářem budou uloženy v databázi správce maximálně po dobu 10 let. Odvolání souhlasu s uložením a zpracováním poskytnutých dat lze e-mailem na info@realitypro.eu. V případě podezření na neoprávněné použití Vámi poskytnutých údajů máte právo předat podnět k šetření Úřadu pro ochranu osobních údajů. Více informací
Chystáte se prodat nemovitost?
Pomůžeme Vám!

Inzerát si prohlédlo 0 lidí

Prodejce

City Home klientské centrum

City Home klientské centrum

Hlídací pes

Chcete dostávat emailem podobné nabídky prodeje bytů 3+1 v Praze 4?

Podobné nemovitosti