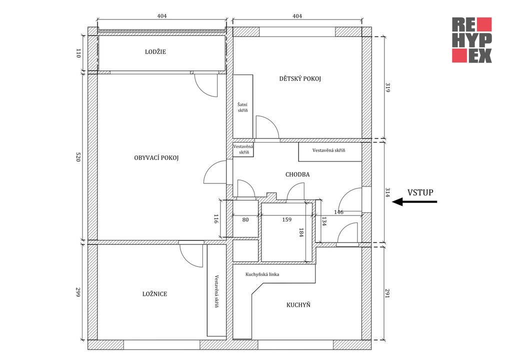
Prodej bytu 3+1, Liberec - Liberec XXV-Vesec, Fričova, 77 m2

Fričova, Liberec XXV-Vesec - Liberec (nečleněné město)

6 600 000 Kč /za nemovitost HYPOTÉKA od 29 498 Kč /za měsíc
Prověřené firmy v Liberci

Rekonstrukce

Úklidové služby

Informace k bytu

Hledáte prostor, kde se vaše rodina bude cítit opravdu šťastně? Tento byt o dispozici 3+1 s lodžií a sklepem prošel kompletní rekonstrukcí a čeká jen na nové majitele, kteří ocení jeho útulnost i moderní vybavení.

Co vás nadchne:
- Luxusní kuchyňská linka s vestavěnými spotřebiči
- Nové rozvody, koupelna a oddělené WC
- Vestavěné skříně v předsíni i ložnici – dostatek místa pro všechny vaše věci
- Prostorná lodžie s výhledem do přírody, kde si ráno vychutnáte kávu nebo večer sklenku vína
- K bytu patří i sklepní kóje – praktické místo pro sezónní vybavení

Byt se nachází ve vyhledávané části Vesec v Liberci, která je ideální pro rodinný život. V bezprostřední blízkosti najdete školu, školku, obchody i dětská hřiště. Milovníky sportu a přírody potěší Vesecký areál, kde si můžete užít procházky, cyklistiku nebo zimní aktivity.
Neméně důležité je i blízké napojení na dálnici.

Byt je navržen tak, aby poskytoval nejen komfort, ale i pocit bezpečí a pohody. Každý detail rekonstrukce byl promyšlen s ohledem na rodinný život – od kvalitních materiálů až po chytré úložné prostory.

Tento byt není jen nemovitost, je to nový domov, kde se budou psát váš rodinný příběh.

Parametry bytu

Cena
6 600 000 Kč /za nemovitost Spočítat hypotéku
Aktualizováno
18. 11. 2025
Adresa
Fričova, Liberec XXV-Vesec - Liberec (nečleněné město)
ID
N2022
Stavba
Smíšená
Stav objektu
Po rekonstrukci
Patro
7. z 7
Typ objektu
Patrový
Vlastnictví
Osobní
Užitná plocha
77 m2
Podlahová plocha
80 m2
Třída energetické náročnosti
C - Úsporná
Topení
Ústřední dálkové
Sklep
Lodžie
Parkování

Kontaktovat makléře

Realitní kancelář

Logo REHYPEX, s.r.o.

REHYPEX, s.r.o.

Veleslavínova 208/9, Liberec

Chystáte se prodat nemovitost?
Pomůžeme Vám!

Máte zájem o tento byt?

Tímto, v souladu s nařízením Evropského parlamentu a Rady (EU) 2016/679, v platném znění, prohlašuji, že mi je alespoň 16 let a uděluji tak svůj souhlas se zpracováním zadaných údajů (jméno, telefon, e-mail, ip adresa) společnosti B3 Technology, s.r.o., IČ: 07330600, se sídlem Novostavby 126/23, 435 11 Lom (správce dat), za účelem předání dotazu z tohoto formuláře Vámi vybranému inzerentovi a zpětného kontaktování mé osoby. Osobní údaje bude správce zpracovávat manuálně i automaticky přímo prostřednictvím svých zaměstnanců. Informace předané tímto formulářem budou uloženy v databázi správce maximálně po dobu 10 let. Odvolání souhlasu s uložením a zpracováním poskytnutých dat lze e-mailem na info@realitypro.eu. V případě podezření na neoprávněné použití Vámi poskytnutých údajů máte právo předat podnět k šetření Úřadu pro ochranu osobních údajů. Více informací
Chystáte se prodat nemovitost?
Pomůžeme Vám!

Inzerát si prohlédlo 1 lidí

Prodejce

Ing. Rut Piklová

Ing. Rut Piklová

Hlídací pes

Chcete dostávat emailem podobné nabídky prodeje bytů 3+1 v Liberci?

Podobné nemovitosti