Prodej rodinného domu, Hředle, 398 m2 (ID: 2735523)

Hředle

12 850 000 Kč /za nemovitost HYPOTÉKA od 57 432 Kč /za měsíc
Prověřené firmy v Hředlích

Informace k domu

Nabízíme k prodeji prostorný dům v klidné části obce – jen 4 km od D5 s velkou zahradou a stodolou v obci Hředle u Zdic (okres Beroun). Obec leží na okraji CHKO Křivoklátsko a díky blízké dálnici D5 (jen 4 km) má dům dobrou dostupnost Prahy i západních Čech (20 min Praha, 25 min Plzeň).

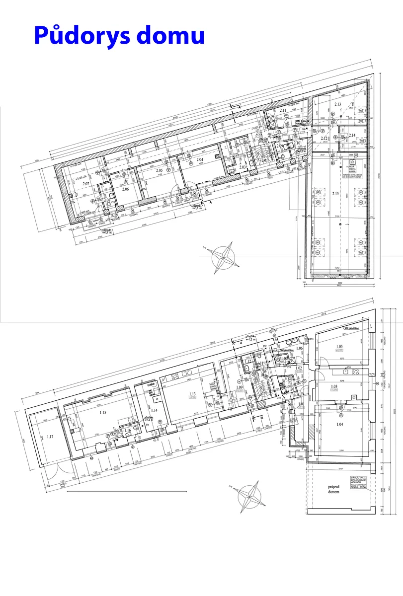
Jde o původní usedlost se dvěma nadzemními podlažími. Část domu navazuje na ulici, druhé křídlo je orientované do dvora. Součástí je i samostatná stodola v zadní části pozemku. Nemovitost prošla částečnou rekonstrukcí: nová střecha, plastová okna a vrata, nové rozvody topení, vody a elektro, zateplení střechy a stěn, nové stropy a podlahy, nové koupelny, 2 nové kuchyňské linky, nová technika, prádelna - vše ve vysokém standardu.

Podkroví:

1) zrekonstruovaná bytová jednotka 3+kk, 106 m² (ložnice, kuchyň s obývacím pokojem, 2x koupelna s WC, chodba, pokoj pro hosty, technická místnost)

2) další prostory k dokončení dle projektu s platným stavebním povolením: tři samostatné pokoje (cca 13 m², 13 m², 19 m²) se společnou koupelnou s WC (5 m²), chodba (39 m²) a další pokoj s vlastní koupelnou (22 m²),

celková podlahová plocha podkroví: 220 m².

Přízemí:

1) bytová jednotka 2+1, 86 m² (ložnice, kuchyň, pokoj, koupelna, WC, chodba, technická místnost), aktuálně v pronájmu

2) navržené společné zázemí pro podkroví dle projektu a platného stavebního povolení: jídelna (26 m²), předsíň (13 m²), chodba (6 m²), WC (2 m²), malá koupelna (2 m²)

3) možnost rozšíření o: technickou místnost (10 m²), letní kuchyň (27,5 m²), WC (2 m²) a garáž (15 m²)

Celkem podlahová plocha přízemí: 190 m².

Stodola:

zděná stodola v zadní části pozemku, aktuálně pronajata (využití dílna/sklad).

V ceně je kompletní projektová dokumentace rekonstrukce (přízemí 101 m², podkroví 78 m²) připravená k podání na stavební úřad.

Technické informace:

- vytápění radiátory: elektrokotel nebo kotel na tuhá paliva (lze kombinovat),

- odpad: aktuálně vlastní ČOV; obec plánuje výstavbu veřejné kanalizace s možností budoucího připojení.

Aktuální výnos: část domu i stodola jsou nyní pronajaté a nemovitost tak generuje pravidelný měsíční příjem; nájemní smlouvy lze po dohodě převzít nebo vypovědět.

Dům nabízí hotové bydlení v části objektu a zároveň prostor pro dokončení podle schváleného projektu. Vhodné pro větší rodinu, dvougenerační bydlení i kombinaci bydlení a podnikání / investici s okamžitým výnosem.

Parametry domu

Cena
12 850 000 Kč /za nemovitost Spočítat hypotéku
Aktualizováno
18. 11. 2025
Adresa
Hředle
Stavba
Smíšená
Stav objektu
Po rekonstrukci
Užitná plocha
398 m2
Plocha pozemku
1153 m2
Garáž
Sklep
Parkování

Kontaktovat makléře

Realitní kancelář

Green Hills Realty

Akátová 233, Králův Dvůr

Chystáte se prodat nemovitost?
Pomůžeme Vám!

Máte zájem o tento dům?

Tímto, v souladu s nařízením Evropského parlamentu a Rady (EU) 2016/679, v platném znění, prohlašuji, že mi je alespoň 16 let a uděluji tak svůj souhlas se zpracováním zadaných údajů (jméno, telefon, e-mail, ip adresa) společnosti B3 Technology, s.r.o., IČ: 07330600, se sídlem Novostavby 126/23, 435 11 Lom (správce dat), za účelem předání dotazu z tohoto formuláře Vámi vybranému inzerentovi a zpětného kontaktování mé osoby. Osobní údaje bude správce zpracovávat manuálně i automaticky přímo prostřednictvím svých zaměstnanců. Informace předané tímto formulářem budou uloženy v databázi správce maximálně po dobu 10 let. Odvolání souhlasu s uložením a zpracováním poskytnutých dat lze e-mailem na info@realitypro.eu. V případě podezření na neoprávněné použití Vámi poskytnutých údajů máte právo předat podnět k šetření Úřadu pro ochranu osobních údajů. Více informací
Chystáte se prodat nemovitost?
Pomůžeme Vám!

Inzerát si prohlédlo 0 lidí

Prodejce

Alena Skalská

Alena Skalská

Hlídací pes

Chcete dostávat emailem podobné nabídky prodeje rodinných domů v Hředlích (okr. Beroun)?

Podobné nemovitosti