Prodej bytu 1+kk, Praha - Libeň, Novákových, 40 m2 (ID: 2735424)

Novákových, Praha, Libeň

7 490 000 Kč /za nemovitost HYPOTÉKA od 33 476 Kč /za měsíc
Prověřené firmy v Praze 8

Stěhovací služby

Výkup a prodej starého nábytku

Informace k bytu

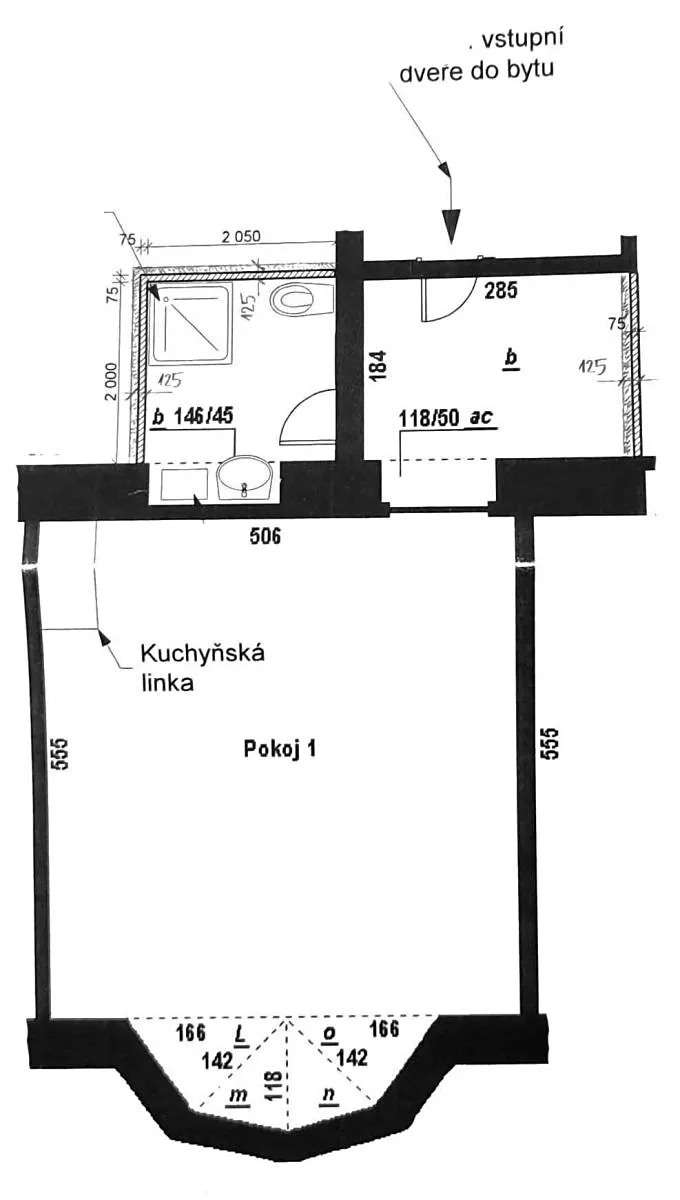
Nabízíme k prodeji útulný, kompletně zrekonstruovaný a plně vybavený byt, který se nachází ve 2. patře krásného secesního domu s výtahem do mezipatra v atraktivní lokalitě Praha 8 Palmovka. Byt prošel v roce 2024 kompletní rekonstrukcí, při které se měnilo skutečně vše: rozvody, podlahy, koupelna, kuchyň, nábytek i vybavení.

Dispozici tvoří otevřený obytný prostor s manželskou postelí, rozkládací pohovkou, moderní kuchyní s indukční varnou deskou, velkou lednicí s mrazákem, digestoří a jídelním stolem. V koupelně se nachází sprchový kout, toaleta, pračka a nové podlahové vytápění. Podlaha je laminátová, v koupelně italská dlažba. Vytápění je lokální elektrické, ohřev vody zajišťuje elektrický bojler. Byt působí vzdušně díky nadstandardní výšce stropů cca 3,4 m.

Byt je aktuálně provozován jako krátkodobé ubytování a prodává se jako fungující business s výborným hodnocením na Booking.com. Jedná se o zavedenou investici s ročným výnosem kolem 5 %, bez nutnosti dalších investic či úprav.

Lokalita nabízí fantastické dopravní spojení
- metro B Palmovka cca 100 m od domu,
- tramvajová a autobusová zastávka prakticky za rohem.
Do centra se dostanete 7 minut metrem nebo 15 minut přímou tramvají.

V blízkosti je skvělá občanská vybavenost: supermarkety Albert a BILLA, vyhlášená pekárna Alf and Bet, posilovna, kavárny a řada velmi dobře hodnocených restaurací. Pěšky se dostanete do trendy čtvrtí Karlín a Holešovice, které nabízejí bohaté možnosti pro trávení volného času: moderní kavárny, vinotéky, restaurace, parky a kulturní program.

Tento byt představuje ideální investiční příležitost s okamžitým výnosem nebo stylové bydlení v širším centru Prahy s perfektní dostupností i atmosférou.

Parametry bytu

Cena
7 490 000 Kč /za nemovitost Spočítat hypotéku
Aktualizováno
17. 11. 2025
Adresa
Novákových, Praha, Libeň
ID
7/17
Stavba
Cihlová
Stav objektu
Velmi dobrý
Patro
2. z 4
Vybaveno
Ano
Vlastnictví
Osobní
Užitná plocha
40 m2
Podlahová plocha
40 m2
Třída energetické náročnosti
C - Úsporná
Elektřina
230V
Odpad
Veřejná kanalizace
Topení
Lokální elektrické
Komunikace
Asfaltová
Telekomunikace
Internet
Doprava
MHD, Autobus
Voda
Vodovod
Výtah
Bezbarierový přístup

Kontaktovat makléře

Máte zájem o tento byt?

Tímto, v souladu s nařízením Evropského parlamentu a Rady (EU) 2016/679, v platném znění, prohlašuji, že mi je alespoň 16 let a uděluji tak svůj souhlas se zpracováním zadaných údajů (jméno, telefon, e-mail, ip adresa) společnosti B3 Technology, s.r.o., IČ: 07330600, se sídlem Novostavby 126/23, 435 11 Lom (správce dat), za účelem předání dotazu z tohoto formuláře Vámi vybranému inzerentovi a zpětného kontaktování mé osoby. Osobní údaje bude správce zpracovávat manuálně i automaticky přímo prostřednictvím svých zaměstnanců. Informace předané tímto formulářem budou uloženy v databázi správce maximálně po dobu 10 let. Odvolání souhlasu s uložením a zpracováním poskytnutých dat lze e-mailem na info@realitypro.eu. V případě podezření na neoprávněné použití Vámi poskytnutých údajů máte právo předat podnět k šetření Úřadu pro ochranu osobních údajů. Více informací
Chystáte se prodat nemovitost?
Pomůžeme Vám!

Inzerát si prohlédlo 1 lidí

Prodejce

Oleksandra Sharnova

Oleksandra Sharnova

Hlídací pes

Chcete dostávat emailem podobné nabídky prodeje bytů 1+kk v Praze 8?

Podobné nemovitosti