Prodej bytu 3+1, Jihlava, Srázná, 78 m2 (ID: 2728270)

Srázná, Jihlava

4 800 000 Kč /za nemovitost HYPOTÉKA od 21 453 Kč /za měsíc
Prověřené firmy v Jihlavě

Informace k bytu

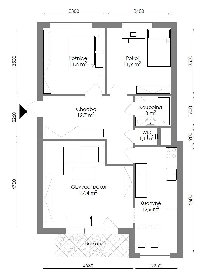
Ve výhradním zastoupení nabízíme prodej bytu 3+1 v osobním vlastnictví, o výměře 74 m² + 4,8 m² balkon v Jihlavě na ulici Srázná. Byt se nachází v 1.NP panelového domu s výtahem.

Byt disponuje vstupní chodbou se skříní, samostatným WC, koupelnou s vanou, kuchyňskou linkou se spotřebiči, obývacím pokojem, ložnicí a dětským pokojem. Z obývacího pokoje je přímý vstup na balkon. Balkon prošel kompletní rekonstrukcí, nové prosklené tabule + UV zastínění pomocí rolet. Balkon je orientovaný do zeleně a nabízí tak nejen krásné výhledy, ale i klid. K bytu náleží také sklep 2 m².

V bytě je laminátová podlaha (ložnice dětský pokoj), vinyl (kuchyň, obývací pokoj) a dlažba (chodba, koupelna, WC). Kuchyň po kompletní rekonstrukci – voda, odpady, elektřina. Nové odpady i voda v koupelně a na WC. Okna plastová dvojskla. Celý dům prošel revitalizací. Vytápění bytu i ohřev vody je zajištěn z centrální kotelny (plyn). Energetická náročnost budovy je C. Měsíční náklady na bydlení jsou cca 8 000 Kč.

Byt se nachází v bezprostřední blízkosti centra města na ulici Srázná. Lokalita tedy nabízí veškerou občanskou vybavenost jen pár kroků od bytu. Zastávky MHD, obchod, pošta, kavárny, restaurace, dětské hřiště, mateřská škola, střední škola, vše na dosah ruky. V Jihlavě je možné využívat MHD, vlak nebo autobusové spojení. Do hlavního města Prahy je to 120 km po D1, do Brna 90 km po D1. V okolí Jihlavy jsou velmi dobré pracovní příležitosti, díky velkému množství průmyslu.

Samozřejmostí je rychlé vyřízení hypotéky za velmi příznivých podmínek.

Parametry bytu

Cena
4 800 000 Kč /za nemovitost Spočítat hypotéku
Aktualizováno
9. 11. 2025
Adresa
Srázná, Jihlava
Stavba
Panelová
Stav objektu
Velmi dobrý
Patro
1.
Vlastnictví
Osobní
Užitná plocha
78 m2
Třída energetické náročnosti
C - Úsporná
Balkon
Sklep
Výtah

Kontaktovat makléře

Máte zájem o tento byt?

Tímto, v souladu s nařízením Evropského parlamentu a Rady (EU) 2016/679, v platném znění, prohlašuji, že mi je alespoň 16 let a uděluji tak svůj souhlas se zpracováním zadaných údajů (jméno, telefon, e-mail, ip adresa) společnosti B3 Technology, s.r.o., IČ: 07330600, se sídlem Novostavby 126/23, 435 11 Lom (správce dat), za účelem předání dotazu z tohoto formuláře Vámi vybranému inzerentovi a zpětného kontaktování mé osoby. Osobní údaje bude správce zpracovávat manuálně i automaticky přímo prostřednictvím svých zaměstnanců. Informace předané tímto formulářem budou uloženy v databázi správce maximálně po dobu 10 let. Odvolání souhlasu s uložením a zpracováním poskytnutých dat lze e-mailem na info@realitypro.eu. V případě podezření na neoprávněné použití Vámi poskytnutých údajů máte právo předat podnět k šetření Úřadu pro ochranu osobních údajů. Více informací
Chystáte se prodat nemovitost?
Pomůžeme Vám!

Inzerát si prohlédlo 0 lidí

Prodejce

Iveta Uhrová

Iveta Uhrová

Hlídací pes

Chcete dostávat emailem podobné nabídky prodeje bytů 3+1 v Jihlavě?

Podobné nemovitosti