Prodej bytu 1+kk, Praha - Kbely, Toužimská, 29 m2 (ID: 2727901)

Toužimská, Praha, Kbely

4 890 000 Kč /za nemovitost HYPOTÉKA od 21 855 Kč /za měsíc
Prověřené firmy v Praze 9

Stěhovací služby

Výkup a prodej starého nábytku

Informace k bytu

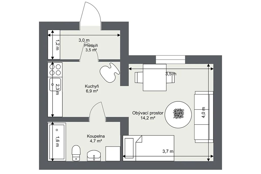
Exkluzivně nabízíme ke koupi byt o dispozici 1+ kk a celkové ploše 29,3 m², který se nachází v oblíbené pražské čtvrti Kbely, v ulici Toužimská. Byt je vhodný jak pro vlastní bydlení, tak i jako zajímavá investiční příležitost.

Nemovitost je situována v přízemí domu a její největší předností je samostatný vstup přímo ze dvora, což poskytuje dostatek soukromí a klidné bydlení. Výhodou je také orientace okna do vnitrobloku, která eliminuje ruch z ulice. K bytu náleží praktický sklep, který poskytuje další úložný prostor.

Byt prošel dílčími úpravami – disponuje novými hliníkovými vchodovými dveřmi a plastovým oknem s izolačním trojsklem. Kuchyň je vybavena plynovým sporákem, v koupelně je umístěna vana. Samozřejmostí je optická přípojka internetu. Součástí domu je také společný dvůr, který čeká na designovou úpravu zeleně. V plánu je vybudování příjemné odpočinkové zóny s okrasnými prvky, která podtrhne klidný charakter celého objektu.

Lokalita – Praha 9 – Kbely

Kbely patří mezi vyhledávané městské části díky spojení plné občanské vybavenosti s příjemným prostředím a blízkostí přírody. V docházkové vzdálenosti je základní a mateřská škola, poliklinika, lékárna, supermarket Billa a další služby. Nedaleko se nachází Centrální park Kbely s dětskými hřišti a cyklostezkami, sportovní areál TJ Sokol i další sportoviště. V širším okolí je také golfové hřiště Black Bridge.

Dopravní dostupnost je velmi dobrá – do centra Prahy se lze pohodlně dostat autem i městskou hromadnou dopravou během krátké doby.

Byt v Toužimské ulici představuje ideální volbu pro ty, kteří hledají praktické a klidné bydlení v dobře dostupné lokalitě, nebo chtějí investovat do nemovitosti s jistým výnosem.

Parametry bytu

Cena
4 890 000 Kč /za nemovitost Spočítat hypotéku
Aktualizováno
8. 11. 2025
Adresa
Toužimská, Praha, Kbely
ID
2025020
Stavba
Cihlová
Stav objektu
Velmi dobrý
Patro
1.
Vybaveno
Částečně
Vlastnictví
Osobní
Užitná plocha
29 m2
Třída energetické náročnosti
D - Méně úsporná
Ukazatel energetické náročnosti
129 kWh/m2 za rok
Elektřina
230V
Plyn
Plynovod
Odpad
Veřejná kanalizace
Doprava
MHD
Topné těleso
Radiátory
Sklep
Výtah
Bezbarierový přístup

Kontaktovat makléře

Máte zájem o tento byt?

Tímto, v souladu s nařízením Evropského parlamentu a Rady (EU) 2016/679, v platném znění, prohlašuji, že mi je alespoň 16 let a uděluji tak svůj souhlas se zpracováním zadaných údajů (jméno, telefon, e-mail, ip adresa) společnosti B3 Technology, s.r.o., IČ: 07330600, se sídlem Novostavby 126/23, 435 11 Lom (správce dat), za účelem předání dotazu z tohoto formuláře Vámi vybranému inzerentovi a zpětného kontaktování mé osoby. Osobní údaje bude správce zpracovávat manuálně i automaticky přímo prostřednictvím svých zaměstnanců. Informace předané tímto formulářem budou uloženy v databázi správce maximálně po dobu 10 let. Odvolání souhlasu s uložením a zpracováním poskytnutých dat lze e-mailem na info@realitypro.eu. V případě podezření na neoprávněné použití Vámi poskytnutých údajů máte právo předat podnět k šetření Úřadu pro ochranu osobních údajů. Více informací
Chystáte se prodat nemovitost?
Pomůžeme Vám!

Inzerát si prohlédlo 1 lidí

Prodejce

Bc. Leo Kopecký, MBA

Bc. Leo Kopecký, MBA

Hlídací pes

Chcete dostávat emailem podobné nabídky prodeje bytů 1+kk v Praze 9?

Top nabídky

Podobné nemovitosti