Prodej rodinného domu, Stará Huť, Pod Šimoňákem, 165 m2

Pod Šimoňákem, Stará Huť

11 490 000 Kč HYPOTÉKA od 51 353 Kč /za měsíc

(včetně provize RK)

Prověřené firmy v Staré Huti

Revize elektrických zařízení

Informace k domu

Prodej krásného rodinného domu 165 m², Stará Huť

V malebné krajině pod Brdy, jen pár minut od Dobříše, se nachází klidná obec Stará Huť. Právě zde, kde Karel Čapek trávil svoje poslední dny, vám exkluzivně nabízíme krásný rodinný dům 5+1, který kombinuje moderní komfort, prostorné bydlení a příjemné venkovské prostředí.
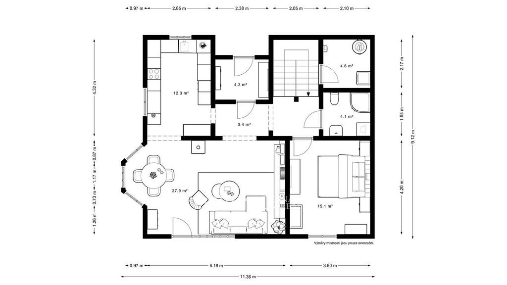
Dům o zastavěné ploše 122 m² a celkové podlahové ploše 171 m², zkolaudovaný v roce 2018, stojí na pozemku o velikosti 911 m² a nachází se v klidné rodinné zástavbě na okraji obce. Je ideální pro rodinu, která hledá komfort, prostor i moderní technologie.

Dispozice a vybavení
V přízemí domu najdete kuchyni 12 m², prostorný obývací pokoj 28 m² a pokoj pro hosty 15 m², doplněný toaletou se sprchovým koutem (4 m²) a technickou místností (5 m²). Podlahy v přízemí jsou řešeny kombinací vinylu a dlažby, což zajišťuje snadnou údržbu a příjemný komfort.

Do horního patra vedou schody k třem prostorným pokojům (18, 23 a 14 m²), koupelně (9 m²) a praktické šatně (5 m²). Podlahy v patře jsou kompletně dřevěné, což vytváří útulnou a příjemnou atmosféru. Všechna okna jsou vybavena předokenními roletami.

Zahrada a technologie
Okolí domu tvoří krásná zahrada, ve které je připravena instalace zavlažovacího systému napojeného na nádrž na dešťovou vodu (6 m³). S dostatkem prostoru pro děti, hry i odpočinek představuje zahrada ideální místo pro trávení volného času. Součástí zahrady je také domek na nářadí.

Dům je vybaven fotovoltaikou (2022) s bateriovým úložištěm 10 kW, kompletně zateplen a vytápění i ohřev vody zajišťuje plynový kondenzační kotel. V přízemí je instalováno vodní podlahové vytápění, v pokojích v patře klasické radiátory. Tepelný komfort navíc zajišťují krbová kamna, která vytvoří útulnou atmosféru, a v letních měsících klimatizace.

Dům nabízí dostatek úložného prostoru díky pochozí půdě a možnostem sezónního uskladnění. Internetové připojení je řešeno mikrovlnným připojením na střeše.

Parkování a dostupnost
Parkování je velmi pohodlné – tři místa, z toho jedno v garáži a dvě na pozemku. Návštěvy mohou bez problému zaparkovat na ulici, kde je dostatek míst.

Dopravní dostupnost je výborná – na dálnici D4 se dostanete během několika minut, Dobříš je vzdálena pouhých 5 minut a Praha přibližně 40 minut jízdy.

Tento dům je ideální pro rodinu, která hledá klidné bydlení v malebném prostředí, komfortní dispozice, moderní technologie a dostatek prostoru pro život i relaxaci.

Odkaz na videoprohlídku Matterport
https://my.matterport.com/show/?m=xhjHKqn19fo

Parametry domu

Cena
11 490 000 Kč Spočítat hypotéku
Poznámka k ceně
včetně provize RK
Aktualizováno
8. 11. 2025
Adresa
Pod Šimoňákem, Stará Huť
ID
DL117P
Stavba
Cihlová
Stav objektu
Dobrý
Vybaveno
Ne
Druh objektu
Samostatný
Lokalita objektu
Okraj obce
Užitná plocha
165 m2
Zastavěná plocha
122 m2
Plocha pozemku
911 m2
Třída energetické náročnosti
G - Mimořádně nehospodárná

Kontaktovat makléře

Máte zájem o tento dům?

Tímto, v souladu s nařízením Evropského parlamentu a Rady (EU) 2016/679, v platném znění, prohlašuji, že mi je alespoň 16 let a uděluji tak svůj souhlas se zpracováním zadaných údajů (jméno, telefon, e-mail, ip adresa) společnosti B3 Technology, s.r.o., IČ: 07330600, se sídlem Novostavby 126/23, 435 11 Lom (správce dat), za účelem předání dotazu z tohoto formuláře Vámi vybranému inzerentovi a zpětného kontaktování mé osoby. Osobní údaje bude správce zpracovávat manuálně i automaticky přímo prostřednictvím svých zaměstnanců. Informace předané tímto formulářem budou uloženy v databázi správce maximálně po dobu 10 let. Odvolání souhlasu s uložením a zpracováním poskytnutých dat lze e-mailem na info@realitypro.eu. V případě podezření na neoprávněné použití Vámi poskytnutých údajů máte právo předat podnět k šetření Úřadu pro ochranu osobních údajů. Více informací
Chystáte se prodat nemovitost?
Pomůžeme Vám!

Inzerát si prohlédlo 1 lidí

Prodejce

David Lorenc

David Lorenc

Hlídací pes

Chcete dostávat emailem podobné nabídky prodeje rodinných domů v Staré Huti?

Podobné nemovitosti