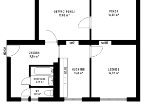
Prodej bytu 3+1, Ostrava - Zábřeh, Baranovova, 70 m2 (ID: 2726997)

Baranovova, Ostrava, Zábřeh

3 695 000 Kč /za nemovitost HYPOTÉKA od 16 514 Kč /za měsíc
Prověřené firmy v Ostravě

Informace k bytu

Byt 3+1, 70 m², nízká zástavba, Ostrava-Zábřeh

Pokud hledáte útulný domov a sídliště není váš šálek kávy, máme tady něco přesně pro vás. Pěkný, slunný byt 3+1 se nachází v 1. NP cihlového domu, takže i když nemá balkon, nabízí kouzlo a atmosféru, kterou v moderních panelových domech budete jen těžko hledat. Menší bytový dům je ideální volbou pro rodinu, páry i případnou investici díky nízkým nákladům. Byt je připraven k nastěhování, prošel částečnou rekonstrukcí, jádro je zděné (koupelna s vanou, WC je zvlášť). Pro aktivní jedince je výhodou množství úložných prostor. Zajímavým bonusem je velká sklepní kóje. Stačí seběhnout schody a v blízkém okolí najdete vše pro sportovní i jiné vyžití - Bělský les, v létě aquapark, pro milovníky nákupů Shopping park. Parkování je možné v okolí domu, zastávka MHD je v pěší vzdálenosti. K bytu je možné dokoupit za zvýhodněnou cenu garáž ve vzdálenosti cca 500 m. Přijďte se podívat. S případným financováním rádi pomůžeme.

Parametry bytu

Cena
3 695 000 Kč /za nemovitost Spočítat hypotéku
Aktualizováno
7. 11. 2025
Adresa
Baranovova, Ostrava, Zábřeh
ID
925484
Stavba
Cihlová
Stav objektu
Dobrý
Vybaveno
Ne
Lokalita objektu
Klidná část obce
Vlastnictví
Osobní
Užitná plocha
70 m2

Kontaktovat makléře

Realitní kancelář

Logo M&M reality

M&M reality

ulice Krakovská 583/9, Praha

Chystáte se prodat nemovitost?
Pomůžeme Vám!

Máte zájem o tento byt?

Tímto, v souladu s nařízením Evropského parlamentu a Rady (EU) 2016/679, v platném znění, prohlašuji, že mi je alespoň 16 let a uděluji tak svůj souhlas se zpracováním zadaných údajů (jméno, telefon, e-mail, ip adresa) společnosti B3 Technology, s.r.o., IČ: 07330600, se sídlem Novostavby 126/23, 435 11 Lom (správce dat), za účelem předání dotazu z tohoto formuláře Vámi vybranému inzerentovi a zpětného kontaktování mé osoby. Osobní údaje bude správce zpracovávat manuálně i automaticky přímo prostřednictvím svých zaměstnanců. Informace předané tímto formulářem budou uloženy v databázi správce maximálně po dobu 10 let. Odvolání souhlasu s uložením a zpracováním poskytnutých dat lze e-mailem na info@realitypro.eu. V případě podezření na neoprávněné použití Vámi poskytnutých údajů máte právo předat podnět k šetření Úřadu pro ochranu osobních údajů. Více informací
Chystáte se prodat nemovitost?
Pomůžeme Vám!

Inzerát si prohlédlo 1 lidí

Prodejce

Petra Florová

Petra Florová

Hlídací pes

Chcete dostávat emailem podobné nabídky prodeje bytů 3+1 v Ostravě?

Podobné nemovitosti