Soccer reality

Prodej rodinného domu, Svojetice, Na Moklině, 159 m2 (ID: 2726843)

Na Moklině, Svojetice

16 150 000 Kč /za nemovitost HYPOTÉKA od 72 181 Kč /za měsíc
Prověřené firmy v Svojeticích

Pojištění a finance

Informace k domu

Prodej rodinného domu, 159 m², Svojetice, ul. Na Moklině

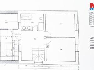
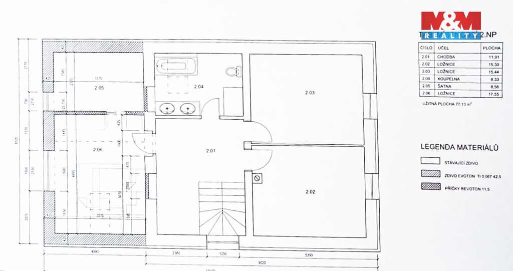
Nabízíme k prodeji velice pěkný, slunný a samostatný rodinný dům 5+kk s terasou, v nadstandardně provedené stavbě z roku 2006, ve Svojeticích u Říčan na P-V. Obytná podlahová plocha místností 159 m2, terasa 18 m2. V přízemí domu se nachází prostorná vstupní hala, předsíň se šatní skříní, WC, sklad, ložnice a velká obývací místnost s kuchyní se spotřebiči Siemens a vstupem přes krásnou pergolu na okrasnou zahradu. V 2.NP se nachází ložnice, 2x dětský pokoj a koupelna s vanou, sprchovým koutem a WC. Velký půdní prostor. Vytápění domu je zajištěno elektrickým kotlem a krbovými kamny na tuhá paliva. Dům je napojen na městskou kanalizaci, vodovod a elektřinu. Na pozemku se nachází bazén s Jacuzzi a zahradní domek s posezením. Většinu hranice zahrady tvoří krásně vzrostlé túje. Kompletní občanská vybavenost - mateřská škola, restaurace, pro koňaře Master Horse Club. Bus zastávka 383, 385,489 jede 45 min. přímý spoj na Prahu - Háje, Opatov. Vřele doporučuji.

Parametry domu

Cena
16 150 000 Kč /za nemovitost Spočítat hypotéku
Aktualizováno
12. 3. 2026
Adresa
Na Moklině, Svojetice
ID
919106
Stavba
Cihlová
Stav objektu
Velmi dobrý
Vybaveno
Ano
Druh objektu
Samostatný
Lokalita objektu
Klidná část obce
Vlastnictví
Osobní
Užitná plocha
159 m2
Plocha pozemku
855 m2

Kontaktovat makléře

Realitní kancelář

Logo M&M reality

M&M reality

ulice Krakovská 583/9, Praha

Chystáte se prodat nemovitost?
Pomůžeme Vám!

Máte zájem o tento dům?

Tímto, v souladu s nařízením Evropského parlamentu a Rady (EU) 2016/679, v platném znění, prohlašuji, že mi je alespoň 16 let a uděluji tak svůj souhlas se zpracováním zadaných údajů (jméno, telefon, e-mail, ip adresa) společnosti B3 Technology, s.r.o., IČ: 07330600, se sídlem Novostavby 126/23, 435 11 Lom (správce dat), za účelem předání dotazu z tohoto formuláře Vámi vybranému inzerentovi a zpětného kontaktování mé osoby. Osobní údaje bude správce zpracovávat manuálně i automaticky přímo prostřednictvím svých zaměstnanců. Informace předané tímto formulářem budou uloženy v databázi správce maximálně po dobu 10 let. Odvolání souhlasu s uložením a zpracováním poskytnutých dat lze e-mailem na info@realitypro.eu. V případě podezření na neoprávněné použití Vámi poskytnutých údajů máte právo předat podnět k šetření Úřadu pro ochranu osobních údajů. Více informací
Chystáte se prodat nemovitost?
Pomůžeme Vám!
Theleadway banner

Inzerát si prohlédlo 15 lidí

Prodejce

Monika Fürstová

Monika Fürstová

Hlídací pes

Chcete dostávat emailem podobné nabídky prodeje rodinných domů v Svojeticích?

Podobné nemovitosti