Prodej rodinného domu, Bechyně, nám. T. G. Masaryka, 360 m2

nám. T. G. Masaryka, Bechyně

Rezervováno
Cena na vyžádání /za nemovitost Získejte výhodnou HYPOTÉKU

(Cena na dotaz v Rk)

Prověřené firmy v Bechyni

Výkup a prodej starého nábytku

Informace k domu

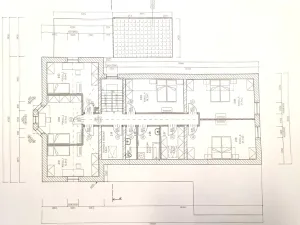
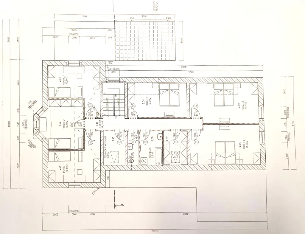
Nabízíme Vám ke koupi hrubou stavbu rodinného domu v Bechyni. Nachází se v klidné části za Bechyňským mostem(k.ú. Bežerovice), která je vhodná jak pro trvalé bydlení, tak i k rekreaci.

Hrubá stavba je patrová se sedlovou střechou, postavena na betonových základových pasech, zastavěná plocha budovy je 180 m2. Pozemek rohový, pravidelného tvaru o výměře 934 m2 přístupný z obecní komunikace.

Obvodové zdivo je ytong 45 cm, vnitřní nosné zdivo ytong 25. Stropy jsou z litého betonu s armaturou. Střešní krytina betonová KM Beta černé barvy. Okna a dveře jsou plastová, garážová vrata zásuvná.

Na pozemku je vrtaná studna. Odpady budou svedeny do domovní čističky odpadních vod a poté s dešťovkou bude vše svedeno do dešťové kanalizace. Elektřina v pilíři na hranici pozemku.

Dům je možno přizpůsobit vlastním potřebám, protože vnitřní prostory nejsou momentálně rozděleny příčkami na jednotlivé místnosti. Vhodné jako investice např. pro krátkodobé ubytování.

Parametry domu

Stav
Rezervováno
Cena
Cena na vyžádání Spočítat hypotéku
Poznámka k ceně
Cena na dotaz v Rk
Aktualizováno
21. 12. 2025
Adresa
nám. T. G. Masaryka, Bechyně
ID
19
Stavba
Cihlová
Stav objektu
Ve výstavbě
Užitná plocha
360 m2
Zastavěná plocha
180 m2
Plocha pozemku
934 m2
Třída energetické náročnosti
G - Mimořádně nehospodárná
Voda
Studna

Kontaktovat makléře

Máte zájem o tento dům?

Tímto, v souladu s nařízením Evropského parlamentu a Rady (EU) 2016/679, v platném znění, prohlašuji, že mi je alespoň 16 let a uděluji tak svůj souhlas se zpracováním zadaných údajů (jméno, telefon, e-mail, ip adresa) společnosti B3 Technology, s.r.o., IČ: 07330600, se sídlem Novostavby 126/23, 435 11 Lom (správce dat), za účelem předání dotazu z tohoto formuláře Vámi vybranému inzerentovi a zpětného kontaktování mé osoby. Osobní údaje bude správce zpracovávat manuálně i automaticky přímo prostřednictvím svých zaměstnanců. Informace předané tímto formulářem budou uloženy v databázi správce maximálně po dobu 10 let. Odvolání souhlasu s uložením a zpracováním poskytnutých dat lze e-mailem na info@realitypro.eu. V případě podezření na neoprávněné použití Vámi poskytnutých údajů máte právo předat podnět k šetření Úřadu pro ochranu osobních údajů. Více informací
Chystáte se prodat nemovitost?
Pomůžeme Vám!

Inzerát si prohlédlo 8 lidí

Prodejce

Jiří Vogeltanz

Jiří Vogeltanz

Hlídací pes

Chcete dostávat emailem podobné nabídky prodeje rodinných domů v Bechyni?

Podobné nemovitosti