Prodej rodinného domu, Žebrák, Na Pěšině, 325 m2

Na Pěšině, Žebrák

12 500 000 Kč /za nemovitost HYPOTÉKA od 55 867 Kč /za měsíc

(včetně provize a právních služeb)

Prověřené firmy v Žebráku

Informace k domu

Nabízíme k prodeji nedávno zkolaudovaný dům o dvou samostatných bytových jednotkách v klidné části města Žebrák.
Ideální volba pro dvougenerační bydlení, kombinaci vlastního bydlení s investicí nebo pronájem obou bytů.
Celková užitná plocha domu je 325 m2.
Tato nemovitost má za sebou dlouhý příběh – původní hrubá stavba byla rozestavěna už v roce 1979, ale svého dokončení se dočkala až v roce 2024. Díky pečlivé a důkladné rekonstrukci vznikl moderní dvougenerační dům, který splňuje všechny nároky dnešního bydlení. Nové rozvody, fasáda, střechy i technická zařízení – vše je zcela nové, s oficiální kolaudací a připravené k okamžitému užívání.¨

Dispozice:
1.NP: byt 4+kk/B + koupelna + samostatné WC + komora (užitná plocha 120,72 m²)
2.NP: byt 4+kk + koupelna + samostatné WC + komora (užitná plocha 105,2 m²)
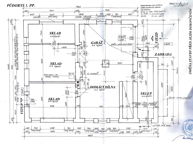
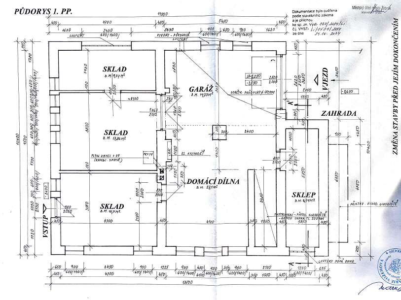
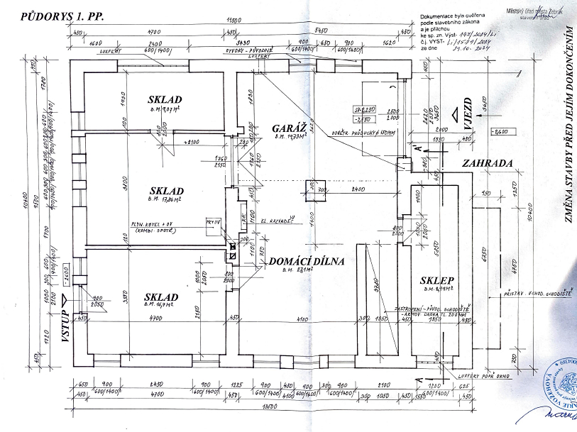
PP: technické zázemí, skladové prostory, garáž, dílna, WC (99,45 m²)

Technický stav:
- Kolaudace říjen 2024
- Kompletní nové rozvody: elektro, voda, odpady, plyn, topení
- Příprava na kuchyňské linky, moderní podlahy – vinyl a dlažba
- Nová elektro skříň, jističe 3x25A, revize elektřiny a plynu
- Nová kanalizační a vodovodní přípojka
- Vytápění: plynový kondenzační kotel + akumulační nádrž
- Zateplení fasády, stropů i podlah, plastová okna s trojskly včetně střešních, foukaná izolace střechy
- Nová střešní krytina Bramac, původní zdravý krov
- Napínané stropy v 1.NP

Pozemek a okolí:
- Celková plocha parcely 713 m²
- Kopaná studna s čerpadlem – ideální pro zalévání
- Parkování v garáži, na pozemku i před domem
- Orientace: JV do ulice, SZ do zahrady

Další výhody:
- PENB třída D (110 kWh), vytápění třída C
- Možnost měsíčního výnosu z pronájmu jednoho bytu min. 20.000 Kč + poplatky

Lokalita:
Rodinný dům se nachází v klidné rezidenční části města Žebrák, odkud máte na dosah přírodu i městské pohodlí.
Samotný Žebrák nabízí kompletní občanskou vybavenost – školu, školku, obchody, restaurace, zdravotní středisko i sportovní zázemí.
Jen pár minut jízdy vás dělí od nájezdu na dálnici D5 – do Prahy to zvládnete za 35 minut, do Plzně za půl hodiny. Další služby, včetně nemocnice nebo velkých supermarketů, najdete v nedalekých Hořovicích.
Okolí potěší všechny milovníky přírody a aktivního života. Město leží v podhůří Křivoklátských lesů, které jsou chráněnou krajinnou oblastí – ideální pro pěší výlety, cyklistiku i houbaření.
Dominantou regionu jsou dva gotické hrady – Točník a Žebrák, které nejen dotvářejí malebnou krajinu, ale jsou i oblíbeným výletním cílem.

Možná je právě tohle místo začátkem vašeho nového příběhu.
Těšíme se na setkání v Žebráku.

Parametry domu

Cena
12 500 000 Kč /za nemovitost Spočítat hypotéku
Poznámka k ceně
včetně provize a právních služeb
Aktualizováno
25. 11. 2025
Adresa
Na Pěšině, Žebrák
ID
15767
Stavba
Cihlová
Stav objektu
Velmi dobrý
Typ objektu
Patrový
Druh objektu
Samostatný
Lokalita objektu
Klidná část obce
Užitná plocha
325 m2
Zastavěná plocha
138 m2
Podlahová plocha
325 m2
Plocha pozemku
713 m2
Třída energetické náročnosti
D - Méně úsporná
Ukazatel energetické náročnosti
110 kWh/m2 za rok
Elektřina
230V, 400V
Plyn
Plynovod
Odpad
Veřejná kanalizace
Komunikace
Asfaltová
Telekomunikace
Kabelové rozvody
Doprava
Dálnice, Silnice, Autobus
Voda
Vodovod, Studna
Garáž
Sklep
Převod do OV
Parkování

Kontaktovat makléře

Máte zájem o tento dům?

Tímto, v souladu s nařízením Evropského parlamentu a Rady (EU) 2016/679, v platném znění, prohlašuji, že mi je alespoň 16 let a uděluji tak svůj souhlas se zpracováním zadaných údajů (jméno, telefon, e-mail, ip adresa) společnosti B3 Technology, s.r.o., IČ: 07330600, se sídlem Novostavby 126/23, 435 11 Lom (správce dat), za účelem předání dotazu z tohoto formuláře Vámi vybranému inzerentovi a zpětného kontaktování mé osoby. Osobní údaje bude správce zpracovávat manuálně i automaticky přímo prostřednictvím svých zaměstnanců. Informace předané tímto formulářem budou uloženy v databázi správce maximálně po dobu 10 let. Odvolání souhlasu s uložením a zpracováním poskytnutých dat lze e-mailem na info@realitypro.eu. V případě podezření na neoprávněné použití Vámi poskytnutých údajů máte právo předat podnět k šetření Úřadu pro ochranu osobních údajů. Více informací
Chystáte se prodat nemovitost?
Pomůžeme Vám!

Inzerát si prohlédlo 8 lidí

Prodejce

Ing. Markéta Soukupová

Ing. Markéta Soukupová

Hlídací pes

Chcete dostávat emailem podobné nabídky prodeje rodinných domů v Žebráku?

Top nabídky

Podobné nemovitosti