Prodej bytu 2+1, Přerov - Přerov VIII-Henčlov, Výmyslov, 48 m2 (ID: 2721045)

Výmyslov, Přerov VIII-Henčlov

2 190 000 Kč /za nemovitost HYPOTÉKA od 9 788 Kč /za měsíc
Prověřené firmy v Přerově

Pojištění a finance

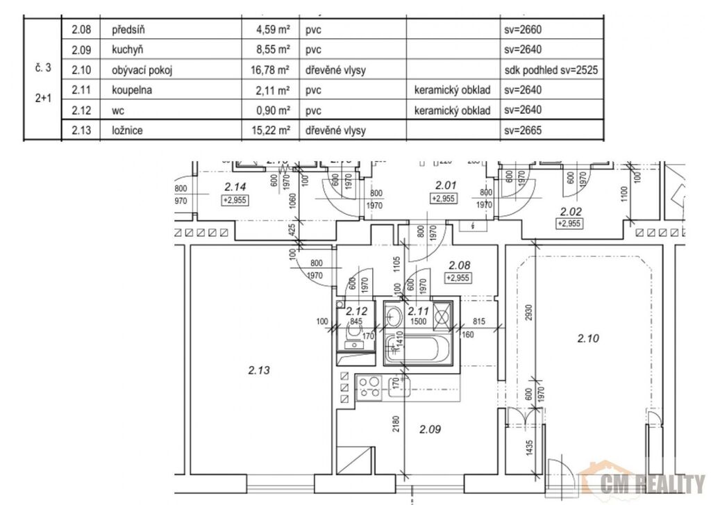
Informace k bytu

Hledáte útulné místo k bydlení nebo zajímavou investiční příležitost? Tento byt o dispozici 2+1 a výměře 48 m ve Výmyslově vám nabídne oboje. Nachází se ve 2. nadzemním podlaží cihlového domu bez zateplení se 7 bytovými jednotkami.

Byt je světlý, s orientací na jihozápad, s příjemným výhledem do okolní zeleně. Nemovitost je určena ke kompletní rekonstrukci. Ideální pro mladý pár nebo jako investice na pronájem. Součástí je nová kuchyňská linka a interiérové dveře. Původní dřevěná okna, potřeba dodělat podlahy.

V bytě jsou připravené funkční komínové vývody ve všech místnostech sousední byty je využívají pro instalaci krbových kamen na tuhá paliva, ze kterých vedou rozvody teplé vody do radiátorů. Alternativně lze vytápění řešit elektrokotlem, instalace do stupaček. Budova je napojena na veřejný vodovod a jednotnou kanalizační síť. Ohřev vody zajišťuje elektrický bojler.

K bytu náleží dvě sklepní kóje o výměře 1,5m2 a 2,8 m2, v domě je k dispozici také společná kolárna. Střecha i statika budovy jsou v pořádku, nečekají vás žádné nečekané investice.

Parkování je umožněno na pozemku přímo před domem. Měsíční náklady do fondu oprav činí 1 727 Kč.

Obec Výmyslov je součástí městské části Henčlov ve statutárním městě Přerov. Nabízí ideální kombinaci venkovského klidu a městské infrastruktury. Do centra Přerova se autem dostanete za pouhých 5 minut.

Parametry bytu

Cena
2 190 000 Kč /za nemovitost Spočítat hypotéku
Aktualizováno
1. 4. 2026
Adresa
Výmyslov, Přerov VIII-Henčlov
ID
1163
Stavba
Cihlová
Stav objektu
Před rekonstrukcí
Patro
2. z 3
Typ objektu
Patrový
Vlastnictví
Osobní
Užitná plocha
48 m2
Podlahová plocha
48 m2
Třída energetické náročnosti
G - Mimořádně nehospodárná
Topení
Lokální tuhá paliva
Sklep
Bezbarierový přístup
Parkování

Kontaktovat makléře

Realitní kancelář

Logo CM reality

CM reality

Poděbradovo nám. 980/11, Prostějov

Chystáte se prodat nemovitost?
Pomůžeme Vám!

Máte zájem o tento byt?

Tímto, v souladu s nařízením Evropského parlamentu a Rady (EU) 2016/679, v platném znění, prohlašuji, že mi je alespoň 16 let a uděluji tak svůj souhlas se zpracováním zadaných údajů (jméno, telefon, e-mail, ip adresa) společnosti B3 Technology, s.r.o., IČ: 07330600, se sídlem Novostavby 126/23, 435 11 Lom (správce dat), za účelem předání dotazu z tohoto formuláře Vámi vybranému inzerentovi a zpětného kontaktování mé osoby. Osobní údaje bude správce zpracovávat manuálně i automaticky přímo prostřednictvím svých zaměstnanců. Informace předané tímto formulářem budou uloženy v databázi správce maximálně po dobu 10 let. Odvolání souhlasu s uložením a zpracováním poskytnutých dat lze e-mailem na info@realitypro.eu. V případě podezření na neoprávněné použití Vámi poskytnutých údajů máte právo předat podnět k šetření Úřadu pro ochranu osobních údajů. Více informací
Chystáte se prodat nemovitost?
Pomůžeme Vám!
Theleadway banner

Inzerát si prohlédlo 108 lidí

Prodejce

Mgr. Hana  Šálková

Mgr. Hana Šálková

Hlídací pes

Chcete dostávat emailem podobné nabídky prodeje bytů 2+1 v Přerově?

Podobné nemovitosti