Sídliště, Bystřice pod Hostýnem
Pronájem nových bytů v Bystřici pod Hostýnem – Sídliště.
Nabízíme moderní byty v nově zrekonstruovaném bytovém domě v ulici Sídliště, Bystřice pod Hostýnem.
Dům je po kompletní a zdařilé rekonstrukci dosahuje energetické třídy A, což zaručuje nízké provozní náklady a komfortní bydlení.
K dispozici jsou byty různých dispozic od 1+kk po 3+kk – ideální pro jednotlivce, páry i rodiny.
Standard vybavení:
- moderní PVC podlahy v obytných místnostech + dlažba,
- kuchyňská linka a míru včetně spotřebičů (lednice, sporák, digestoř, trouba),
- podlahové teplovodní vytápění,
- rekuperace pro stálý přísun čerstvého vzduchu,
- ke každému bytu je přiřazený sklep v 1PP,
- k některým bytům pohodlné terasy.
Možnost pronájmu parkovacího stání za 500 Kč/měsíc.
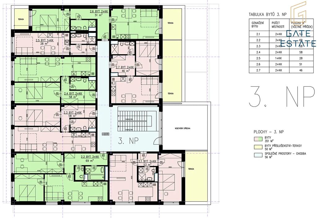
V tomto inzerátu uvádím byt 2kk, 46m2 + 18m2 terasa a sklep, umístěný v 3NP. Byt je vybavený kuchyňskou linkou na míru vč. spotřebičů výše uvedených. Pro lepší představu jsme pro Vás vytvořili 3D půdorysy (rozmístění nábytku je pouze orientační) pro lepší čitelnost a vizualizaci budoucí kuchyně. V barevném půdorysu, který uvádíme ve fotografiích, se jedná o byt č. 2.7.
Platební podmínky - měsíčně:
Nájem činí 13.000,-Kč + služby (1.200,-Kč elektřina, 900,-Kč topení, úklid a osvětlení spol. prostor 350,-Kč, studená voda 600,-Kč/os, ohřev TV 300,-Kč/os, odvoz odpadu 100,-Kč). Nutno zmínit, že byty jsou nové a nikdo v těchto bytech ještě nebydlel. Zálohy na služby a energie jsou tedy odhadované a po určitém čase užívání se upraví dle reálné spotřeby aby nevznikaly větší přeplatky či nedoplatky). V tuto chvíli jsme zvolili zálohy na stranu bezpečnou. V případě 2 osob celková měsíční platba činí 17.350,-Kč.
Vratná kauce je ve výši dvou nájmů. Jednorázová provize činí jeden nájem + DPH.
Preferovaný je dlouhodobý pronájem bez domácích mazlíčků (psi a kočky).
K nastěhování předběžně od 1. 4. 2026.
V případě zájmu o jakékoliv informace mě prosím kontaktujte, rád se s Vámi sejdu, projdeme si půdorysy a zodpovím vám veškeré dotazy. Podle možností stavby je také možné si byty projít přímo na místě.
Palackého 859/78, Holešov
Máte zájem o tento byt?
Inzerát si prohlédlo 1 lidí
 
                                Mgr. Jiří Kaňa, MBA
Chcete dostávat emailem podobné nabídky pronájmu bytů 2+kk v Bystřici pod Hostýnem?