Aloise Rašína, Olomouc, Řepčín
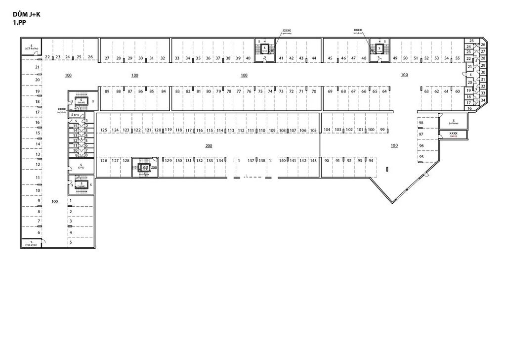
K pronájmu Vám exkluzivně nabízíme garážová stání č. 19 a 104 v nově zkolaudované etapě Holandské čtvrti - dům J+K. Oblíbený projekt se nachází na ulici Aloise Rašína, katastrální území Neředín/Řepčín. Vstup do prostoru hromadné garáže je v části garážových vrat i samostatně venkovním výtahem.
Wellnerova 1354/29, Olomouc
Máte zájem o tuto nemovistost?
Inzerát si prohlédlo 0 lidí
 
                                Mgr. Anna Opluštilová
Chcete dostávat emailem podobné nabídky pronájmu garážových stání v Olomouci?