Svatopluka Čecha, Český Brod
Nabízíme prodej rodinného domu z roku 1936 v klidné a žádané lokalitě Českého Brodu. Dům je udržovaný v původním technickém stavu, průběžně modernizovaný, vhodný jak k okamžitému užívání, tak k rekonstrukci dle vlastních představ. Velkou předností je přístup na pozemek z obou ulic – ideální pro dvougenerační řešení, podnikání nebo pohodlné parkování.
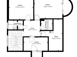
Dispozice domu:
•	1. NP 117 m²: vstupní hala se schodištěm, kuchyně, obývací pokoj s novějším oknem, další pokoj, koupelna s WC, vstup do sklepa a podkroví
•	2. NP 97 m²: dvě ložnice, WC, hala, komora a velký půdní prostor vhodný k další vestavbě
•	Sklep: cca 44 m², ideální pro sklad, dílnu nebo technické zázemí
Dům napojen na elektřinu, plyn, obecní vodu a kanalizaci. Na zahradě kopaná studna (užitková voda). Samostatná zděná garáž z roku 1960 se vstupem přímo ze zahrady. Pozemek má celkem 490 m².
Průběžná modernizace:
•	nový funkční plynový kotel včetně napojení na rozvody a topná tělesa
•	výměna střešní krytiny – alukryt (hliník), rok 1985
•	zateplení fasády polystyrenem, rok 1997
•	rekonstrukce koupelny a WC, rok 2005
Lokalita a občanská vybavenost:
Velmi klidná ulice s převážně rezidenční zástavbou. V pěší vzdálenosti mateřská i základní škola, gymnázium, sportovní areál, obchody i lékaři. Do centra města pár minut chůze.
Výborné spojení do Prahy — vlak každých cca 15–20 minut, do centra Prahy (Masarykovo nádraží) cca 35 minut. Rychlý nájezd i na D11. V případě zájmu o prohlídku nás neváhejte kontaktovat.
Rohanské nábřeží 678/27, Praha
Máte zájem o tento dům?
Inzerát si prohlédlo 1 lidí
 
                                Josef Vencovský
Chcete dostávat emailem podobné nabídky prodeje rodinných domů v Českém Brodu?