Komenského, Židlochovice
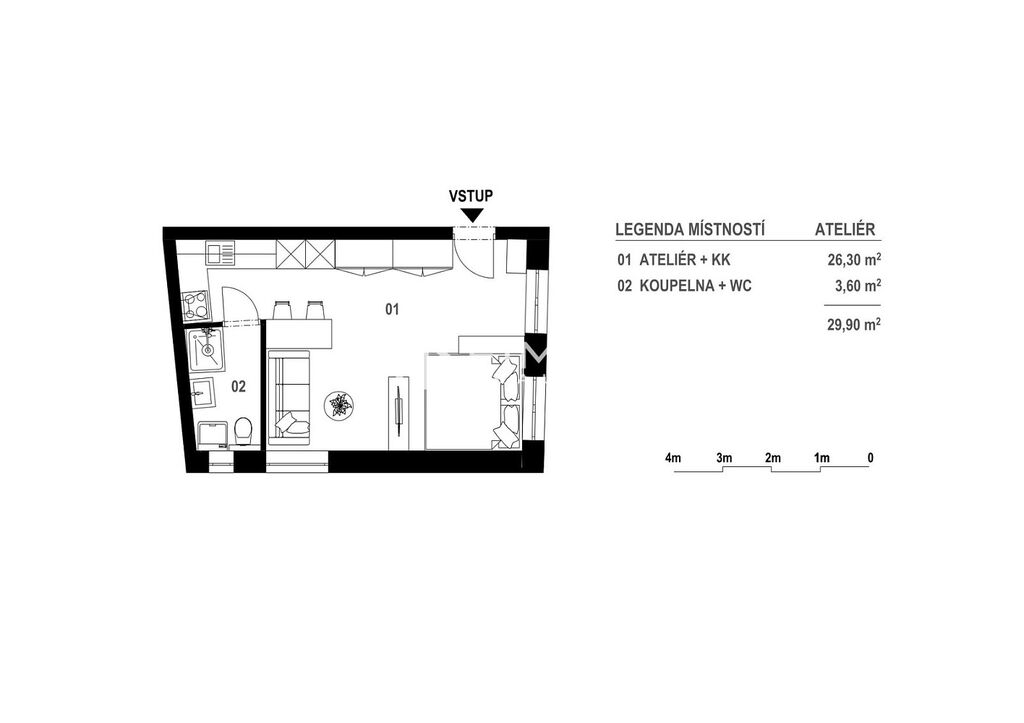
Nabízíme k prodeji novou jednotku (ateliér) ve 2. nadzemním podlaží moderního bytového domu s celkem 8 jednotkami. Dům má 3 podlaží a nachází se v klidné lokalitě s výbornou dostupností do centra. Dispozice je 1+kk, užitná plocha 30 m².
Ateliér bude dokončen v kvalitním standardu – ve spolupráci s investorem si můžete vybrat typ, dekor podlah, dveří i obkladů podle vlastního vkusu.
Standard zahrnuje:
- skládané vinylové podlahy od společnosti Supellex
- interiérové dveře a vstupní bezpečnostní dveře z DKP Market
- koupelnu s obklady a sanitou od studia Ptáček
Na bytě jsou již hotové přípravy k předokením žaluziím.
Nemovitost je nabízena do osobního vlastnictví. K jednotce je možné přikoupit výhradní parkovací stání, které je umístěno v dvorním uzavřeném traktu.
Projekt je vhodný jak pro vlastní bydlení, tak na investici. K financování nemovitosti lze využít našeho kolegu ze společnosti Partners.
Předpokládaný termín stěhování je 2. čtvrtletí 2026.
V případě zájmu o prohlídku nebo konzultaci mne prosím kontaktujte na uvedeném telefoním čísle nebo e-mailu.
-------------------------------
Průkaz energetické náročnosti budovy nebyl doložen, proto je objekt automaticky zařazen do energetické třídy G – mimořádně nehospodárná.
Wolkerova 1210/27, Olomouc
Máte zájem o tento byt?
Inzerát si prohlédlo 1 lidí
 
                                Ing. Filip Hylák
Chcete dostávat emailem podobné nabídky prodeje bytů 1+kk v Židlochovicích?