Pronájem kanceláře, Brno, Hněvkovského, 25 m2

Hněvkovského, Brno, Komárov

3 593 Kč /za měsíc Získejte výhodnou HYPOTÉKU
Prověřené firmy v Brně

Informace k nemovitosti

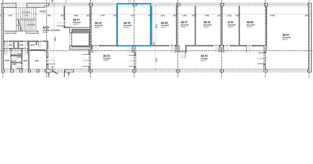
Rádi bychom Vám představili kancelář k pronájmu v Brně. Tato kancelář se nachází ve druhém patře cihlové, patrové budovy v dobrém stavu. Budova byla postavena v roce 1972 a nabízí přístup nejen po schodech, ale i výtahem, což zajišťuje bezbariérový přístup.

Náklady na pronájem:
- nájemné 3.593,- Kč/měsíc bez DPH
- vyhrazené parkovací místo 600,- Kč/měsíc bez DPH
- servisní poplatek 506,- Kč/měsíc bez DPH (zahrnuje režijní náklady spojené se správou)
- energie rozúčtované dle pronajaté výměry m2
- je možné objednat i další služby (připojení k internetu, úklid pronajatých prostor)
- kauce/jistota 20.000,- Kč


Kancelář má užitnou plochu 25 m² a je situována v rušné části obce, což zajistí rychlou dostupnost pro vaše klienty i kolegy. V blízkosti najdete všechny potřebné dopravní spojení, včetně dálnice, silnic, městské hromadné dopravy a autobusů. Parkování je v okolí k dispozici, což činí tuto kancelář ideálním místem pro vaše podnikání.

Průkaz energetické náročnosti budovy je označen třídou F. Provozní náklady Vám sdělí makléř, který je kontaktní osobou u tohoto inzerátu. Kancelář je vhodná k nastěhování od 1.11.2025.

Pokud Vás tato kancelář zaujala, neváhejte nám napsat nebo zavolat a rádi Vám vše ukážeme osobně.

Parametry nemovitosti

Cena
3 593 Kč /za měsíc
Aktualizováno
27. 10. 2025
Adresa
Hněvkovského, Brno, Komárov
Stavba
Cihlová
Stav objektu
Dobrý
Patro
2. z 3
Lokalita objektu
Rušná část obce
Užitná plocha
25 m2
Třída energetické náročnosti
F - Velmi nehospodárná
Elektřina
230V
Plyn
Plynovod
Odpad
Veřejná kanalizace
Komunikace
Asfaltová
Telekomunikace
Telefon, Internet
Doprava
Dálnice, Silnice, MHD, Autobus
Voda
Vodovod
Topné těleso
Radiátory
Zdroj topení
Plynový kotel
Zdroj teplé vody
Plynový kotel
Výtah
Bezbarierový přístup
Parkování

Kontaktovat makléře

Máte zájem o tuto nemovistost?

Tímto, v souladu s nařízením Evropského parlamentu a Rady (EU) 2016/679, v platném znění, prohlašuji, že mi je alespoň 16 let a uděluji tak svůj souhlas se zpracováním zadaných údajů (jméno, telefon, e-mail, ip adresa) společnosti B3 Technology, s.r.o., IČ: 07330600, se sídlem Novostavby 126/23, 435 11 Lom (správce dat), za účelem předání dotazu z tohoto formuláře Vámi vybranému inzerentovi a zpětného kontaktování mé osoby. Osobní údaje bude správce zpracovávat manuálně i automaticky přímo prostřednictvím svých zaměstnanců. Informace předané tímto formulářem budou uloženy v databázi správce maximálně po dobu 10 let. Odvolání souhlasu s uložením a zpracováním poskytnutých dat lze e-mailem na info@realitypro.eu. V případě podezření na neoprávněné použití Vámi poskytnutých údajů máte právo předat podnět k šetření Úřadu pro ochranu osobních údajů. Více informací
Chystáte se prodat nemovitost?
Pomůžeme Vám!

Inzerát si prohlédlo 1 lidí

Prodejce

Jarmila Mazourová

Jarmila Mazourová

Hlídací pes

Chcete dostávat emailem podobné nabídky pronájmu kanceláří v Brně?

Podobné nemovitosti