Pronájem kanceláře, Brno, Hněvkovského, 19 m2 (ID: 2715507)

Hněvkovského, Brno, Komárov

3 780 Kč /za měsíc Získejte výhodnou HYPOTÉKU
Prověřené firmy v Brně

Informace k nemovitosti

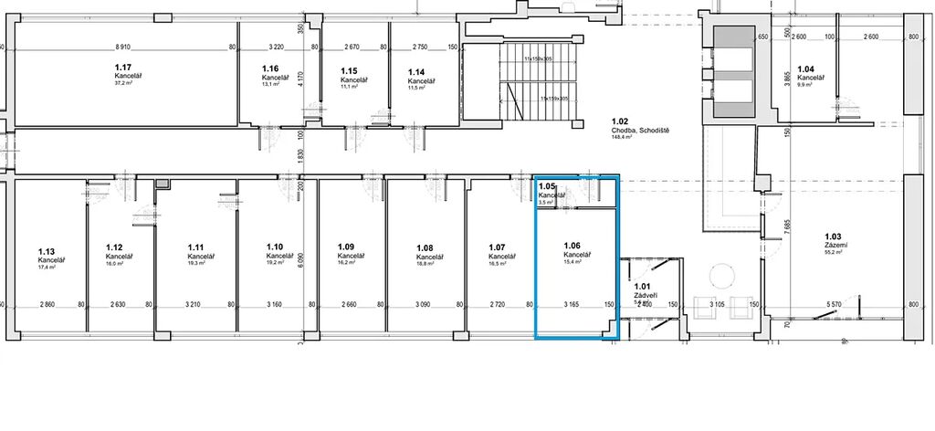
Jako majitel rozsáhlého areálu v atraktivní lokalitě Brno – Komárov Vám nabízíme k pronájmu kancelář o výměře 19 m², umístěnou v 1. nadzemním podlaží Budovy č. 1.
Areál je přehledně označen moderním navigačním systémem, k dispozici je dostatek parkovacích míst pro nájemce i návštěvy.
V rámci podlaží je k dispozici sdílené sociální zázemí, které prošlo v letošním roce rekonstrukcí, v současnosti dokončujeme výstavbu společné kuchyňky a jednací místnosti, které budou k využití pro všechny nájemce kanceláří.
V případě zájmu je možné pronajmout i další kanceláře ve stejném patře o velikostech 16–20 m², případně celý soubor až 5 kanceláří.
Dle dohody nabízíme i možnost pronájmu recepce, která může sloužit jako podpora pro Vaši firmu či zázemí pro klientský servis.
Pro více informací nebo prohlídku nás neváhejte kontaktovat.

Náklady na pronájem:
- nájemné 3.780,- Kč/měsíc bez DPH
- vyhrazené parkovací místo 600,- Kč/měsíc bez DPH
- energie rozúčtované dle pronajaté výměry m2
- servisní poplatek 458,- Kč/měsíc bez DPH (zahrnuje režijní náklady spojené se správou)
- je možné objednat i další služby (připojení k internetu, úklid pronajatých prostor)
kauce/jistota 21.000,- Kč

Výhody areálu Hněvkovského:
• výborná dopravní dostupnost – autem 4 minuty z centra Brna, 3 minuty z dálnic D1 a D2
• zastávka MHD přímo před areálem – autobusy č. 40, 48, 63, 67 (cca 10 minut z hlavního nádraží, 8 minut od Vaňkovky, 5 minut ze Zvonařky)
• noční ostraha, přístup do areálu v režimu 24/7
• volnočasové centrum Komec a cyklostezka podél řeky Svratky naproti areálu
• supermarket Lidl v těsné blízkosti
• po dohodě možnost umístění Vaší reklamy v rámci areálu či při ulici Hněvkovského

V případě zájmu o více informací či sjednání prohlídky prostor prosím kontaktujte paní Jarmilu Mazourovou na tel. 739 032 727. Rádi se Vám budeme věnovat.

Parametry nemovitosti

Cena
3 780 Kč /za měsíc
Aktualizováno
27. 10. 2025
Adresa
Hněvkovského, Brno, Komárov
Stavba
Cihlová
Stav objektu
Dobrý
Patro
1.
Vybaveno
Ne
Užitná plocha
19 m2
Podlahová plocha
19 m2
Elektřina
230V
Plyn
Plynovod
Odpad
Veřejná kanalizace
Komunikace
Asfaltová
Telekomunikace
Telefon, Internet
Doprava
Dálnice, Silnice, MHD, Autobus
Voda
Vodovod
Topné těleso
Radiátory
Zdroj topení
Plynový kotel
Zdroj teplé vody
Plynový kotel
Výtah
Bezbarierový přístup
Parkování

Kontaktovat makléře

Máte zájem o tuto nemovistost?

Tímto, v souladu s nařízením Evropského parlamentu a Rady (EU) 2016/679, v platném znění, prohlašuji, že mi je alespoň 16 let a uděluji tak svůj souhlas se zpracováním zadaných údajů (jméno, telefon, e-mail, ip adresa) společnosti B3 Technology, s.r.o., IČ: 07330600, se sídlem Novostavby 126/23, 435 11 Lom (správce dat), za účelem předání dotazu z tohoto formuláře Vámi vybranému inzerentovi a zpětného kontaktování mé osoby. Osobní údaje bude správce zpracovávat manuálně i automaticky přímo prostřednictvím svých zaměstnanců. Informace předané tímto formulářem budou uloženy v databázi správce maximálně po dobu 10 let. Odvolání souhlasu s uložením a zpracováním poskytnutých dat lze e-mailem na info@realitypro.eu. V případě podezření na neoprávněné použití Vámi poskytnutých údajů máte právo předat podnět k šetření Úřadu pro ochranu osobních údajů. Více informací
Chystáte se prodat nemovitost?
Pomůžeme Vám!

Inzerát si prohlédlo 5 lidí

Prodejce

Jarmila Mazourová

Jarmila Mazourová

Hlídací pes

Chcete dostávat emailem podobné nabídky pronájmu kanceláří v Brně?

Podobné nemovitosti