Prodej rodinného domu, Praha - Hlubočepy, Hlubočepská, 156 m2 (ID: 2707048)

Hlubočepská, Praha, Hlubočepy

15 900 000 Kč /za nemovitost HYPOTÉKA od 71 063 Kč /za měsíc
Prověřené firmy v Praze 5

Stěhovací služby

Výkup a prodej starého nábytku

Informace k domu

Prodej zrekonstruovaného zatepleného cihlového domu 5+KK o velikosti 156m2 s pozemkem 127 m2, Praha 5 - Hlubočepy (Hlubočepská ulice), který nabízí svému majiteli spoustu výhod.
Dům je velmi vhodný pro bydlení nebo pro komerční využití.

Dům se sestává ze 3 jednotek, z nichž předmětem prodeje jsou 2 jednotky v domě o velikosti 156 m2, které mohou být užívány odděleně nebo společně.

Jedna z výhod domu je zajímavá a praktická dispozice, je zde totiž možnost využít větší jednotku v patře k bydlení a menší jednotku v přízemí s toaletou a s garáží využívat k podnikání.

Další výhoda je, že dům má 2 samostatné vstupy (oba můžete využívat), nejste tedy rušeni vlastníkem, který vlastní 3. malou jednotku v přízemí domu.
Pokud se navíc rozhodnete využívat spodní jednotku k podnikání, máte pro ní k dispozici jeden samostatný vstup.

Lokalita Praha 5 - Hlubočepy je velmi zajímavá, protože kombinuje městské bydlení a zároveň bydlení v těsné blízkosti přírody.
Nachází se zde přírodní rezervace Prokopské údolí, Dalejský potok a Děvín a zároveň je k dispozici veškerá občanská vybavenost jako mateřská i základní škola (cca 250m od domu), prodejny potravin, cukrárna-kavárna, wellness centrum, pizzerie, restaurace a další služby.

Další výhodou je výborné spojení MHD na Smíchovské nádraží cca 10min busem nebo 12min vlakem, zastávky jsou od domu vzdáleny cca 100 a 200 metrů.

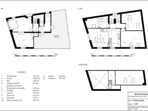
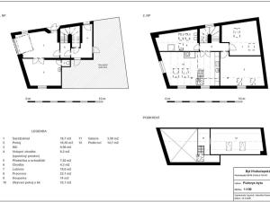
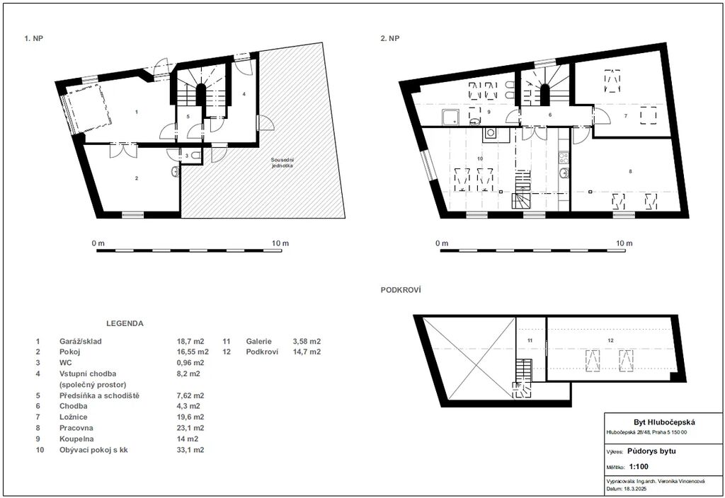
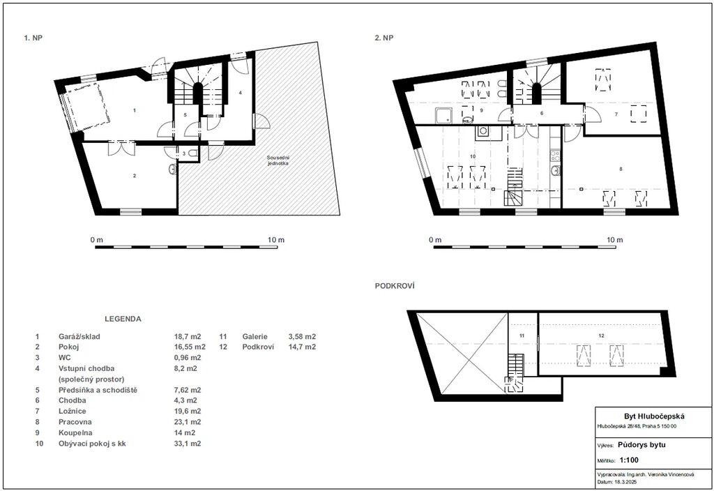
Jednotka č. 1 je byt 4kk o výměře 120 m2 nacházející se v 1. patře domu a sestávající se z předsíňky, schodiště, chodby, obývacího pokoje s kuchyňským koutem a krbem, ložnice, pracovny, koupelny s WC a ložnice v podkrovním prostoru.

Jednotka č. 2 zapsaná v Katastru nemovitostí jako dílna/provozovna o výměře 36 m2 se nachází v přízemí domu a tvoří ji vnitřní zateplený prostor, který je přístupný buď vlastními zabezpečenými dveřmi z ulice nebo garážovými vraty a dále místnost s WC a umyvadlem, která může mít také vlastní vstup z ulice. Celá jednotka je po rekonstrukci a je velmi variabilní z hlediska užívání i přístupu, lze ji využít jako obchod, provozovnu, sklad, nebo i kancelář.

Dům je vytápěn plynovým kotlem Vaillant s bojlerem na ohřev vody. Roční náklady vytápění a ohřev vody obou jednotek v domě činí cca 45.000,-
Každá jednotka má samostatný vodoměr a elektroměr.
Pro parkování můžete využít garáž nebo prostor před domem.

Parametry domu

Cena
15 900 000 Kč /za nemovitost Spočítat hypotéku
Aktualizováno
24. 10. 2025
Adresa
Hlubočepská, Praha, Hlubočepy
Stavba
Cihlová
Stav objektu
Velmi dobrý
Užitná plocha
156 m2
Plocha pozemku
127 m2
Třída energetické náročnosti
E - Nehospodárná
Elektřina
230V
Plyn
Plynovod
Odpad
Veřejná kanalizace
Komunikace
Asfaltová
Telekomunikace
Telefon, Internet
Doprava
Vlak, MHD, Autobus
Voda
Vodovod
Zdroj topení
Plynový kotel
Zdroj teplé vody
Bojler - plyn
Garáž
Parkování

Kontaktovat makléře

Realitní kancelář

Ing. Ondřej Psohlavec

Valdštejnské náměstí 163/2, Praha

Chystáte se prodat nemovitost?
Pomůžeme Vám!

Máte zájem o tento dům?

Tímto, v souladu s nařízením Evropského parlamentu a Rady (EU) 2016/679, v platném znění, prohlašuji, že mi je alespoň 16 let a uděluji tak svůj souhlas se zpracováním zadaných údajů (jméno, telefon, e-mail, ip adresa) společnosti B3 Technology, s.r.o., IČ: 07330600, se sídlem Novostavby 126/23, 435 11 Lom (správce dat), za účelem předání dotazu z tohoto formuláře Vámi vybranému inzerentovi a zpětného kontaktování mé osoby. Osobní údaje bude správce zpracovávat manuálně i automaticky přímo prostřednictvím svých zaměstnanců. Informace předané tímto formulářem budou uloženy v databázi správce maximálně po dobu 10 let. Odvolání souhlasu s uložením a zpracováním poskytnutých dat lze e-mailem na info@realitypro.eu. V případě podezření na neoprávněné použití Vámi poskytnutých údajů máte právo předat podnět k šetření Úřadu pro ochranu osobních údajů. Více informací
Chystáte se prodat nemovitost?
Pomůžeme Vám!

Inzerát si prohlédlo 1 lidí

Prodejce

Ing. Jaroslav Mareček

Ing. Jaroslav Mareček

Hlídací pes

Chcete dostávat emailem podobné nabídky prodeje rodinných domů v Praze 5?

Podobné nemovitosti