Prodej rodinného domu, Veverské Knínice, 135 m2 (ID: 2706463)

Veverské Knínice, okres Brno-venkov

Prověřené firmy v Veverských Knínicích

Informace k domu

Prodej RD na klíč 135 m², pozemek 800 m², Veverské Knínice, Brno-venkov

Ve výhradním zastoupení Vám zprostředkujeme prodej rodinného patrového domu Family s užitnou plochou 135 m² k výstavbě na pozemku o velikosti 800 m² v obci Veverské Knínice. Pozemek se nachází na kraji obce ve velmi klidné části. Stavební šířka pozemku je cca 15,5 m a délka cca 51,6 m. Vjezd na pozemek vede z asfaltové hlavní silnice. Tato nabídka RD na klíč je včetně pozemku a vodovodní a kanalizační přípojky, které budou přivedeny na hranici pozemku. Elektro přípojka bude umístěna u vjezdu na pozemek.
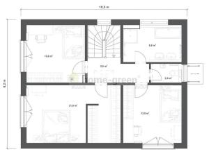
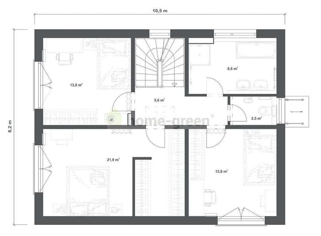
Dům dodavatele RD Rýmařov - Family 135 zaujme moderním designem, který je ideální také pro užší pozemky. Tento kompaktní dům nabízí promyšlenou otevřenou dispozici s velkými prosklenými plochami, které se rozprostírají přes obě podlaží, tím přinášejí dostatek světla do obývací, jídelní i kuchyňské části. Velké prosklené dveře vedou přímo na prostornou terasu, což je ideální místo pro relaxaci a společenská setkání. V poschodí se nachází ložnice s krásným výhledem a další dvě prostorné místnosti, které poskytují klid a naprosté soukromí. Tento dům dokonale spojuje moderní estetiku s praktickými potřebami rodiny, což z něj činí skvělou volbu pro pohodlné rodinné bydlení. Provedení domu - dispozice je 5 + kk. Rozměry domu 10,54 x 8,21 m.
Tepelné čerpadlo je v ceně domu. Čerpadlo vzduch - vzduch v zimě dům vyhřeje, v létě zase ochladí. Fotovoltaická elektrárna je v ceně domu. Systém ON GRID s akumulací do zásobníku TUV: využívá sluneční energii pro ohřev užitkové vody v 200 litrovém zásobníku. Základová deska je v ceně domu.
Veverské Knínice jsou obec v okrese Brno-venkov v Jihomoravském kraji. Leží na rozhraní Boskovické brázdy a Křižanovské vrchoviny. Krásná příroda v okolí obce poskytuje velké možnosti pro volnočasovou aktivitu v blízkosti Brněnské přehrady a hradu Veveří. V současné době je v obci 332 domů a žije tu přibližně 954 obyvatel. Obec je vzdálená cca 10 km od města Rosice a cca 20 Km západně od města Brno. Sjezd z dálnice D1 je v blízkosti 3 km u obce Ostrovačice. Uveřejněné fotografie RD k výstavbě jsou pouze ilustrativní. Nabídku doporučujeme a se zajištěním financování pomůžeme.

Parametry domu

Cena
9 992 960 Kč Spočítat hypotéku
Aktualizováno
27. 10. 2025
Adresa
Veverské Knínice, okres Brno-venkov
ID
N00013
Stavba
Dřevěná
Stav objektu
Projekt
Druh objektu
Samostatný
Vlastnictví
Osobní
Užitná plocha
135 m2
Zastavěná plocha
86 m2
Plocha pozemku
800 m2
Třída energetické náročnosti
A - Mimořádně úsporná

Kontaktovat makléře

Máte zájem o tento dům?

Tímto, v souladu s nařízením Evropského parlamentu a Rady (EU) 2016/679, v platném znění, prohlašuji, že mi je alespoň 16 let a uděluji tak svůj souhlas se zpracováním zadaných údajů (jméno, telefon, e-mail, ip adresa) společnosti B3 Technology, s.r.o., IČ: 07330600, se sídlem Novostavby 126/23, 435 11 Lom (správce dat), za účelem předání dotazu z tohoto formuláře Vámi vybranému inzerentovi a zpětného kontaktování mé osoby. Osobní údaje bude správce zpracovávat manuálně i automaticky přímo prostřednictvím svých zaměstnanců. Informace předané tímto formulářem budou uloženy v databázi správce maximálně po dobu 10 let. Odvolání souhlasu s uložením a zpracováním poskytnutých dat lze e-mailem na info@realitypro.eu. V případě podezření na neoprávněné použití Vámi poskytnutých údajů máte právo předat podnět k šetření Úřadu pro ochranu osobních údajů. Více informací
Chystáte se prodat nemovitost?
Pomůžeme Vám!

Inzerát si prohlédlo 1 lidí

Prodejce

Ing. Hana Vaculíková

Ing. Hana Vaculíková

Hlídací pes

Chcete dostávat emailem podobné nabídky prodeje rodinných domů v Veverských Knínicích?

Podobné nemovitosti