Žernov
Nabízíme k prodeji jedinečný soubor nemovitostí v obci Žernov, který spojuje kouzlo venkovského života s praktickými možnostmi pro moderní bydlení, podnikání nebo rekreační využití.
Součástí komplexu je:
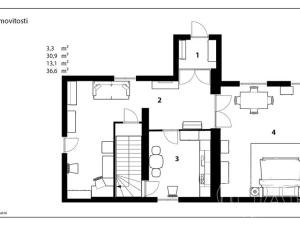
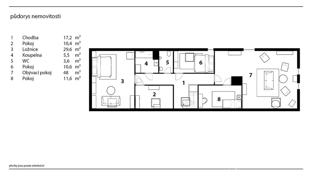
- Rodinný dům 6+1 o užitné ploše 220 m2
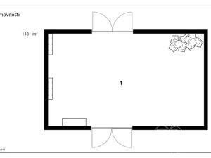
- Prostorná stodola
- Další hospodářská stavení
- Pozemek o celkové výměře 1.828 m2
Dům je po rekonstrukci k okamžitému užívání.
Možnosti ostatních staveb a pozemku dávají prostor k chovu domácích zvířat i k možnostem podnikání.
Lokalita je oceňována jako atraktivní, s dobrou dostupností do Náchoda 7 km (kde je momentálně dálnice ve výstavbě), České Skalice a přehradě Rozkoš a Červeného Kostelce.
Obec se nachází v krásné přírodní krajině na vyvýšenině nad řekou Úpa a Babiččiným údolím Ratibořice. Skvělá volba zdravého životního stylu.
Pro více informací volejte makléře.
Na prohlídkách se na vás budeme těšit.
Máte zájem o tento dům?
Inzerát si prohlédlo 0 lidí
 
                                Jana Štěpánová
Chcete dostávat emailem podobné nabídky prodeje rodinných domů v Žernově (okr. Náchod)?