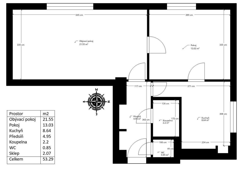
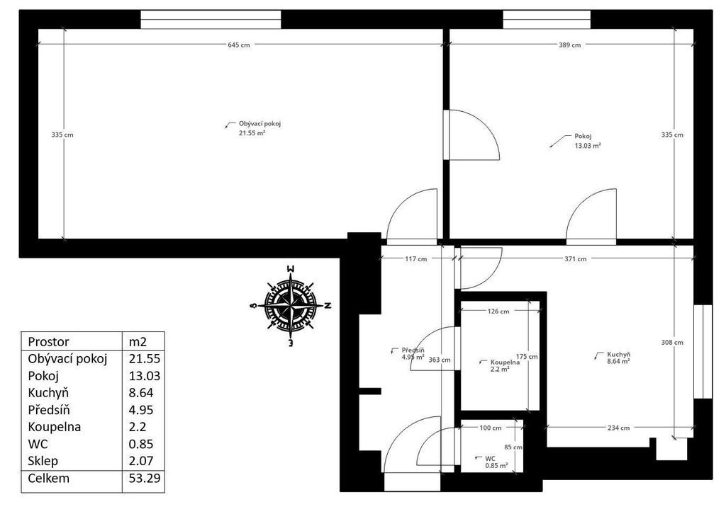
Prodej bytu 2+1, Pardubice - Zelené Předměstí, K Blahobytu, 53 m2

K Blahobytu, Zelené Předměstí

4 350 000 Kč /za nemovitost HYPOTÉKA od 19 442 Kč /za měsíc

(cena včetně služeb RK)

Prověřené firmy v Pardubicích

Informace k bytu

Dobrý den, právě pro Vás připravujeme k prodeji byt o dispozici 2+1 a celkové výměře 53,17 m2, který se nachází v 4.NP zděného bytového domu s výtahem v ulici K Blahobytu v Pardubicích na sídlišti zvaném Višňovka. Plnohodnotná nabídka bude zveřejněna začátkem listopadu, další informace v RK.

Děkuji, Václav Růžička, realitní specialista.

Prodávající si vyhrazuje právo na výběr kupujícího dle vlastní úvahy (způsob úhrady kupní ceny, serióznost jednání apod.).

Parametry bytu

Cena
4 350 000 Kč /za nemovitost Spočítat hypotéku
Poznámka k ceně
cena včetně služeb RK
Aktualizováno
23. 10. 2025
Adresa
K Blahobytu, Zelené Předměstí
ID
XA-465
Stavba
Cihlová
Stav objektu
Dobrý
Patro
4. z 5
Typ objektu
Patrový
Vlastnictví
Osobní
Užitná plocha
53 m2
Podlahová plocha
53 m2
Třída energetické náročnosti
D - Méně úsporná
Plyn
Plynovod
Odpad
Veřejná kanalizace
Topení
Ústřední dálkové
Komunikace
Asfaltová
Telekomunikace
Internet
Doprava
MHD
Voda
Vodovod
Topné těleso
Radiátory
Zdroj topení
Ústřední dálkové
Sklep
Výtah
Bezbarierový přístup

Kontaktovat makléře

Realitní kancelář

RV Reality

Bratranců Veverkových 355, Pardubice

Chystáte se prodat nemovitost?
Pomůžeme Vám!

Máte zájem o tento byt?

Tímto, v souladu s nařízením Evropského parlamentu a Rady (EU) 2016/679, v platném znění, prohlašuji, že mi je alespoň 16 let a uděluji tak svůj souhlas se zpracováním zadaných údajů (jméno, telefon, e-mail, ip adresa) společnosti B3 Technology, s.r.o., IČ: 07330600, se sídlem Novostavby 126/23, 435 11 Lom (správce dat), za účelem předání dotazu z tohoto formuláře Vámi vybranému inzerentovi a zpětného kontaktování mé osoby. Osobní údaje bude správce zpracovávat manuálně i automaticky přímo prostřednictvím svých zaměstnanců. Informace předané tímto formulářem budou uloženy v databázi správce maximálně po dobu 10 let. Odvolání souhlasu s uložením a zpracováním poskytnutých dat lze e-mailem na info@realitypro.eu. V případě podezření na neoprávněné použití Vámi poskytnutých údajů máte právo předat podnět k šetření Úřadu pro ochranu osobních údajů. Více informací
Chystáte se prodat nemovitost?
Pomůžeme Vám!

Inzerát si prohlédlo 1 lidí

Prodejce

Václav Růžička

Václav Růžička

Hlídací pes

Chcete dostávat emailem podobné nabídky prodeje bytů 2+1 v Pardubicích?

Podobné nemovitosti