Čelakovské-Rajské, Rožmitál pod Třemšínem
Hledáte stabilní investici do nemovitostí? Chcete koupit výnosový objekt s okamžitým příjmem? Pak vás tato nabídka zaujme.
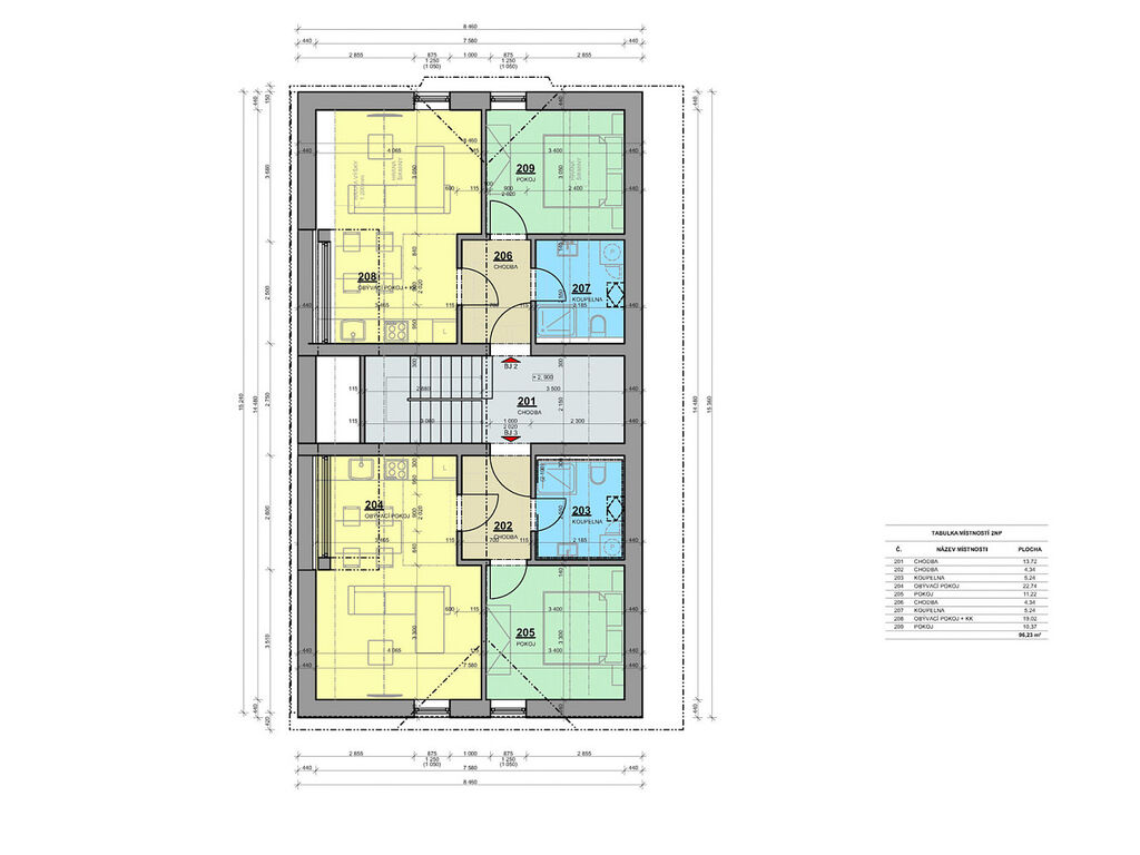
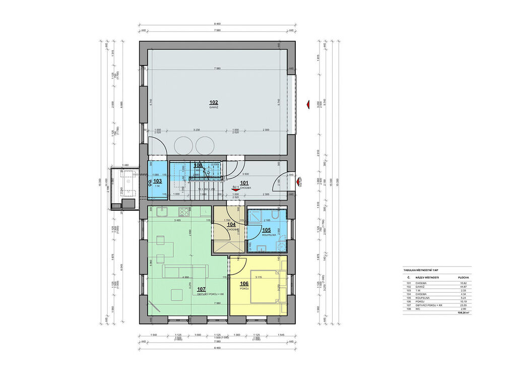
Exkluzivně nabízíme prodej novostavby z roku 2024 se třemi samostatnými bytovými jednotkami o dispozici 2+kk, které jsou aktuálně všechny pronajaty slušným nájemníkům. Součástí objektu je také prostorná garáž (cca 45 m²) a kompletní technické zázemí.
Hlavní přednosti nemovitosti:
3 samostatné byty 2+kk – každý s plně oddělenými měřiči
Roční výnos z nájmů cca 4 %
Kvalitní novostavba (kolaudace 2024) v památkově chráněné zóně
Energeticky úsporné řešení – tepelné čerpadlo DAIKIN, podlahové topení v celém domě včetně garáže
Podkrovní byty s vyvýšeným spacím patrem, které výrazně zvyšuje užitnou plochu
Připojení na optický internet, elektrickou síť, veřejný vodovod i kanalizaci
Nízké provozní náklady a precizně provedené technické řešení (rozvody z technické místnosti, samostatné odečty)
Konstrukce a materiály:
Zděná stavba z cihel HELUZ 440
Prefabrikované stropy GOLDBECK
Dřevěná okna s trojsklem, střešní okna ROTO
Lokalita nabízí příjemné bydlení v klidné části Rožmitálu pod Třemšínem, zároveň však v docházkové vzdálenosti do centra města.
Ideální volba pro investora:
Vše připraveno k okamžitému převzetí. Nemovitost již generuje pravidelný měsíční příjem a nevyžaduje žádné další investice. Vhodné jak pro zkušené investory, tak pro ty, kteří chtějí začít budovat své realitní portfolio.
Možnost zajištění výhodného financování.
Máte zájem o tento dům?
Inzerát si prohlédlo 1 lidí
 
                                Ing. Petr Fára
Chcete dostávat emailem podobné nabídky prodeje rodinných domů v Rožmitále pod Třemšínem?