Prodej rodinného domu, Písek - Hradiště, Cihlářská, 173 m2 (ID: 2702051)

Cihlářská, Písek, Hradiště

17 490 000 Kč /za nemovitost HYPOTÉKA od 78 170 Kč /za měsíc
Prověřené firmy v Písku

Výkup a prodej starého nábytku

Informace k domu

V zastoupení majitele nabízíme jedinečný dům, který spojuje nejmodernější technologie s ekologickým přístupem a maximálním uživatelským komfortem v žádané lokalitě Písek – Hradiště.

Tento dům je součástí projektu výstavby řadových rodinných domů, které budou vznikat postupně v moderním rezidenčním souboru.

Jedná se o ideální volbu pro rodiny hledající kvalitní, bezpečné a udržitelné bydlení s důrazem na moderní technologie, komfort a nízké provozní náklady.

Dům je plně vybaven inteligentními systémy řízení – topení, chlazení, větrání, zabezpečení, osvětlení i výroby elektřiny. Vše spolu komunikuje a funguje automaticky tak, aby se co nejlépe přizpůsobilo aktuálním podmínkám i vašim potřebám.

Pomocí aplikace můžete celý dům ovládat odkudkoli na světě – jednoduše, pohodlně a přehledně.

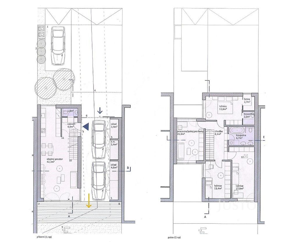
Dispozice domu 5+kk + zahrada + dvougaráž + dvě parkovací stání:
V přízemí najdete velkorysý obývací pokoj s kuchyňským koutem o výměře 42,3 m², odkud je přímý vstup na prostornou terasu a zahradu (254 m²). Součástí přízemí je také samostatná toaleta a vstup do dvojgaráže o výměře 36,1 m², ve které se nachází technické zázemí domu.

V patře jsou situovány čtyři ložnice, z nichž jedna z ložnice má svou vlastní koupelnu. Pro ostatní pokoje je k dispozici společná koupelna s vanou, sprchovým koutem a toaletou.

Půdorys uvedený ve fotogalerii slouží pro orientaci a může se v drobných detailech lišit od současné dispozici domu.

Dům zaujme nejen svým dispozičním řešením, ale také nadstandardním interiérem. Veškerý vestavný nábytek byl navržen a vyroben na míru s důrazem na kvalitu, moderní design a maximální využití prostoru. Tyto pečlivě zvolené prvky dodávají interiéru nadčasový vzhled a zajišťují praktické a pohodlné bydlení. Součástí kupní ceny je i tento vestavný nábytek, díky čemuž je dům připraven k okamžitému a komfortnímu užívání.

Celková podlahová plocha: 173,3 m²

Zastavěná plocha + zahrada = celková plocha pozemku: 465 m²

Energetická náročnost budovy: B (velmi úsporná)

Hlavní výhody domu:
- Nízká energetická náročnost díky tepelnému čerpadlu země–voda (vytápění i chlazení)

- Inteligentní podlahové topení a chlazení s ekvitermní regulací podle počasí (dům má vlastní meteostanici)

- Rekuperační systém pro zdravé vnitřní klima s kontrolou CO₂ a vlhkosti

- Solární panely a bateriové úložiště pro vlastní výrobu elektřiny, včetně možnosti prodeje přebytků do sítě

- Komplexní zabezpečení s čidly, kamerami, vzdáleným přístupem a možností propojení s bezpečnostní službou

- Chytré osvětlení a žaluzie, které se přizpůsobují denní době, slunci i vašim scénářům (např. režim TV, příchod domů)

- Moderní aplikace pro ovládání domu z mobilu, tabletu či PC, s možností nastavit různá oprávnění pro členy domácnosti i externí osoby (např. doručovatel, zahradník)

- Optické internetové připojení - stabilní rychlý internet

- Interiér domu je vybaven kvalitním nábytkem a prvky zhotovenými na míru, které podtrhují moderní vzhled a zajišťují maximální funkčnost

- prostorná dvougaráž o výměře 36,1 m² a dvě vyhrazená parkovací stání u domu, což zajišťuje pohodlné a bezpečné parkování

- Oplocená zahrada s terasou orientovanou na jih, která zajišťuje dostatek slunce po celý den a příjemné místo pro odpočinek, grilování či rodinná posezení

Tento dům je ideální volbou pro ty, kteří hledají úsporné, udržitelné a přitom vysoce komfortní bydlení v klidné rezidenční zóně.

Pokud přemýšlíte, jak zlepšit své každodenní fungování a zároveň snížit ekologickou stopu, chytrý dům je ta správná cesta.

Pro zájemce o tento jedinečný dům máme připravené prezentační video s průvodcem, který vás provede celým domem a detailně vysvětlí použité technologie i funkční řešení. Video vám rádi zašleme na vyžádání.

Tento dům je aktuálně nabízen za zvýhodněnou kupní cenu, která zohledňuje plánované předání nemovitosti ve 4. čtvrtletí roku 2026. Díky této časové rezervě máte možnost pořídit si nemovitost za mimořádně atraktivních podmínek, které platí pouze omezenou dobu.

V případě zájmu o podrobnosti nebo schůzku nás prosím kontaktujte, rádi vám poskytneme veškeré informace a podklady.

Parametry domu

Cena
17 490 000 Kč /za nemovitost Spočítat hypotéku
Aktualizováno
6. 11. 2025
Adresa
Cihlářská, Písek, Hradiště
ID
J11046
Stavba
Cihlová
Stav objektu
Novostavba
Vybaveno
Ano
Typ objektu
Patrový
Druh objektu
Řadový
Lokalita objektu
Okraj obce
Vlastnictví
Osobní
Užitná plocha
173 m2
Zastavěná plocha
126 m2
Podlahová plocha
173 m2
Plocha pozemku
465 m2
Plocha zahrady
254 m2
Třída energetické náročnosti
B - Velmi úsporná
Ukazatel energetické náročnosti
128 kWh/m2 za rok
Odpad
Veřejná kanalizace
Topení
Podlahové
Voda
Vodovod
Zdroj teplé vody
Tepelné čerpadlo
Garáž
Terasa
Bezbarierový přístup
Parkování
Nízkoenergetický

Kontaktovat makléře

Máte zájem o tento dům?

Tímto, v souladu s nařízením Evropského parlamentu a Rady (EU) 2016/679, v platném znění, prohlašuji, že mi je alespoň 16 let a uděluji tak svůj souhlas se zpracováním zadaných údajů (jméno, telefon, e-mail, ip adresa) společnosti B3 Technology, s.r.o., IČ: 07330600, se sídlem Novostavby 126/23, 435 11 Lom (správce dat), za účelem předání dotazu z tohoto formuláře Vámi vybranému inzerentovi a zpětného kontaktování mé osoby. Osobní údaje bude správce zpracovávat manuálně i automaticky přímo prostřednictvím svých zaměstnanců. Informace předané tímto formulářem budou uloženy v databázi správce maximálně po dobu 10 let. Odvolání souhlasu s uložením a zpracováním poskytnutých dat lze e-mailem na info@realitypro.eu. V případě podezření na neoprávněné použití Vámi poskytnutých údajů máte právo předat podnět k šetření Úřadu pro ochranu osobních údajů. Více informací
Chystáte se prodat nemovitost?
Pomůžeme Vám!

Inzerát si prohlédlo 32 lidí

Prodejce

Kateřina Dlabačová

Kateřina Dlabačová

Hlídací pes

Chcete dostávat emailem podobné nabídky prodeje rodinných domů v Písku?

Podobné nemovitosti