Remax Monarcha

Pronájem skladu, Šternberk, Nádražní, 230 m2 (ID: 2700951)

Nádražní, Šternberk

Cena na vyžádání /za měsíc Získejte výhodnou HYPOTÉKU
Prověřené firmy v Šternberku

Informace k nemovitosti

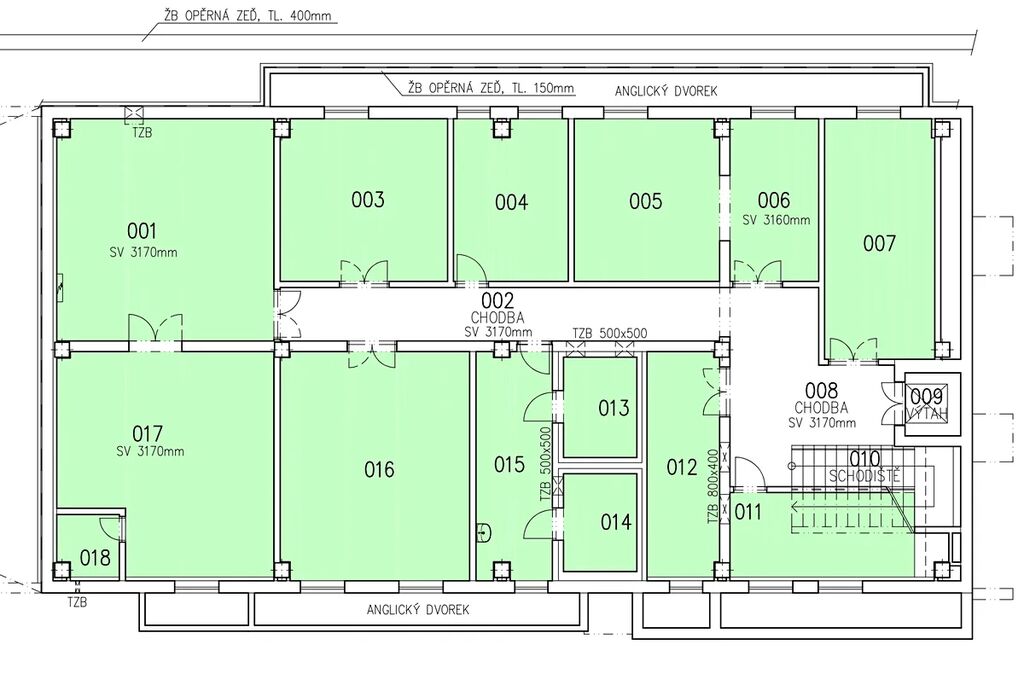
Nabízíme k pronájmu sklepní sklady. Jedná se o prostory s 13 místnostmi a spojovací chodbou. Přístup je po schodišti. K dispozici je elektřina se samostatným měřením a voda.

Volné ihned.

Parametry nemovitosti

Cena
Cena na vyžádání
Aktualizováno
3. 5. 2026
Adresa
Nádražní, Šternberk
Stavba
Cihlová
Stav objektu
Dobrý
Užitná plocha
230 m2
Parkování

Kontaktovat makléře

Máte zájem o tuto nemovistost?

Tímto, v souladu s nařízením Evropského parlamentu a Rady (EU) 2016/679, v platném znění, prohlašuji, že mi je alespoň 16 let a uděluji tak svůj souhlas se zpracováním zadaných údajů (jméno, telefon, e-mail, ip adresa) společnosti B3 Technology, s.r.o., IČ: 07330600, se sídlem Novostavby 126/23, 435 11 Lom (správce dat), za účelem předání dotazu z tohoto formuláře Vámi vybranému inzerentovi a zpětného kontaktování mé osoby. Osobní údaje bude správce zpracovávat manuálně i automaticky přímo prostřednictvím svých zaměstnanců. Informace předané tímto formulářem budou uloženy v databázi správce maximálně po dobu 10 let. Odvolání souhlasu s uložením a zpracováním poskytnutých dat lze e-mailem na info@realitypro.eu. V případě podezření na neoprávněné použití Vámi poskytnutých údajů máte právo předat podnět k šetření Úřadu pro ochranu osobních údajů. Více informací
Chystáte se prodat nemovitost?
Pomůžeme Vám!

Inzerát si prohlédlo 11 lidí

Prodejce

Petr Štolba

Petr Štolba

Hlídací pes

Chcete dostávat emailem podobné nabídky pronájmu skladů v Šternberku?

Podobné nemovitosti