Prodej pozemku pro bydlení, Borek, 1263 m2

Borek

Cena na vyžádání /za nemovitost Získejte výhodnou HYPOTÉKU
Prověřené firmy v Borku

Informace k pozemku

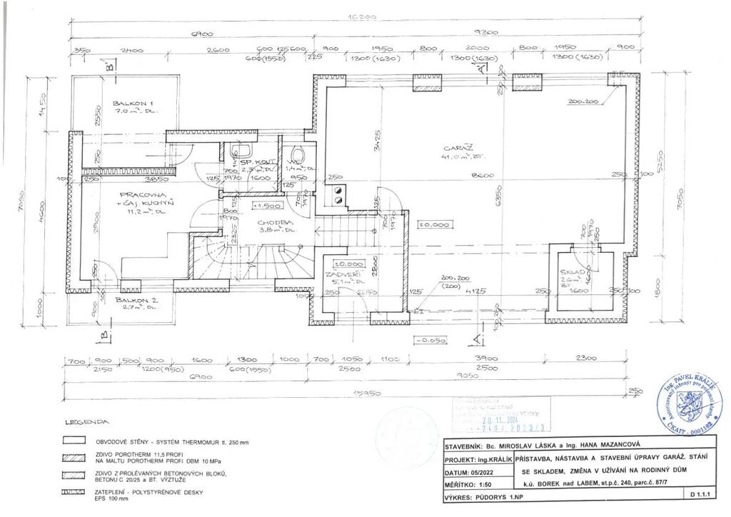
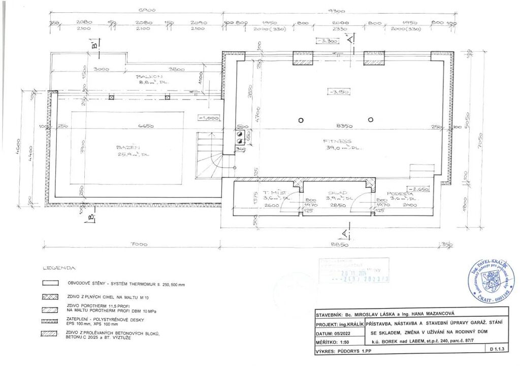
Jedná se o prodej pozemku s rozestavěnou stavbou RD vč. platného stavebního povolení, který se nachází ve velice atraktivní a klidné lokalitě na samém okraji obce Borek, okr. Praha východ. Projekt je velkoryse pojat, nabídne krytý bazén s proti proudem, posilovnu, relaxační místnost, dvou garáž s možností hydraulického zvedáku a konečně dvě bytové jednotky. Pozemek s celkovou plochou 1267 m2 nabízí naprosté soukromí. Tato nabídka jistě zaujme ty z vás, kteří hledají klidné bydlení v přírodě a zároveň chtějí čerpat výhody velkoměsta (metro Černý Most 15 min). V blízkosti velmi populární jezero Lhota, Proboštská jezera, nebo Ovčáry. Obec se velmi dynamicky rozvíjí, provozuje pískovnu, letiště pro ultra light létání a golfové hřiště. Bližší info na tel.

Parametry pozemku

Cena
Cena na vyžádání Spočítat hypotéku
Aktualizováno
21. 10. 2025
Adresa
Borek
ID
9
Plocha pozemku
1263 m2
Elektřina
230V, 400V
Odpad
Veřejná kanalizace
Komunikace
Asfaltová
Doprava
Dálnice, Silnice, MHD, Autobus
Voda
Studna

Kontaktovat makléře

Realitní kancelář

Jiří Navrátil

V Cibulkách 358/54, Praha 5

Chystáte se prodat nemovitost?
Pomůžeme Vám!

Máte zájem o tento pozemek?

Tímto, v souladu s nařízením Evropského parlamentu a Rady (EU) 2016/679, v platném znění, prohlašuji, že mi je alespoň 16 let a uděluji tak svůj souhlas se zpracováním zadaných údajů (jméno, telefon, e-mail, ip adresa) společnosti B3 Technology, s.r.o., IČ: 07330600, se sídlem Novostavby 126/23, 435 11 Lom (správce dat), za účelem předání dotazu z tohoto formuláře Vámi vybranému inzerentovi a zpětného kontaktování mé osoby. Osobní údaje bude správce zpracovávat manuálně i automaticky přímo prostřednictvím svých zaměstnanců. Informace předané tímto formulářem budou uloženy v databázi správce maximálně po dobu 10 let. Odvolání souhlasu s uložením a zpracováním poskytnutých dat lze e-mailem na info@realitypro.eu. V případě podezření na neoprávněné použití Vámi poskytnutých údajů máte právo předat podnět k šetření Úřadu pro ochranu osobních údajů. Více informací
Chystáte se prodat nemovitost?
Pomůžeme Vám!

Inzerát si prohlédlo 2 lidí

Prodejce

Jiří  Navrátil

Jiří Navrátil

Hlídací pes

Chcete dostávat emailem podobné nabídky prodeje pozemků pro bydlení v Borku (okr. Praha-východ)?

Podobné nemovitosti