Pronájem bytu 1+kk, Stříbro, Plzeňská, 29 m2

Plzeňská, Stříbro

Rezervováno
8 000 Kč /za měsíc Získejte výhodnou HYPOTÉKU

(bez poplatků, + provize RK, včetně právního servisu)

Prověřené firmy v Stříbře

Podlahy

Stěhovací služby

Informace k bytu

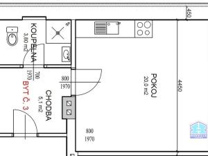
Nabízíme Vám k pronájmu byt o dispozici 1+KK a výměře 28,9 m2, který se nachází v 1. patře nově zrekonstruovaného domu ve Stříbře, v Plzeňské ulici. Byt disponuje koupelnou se sprchovým koutem, umyvadlem a WC. Kuchyňská linka má vestavnou sklokeramickou varnou desku, el. troubu, myčku a digestoř. Podlahy jsou pokryté linem, na chodě a na soc. zařízení je keramická dlažba. Okna jsou plastová a orientovaná na jihovýchod s krásným výhledem. Ohřev vody je pomocí el. boileru, vytápění zajišťují keramické elektrické přímotopy. Pouze pro bonitní a slušné nájemníky, nekuřáky, bez domácích mazlíčků. Čistý nájem 8.000,- Kč/měs. + voda dle spotřeby 1x za půl roku + elektřina bude přepsána na nájemce + vratná kauce 24.000,- Kč.

Parametry bytu

Stav
Rezervováno
Cena
8 000 Kč /za měsíc
Poznámka k ceně
bez poplatků, + provize RK, včetně právního servisu
Aktualizováno
23. 10. 2025
Adresa
Plzeňská, Stříbro
ID
12/25
Stavba
Cihlová
Stav objektu
Po rekonstrukci
Patro
2. z 3
Vybaveno
Ne
Druh objektu
Samostatný
Lokalita objektu
Centrum obce
Vlastnictví
Osobní
Užitná plocha
29 m2
Třída energetické náročnosti
G - Mimořádně nehospodárná
Elektřina
230V
Odpad
Veřejná kanalizace
Komunikace
Asfaltová
Doprava
Vlak, Dálnice, Silnice, MHD, Autobus
Voda
Vodovod
Výtah

Kontaktovat makléře

Máte zájem o tento byt?

Tímto, v souladu s nařízením Evropského parlamentu a Rady (EU) 2016/679, v platném znění, prohlašuji, že mi je alespoň 16 let a uděluji tak svůj souhlas se zpracováním zadaných údajů (jméno, telefon, e-mail, ip adresa) společnosti B3 Technology, s.r.o., IČ: 07330600, se sídlem Novostavby 126/23, 435 11 Lom (správce dat), za účelem předání dotazu z tohoto formuláře Vámi vybranému inzerentovi a zpětného kontaktování mé osoby. Osobní údaje bude správce zpracovávat manuálně i automaticky přímo prostřednictvím svých zaměstnanců. Informace předané tímto formulářem budou uloženy v databázi správce maximálně po dobu 10 let. Odvolání souhlasu s uložením a zpracováním poskytnutých dat lze e-mailem na info@realitypro.eu. V případě podezření na neoprávněné použití Vámi poskytnutých údajů máte právo předat podnět k šetření Úřadu pro ochranu osobních údajů. Více informací
Chystáte se prodat nemovitost?
Pomůžeme Vám!

Inzerát si prohlédlo 7 lidí

Prodejce

Vlastimil Harvilla st.

Vlastimil Harvilla st.

Hlídací pes

Chcete dostávat emailem podobné nabídky pronájmu bytů 1+kk v Stříbře?

Podobné nemovitosti