Prodej bytu 3+1, Praha - Horní Počernice, Libáňská, 89 m2

Libáňská, Praha, Horní Počernice

8 990 000 Kč /za nemovitost HYPOTÉKA od 40 180 Kč /za měsíc

(+ 2x parkovací místo)

Prověřené firmy v Praze 9

Stěhovací služby

Výkup a prodej starého nábytku

Informace k bytu

Jaké to asi je, když bydlíte jako na vesnici, ale přitom máte veškerý komfort hlavního města doslova za rohem? To zjistíte na prohlídce tohoto báječného bytu 3+1 (76,43m2), který se nachází v klidné slepé ulici v Horních Počernicích.

Krásně prosvětlený byt ve druhém patře bez výtahu kompletně zrevitalizovaného, komorního panelového domu s pouhými několika jednotkami vás nadchne detaily, jako je zvětšená a celoplošně zasklená lodžie (8,25m2), kde se dá skutečně trávit čas, nebo třeba praktická technická místnost na sušičku. Obývací pokoj i plně vybavená kuchyně nabízejí ničím nerušený výhled do zeleně, zatímco obě ložnice mají okna směrem na lodžii s výhledem do malého hájku.

Součástí bytu je sklep o ploše více než 4 m², ale také množství společných prostor, které dělají bydlení ještě komfortnějším – společenská místnost / klubovna (využívaná i pro schůze SVJ) se stolním tenisem a šipkami, kočárkárna, dvě kolárny, místnost pro uskladnění např. pneumatik, dílna, prádelna i sušárna.

A co parkování, které je v Praze častá bolest? Tady vše funguje bez stresu: ke každému bytu náleží jedno až dvě vyhrazená parkovací stání na vlastním pozemku. K tomuto bytu patří dvě stání přímo před vchodem, každé oceněné na 190 000,-Kč, která jsou nedílnou součástí prodeje bytu.

Rodiče ocení skvělou občanskou vybavenost – v docházkové vzdálenosti do 200 metrů se nacházejí dvě mateřské školy, tři základní školy a gymnázium, vyhledávaná prestižní střední škola pro administrativu EU je jen 500m daleko. Pro ty, kdo neřídí, je autobusová zastávka vzdálená 5 minut chůze; za dalších 10 minut jste na metru Černý Most, případně během minuty dojedete na vlakové nádraží, odkud jste na Hlavním nádraží za 16 minut. A kam s dětmi po školce nebo škole? Jen minutu od domu je nově upravený park Houslový klíč a pomyslným rohem úplně nová multifunkční sportovní hala.

Zkrátka ideální kombinace promyšleného bytu v příjemné lokalitě se vším, co potřebujete, doslova na dosah ruky.

Měsíční provozní náklady vč. fondu oprav 5.990,-Kč + elektřina.
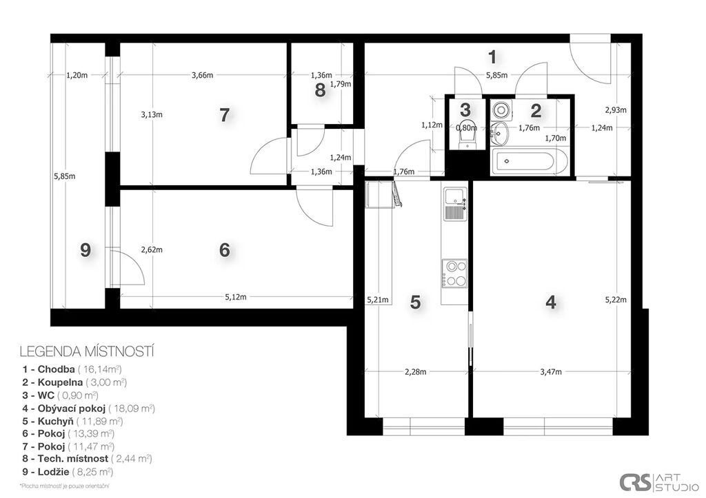
Výměry podle prohlášení vlastníka:
obývací pokoj - 18,24m2
pokoj - 13,41m2
pokoj - 12,04m2
kuchyně - 10,94m2
chodba - 15,83m2
koupelna - 3,02m2
WC - 1,1m2
technická místnost/komora v bytě - 2,30m2
lodžie - 8,25m2
sklep 4,14m2
celkem: 89,27m2

Parametry bytu

Cena
8 990 000 Kč /za nemovitost Spočítat hypotéku
Poznámka k ceně
+ 2x parkovací místo
Aktualizováno
14. 10. 2025
Adresa
Libáňská, Praha, Horní Počernice
ID
LIBANSKA
Stavba
Panelová
Stav objektu
Velmi dobrý
Patro
3. z 4
Vybaveno
Částečně
Lokalita objektu
Klidná část obce
Vlastnictví
Osobní
Užitná plocha
89 m2
Třída energetické náročnosti
G - Mimořádně nehospodárná
Odpad
Veřejná kanalizace
Sklep
Lodžie
Parkování

Kontaktovat makléře

Máte zájem o tento byt?

Tímto, v souladu s nařízením Evropského parlamentu a Rady (EU) 2016/679, v platném znění, prohlašuji, že mi je alespoň 16 let a uděluji tak svůj souhlas se zpracováním zadaných údajů (jméno, telefon, e-mail, ip adresa) společnosti B3 Technology, s.r.o., IČ: 07330600, se sídlem Novostavby 126/23, 435 11 Lom (správce dat), za účelem předání dotazu z tohoto formuláře Vámi vybranému inzerentovi a zpětného kontaktování mé osoby. Osobní údaje bude správce zpracovávat manuálně i automaticky přímo prostřednictvím svých zaměstnanců. Informace předané tímto formulářem budou uloženy v databázi správce maximálně po dobu 10 let. Odvolání souhlasu s uložením a zpracováním poskytnutých dat lze e-mailem na info@realitypro.eu. V případě podezření na neoprávněné použití Vámi poskytnutých údajů máte právo předat podnět k šetření Úřadu pro ochranu osobních údajů. Více informací
Chystáte se prodat nemovitost?
Pomůžeme Vám!

Inzerát si prohlédlo 3 lidí

Prodejce

Filip Veselý MRE

Filip Veselý MRE

Hlídací pes

Chcete dostávat emailem podobné nabídky prodeje bytů 3+1 v Praze 9?

Podobné nemovitosti