Prodej rodinného domu, Strachotín, Šakvická, 270 m2

Šakvická, Strachotín

7 490 000 Kč /za nemovitost HYPOTÉKA od 33 476 Kč /za měsíc

(včetně všech poplatků)

Prověřené firmy v Strachotíně

Informace k domu

Prodej prostorného rodinného domu po částečné rekonstrukci vnitřních prostor – Strachotín
Nabízíme k prodeji patrový rodinný dům v klidné části obce Strachotín, která se nachází nedaleko Brna a má výbornou dopravní dostupnost – dojezd do Brna je do 30 minut.
Dům prošel rekonstrukcí všech rozvodů (elektřina, voda, plyn), oken, dveří, omítek i podlah. Koupelny jsou rovněž po rekonstrukci.
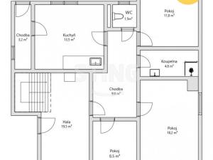
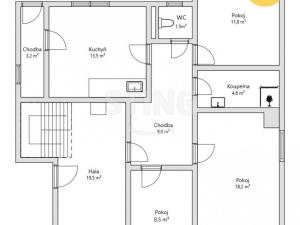
V 1. NP se nachází bytová jednotka o dispozici 3+1, ve 2. NP byt o velikosti 4+1.
Díky dispozičnímu řešení je možné dům rozdělit na dvě samostatné bytové jednotky, každou s vlastním vstupem – ideální řešení pro dvougenerační bydlení nebo investici.
K domu náleží zahrada o celkové výměře 615 m², která nabízí dostatek prostoru pro odpočinek i rodinné zázemí.
Dům je ve velmi dobrém stavu, stačí jej dovybavit a můžete se okamžitě nastěhovat.
V budoucnu je možné dům zateplit či vyměnit střechu s využitím dotace z programu „Oprav dům po babičce“.
Technické informace:
Typ budovy: cihlová, samostatně stojící
Počet podlaží: 2
Užitná plocha: 270 m²
Zastavěná plocha: 137 m²
Pozemek: 615 m²
Počet pokojů: 8
Stav: velmi dobrý, po rekonstrukci 2024
Střecha: pultová, krytina IPA
Topení a ohřev vody: plynový kondenzační kotel
Inženýrské sítě: elektřina (230/380 V), plyn, vodovod, kanalizace
Energetická náročnost: G (mimořádně nehospodárná)
občanská vybavenost:
V obci je škola, školka, pošta, zdravotnické zařízení a další služby. Dopravní dostupnost zajišťuje silnice a autobusové spojení. V případě více zájemců si majitel vyhrazuje právo prodat nejvýhodnější nabídce. Do konce prosince 2025 nabízíme prostřednictvím našeho partnera úrokové sazby od 4,29 % p.a. Více informací Vám sdělí náš specialista na prohlídce.

Parametry domu

Cena
7 490 000 Kč /za nemovitost Spočítat hypotéku
Poznámka k ceně
včetně všech poplatků
Aktualizováno
28. 11. 2025
Adresa
Šakvická, Strachotín
ID
132514
Stavba
Cihlová
Stav objektu
Velmi dobrý
Typ objektu
Patrový
Druh objektu
Samostatný
Lokalita objektu
Klidná část obce
Užitná plocha
270 m2
Zastavěná plocha
137 m2
Podlahová plocha
264 m2
Plocha pozemku
615 m2
Třída energetické náročnosti
G - Mimořádně nehospodárná
Elektřina
230V, 400V
Plyn
Plynovod
Odpad
Veřejná kanalizace
Topení
Ústřední plynové
Doprava
Silnice, Autobus
Parkování

Kontaktovat makléře

Máte zájem o tento dům?

Tímto, v souladu s nařízením Evropského parlamentu a Rady (EU) 2016/679, v platném znění, prohlašuji, že mi je alespoň 16 let a uděluji tak svůj souhlas se zpracováním zadaných údajů (jméno, telefon, e-mail, ip adresa) společnosti B3 Technology, s.r.o., IČ: 07330600, se sídlem Novostavby 126/23, 435 11 Lom (správce dat), za účelem předání dotazu z tohoto formuláře Vámi vybranému inzerentovi a zpětného kontaktování mé osoby. Osobní údaje bude správce zpracovávat manuálně i automaticky přímo prostřednictvím svých zaměstnanců. Informace předané tímto formulářem budou uloženy v databázi správce maximálně po dobu 10 let. Odvolání souhlasu s uložením a zpracováním poskytnutých dat lze e-mailem na info@realitypro.eu. V případě podezření na neoprávněné použití Vámi poskytnutých údajů máte právo předat podnět k šetření Úřadu pro ochranu osobních údajů. Více informací
Chystáte se prodat nemovitost?
Pomůžeme Vám!

Inzerát si prohlédlo 5 lidí

Prodejce

Ing. Jiřina Havránková

Ing. Jiřina Havránková

Hlídací pes

Chcete dostávat emailem podobné nabídky prodeje rodinných domů v Strachotíně?

Podobné nemovitosti