Prodej bytu 3+1, Nové Město na Moravě, Mírová, 182 m2 (ID: 2695490)

Mírová, Nové Město na Moravě

7 800 000 Kč /za nemovitost HYPOTÉKA od 34 861 Kč /za měsíc
Prověřené firmy v Novém Městu na Moravě

Informace k bytu

Prostorný podkrovní byt 3+1 s půdou a sklepem, ul. Mírová – Nové Město na Moravě

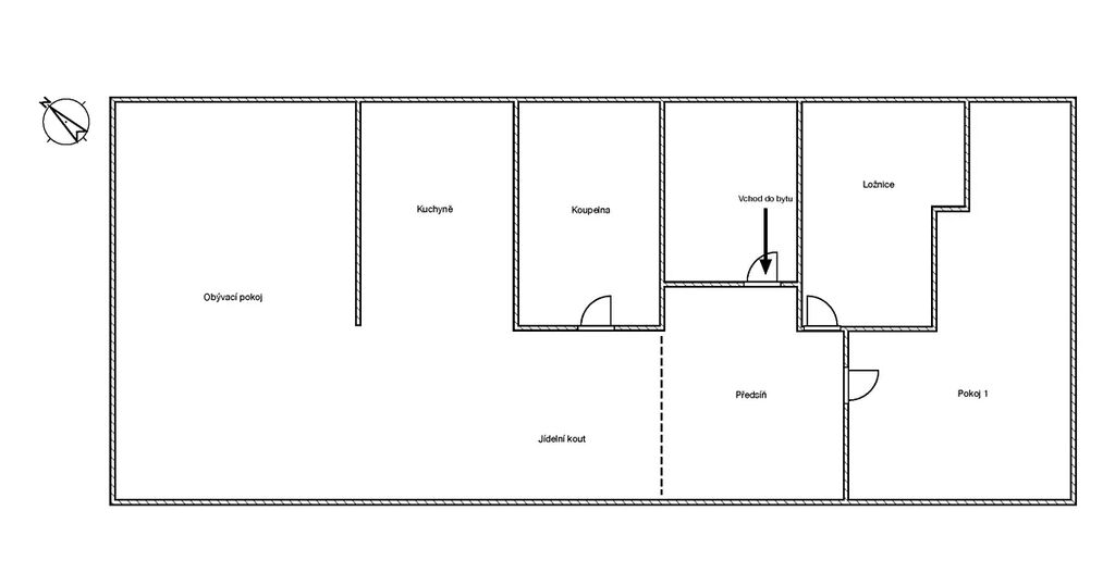
Nabízíme ke koupi nadstandardní podkrovní byt o dispozici 3+1 a celkové výměře 182,5 m², umístěný v nadstavbě bytového domu na ulici Mírová v Novém Městě na Moravě. Byt se nachází ve stávající nadstavbě a zaujme především svou rozlohou, praktičností i zajímavým dispozičním řešením.

Byt má samostatný vstup do patra, který zajišťuje klid a soukromí. Dominantou je prostorná předsíň, ze které vedou vstupy do jednotlivých místností – pokoje, ložnice, velké koupelny s WC a především do rozsáhlé obytné místnosti, která propojuje obývací pokoj, kuchyni a jídelnu. Celý prostor působí vzdušně a příjemně díky velkým rozměrům a světlosti.

Z předsíně je přístup i do vlastního půdního prostoru, který se rozkládá nad celým bytem a nabízí obrovský potenciál.
K bytu dále náleží velký sklep, ideální pro uložení věcí nebo sportovního vybavení.
Dům se nachází v klidné části města, v docházkové vzdálenosti od centra. Veškerá občanská vybavenost je k dispozici– v blízkosti jsou restaurace, obchodní centrum, školy, školky, lékaři i možnosti volnočasového vyžití.

Tato nabídka je ideální volbou pro ty, kteří hledají prostorné a komfortní bydlení s možností dalšího využití prostoru v žádané lokalitě.

Parametry bytu

Cena
7 800 000 Kč /za nemovitost Spočítat hypotéku
Aktualizováno
10. 10. 2025
Adresa
Mírová, Nové Město na Moravě
ID
25070901
Stavba
Cihlová
Stav objektu
Velmi dobrý
Patro
4.
Vlastnictví
Osobní
Užitná plocha
182 m2
Sklep

Kontaktovat makléře

Realitní kancelář

VIP reality

Červený kopec 824/24, Brno

Chystáte se prodat nemovitost?
Pomůžeme Vám!

Máte zájem o tento byt?

Tímto, v souladu s nařízením Evropského parlamentu a Rady (EU) 2016/679, v platném znění, prohlašuji, že mi je alespoň 16 let a uděluji tak svůj souhlas se zpracováním zadaných údajů (jméno, telefon, e-mail, ip adresa) společnosti B3 Technology, s.r.o., IČ: 07330600, se sídlem Novostavby 126/23, 435 11 Lom (správce dat), za účelem předání dotazu z tohoto formuláře Vámi vybranému inzerentovi a zpětného kontaktování mé osoby. Osobní údaje bude správce zpracovávat manuálně i automaticky přímo prostřednictvím svých zaměstnanců. Informace předané tímto formulářem budou uloženy v databázi správce maximálně po dobu 10 let. Odvolání souhlasu s uložením a zpracováním poskytnutých dat lze e-mailem na info@realitypro.eu. V případě podezření na neoprávněné použití Vámi poskytnutých údajů máte právo předat podnět k šetření Úřadu pro ochranu osobních údajů. Více informací
Chystáte se prodat nemovitost?
Pomůžeme Vám!

Inzerát si prohlédlo 2 lidí

Prodejce

Ilona Peňázová

Ilona Peňázová

Hlídací pes

Chcete dostávat emailem podobné nabídky prodeje bytů 3+1 v Novém Městu na Moravě?

Podobné nemovitosti