Prodej rodinného domu, Vranov nad Dyjí, 110 m2

Vranov nad Dyjí

8 540 000 Kč /za nemovitost HYPOTÉKA od 38 169 Kč /za měsíc

(- včetně právního servisu, provize realitní kanceláři i DPH)

Prověřené firmy v Vranově nad Dyjí

Informace k domu

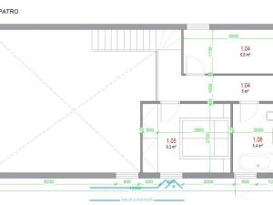
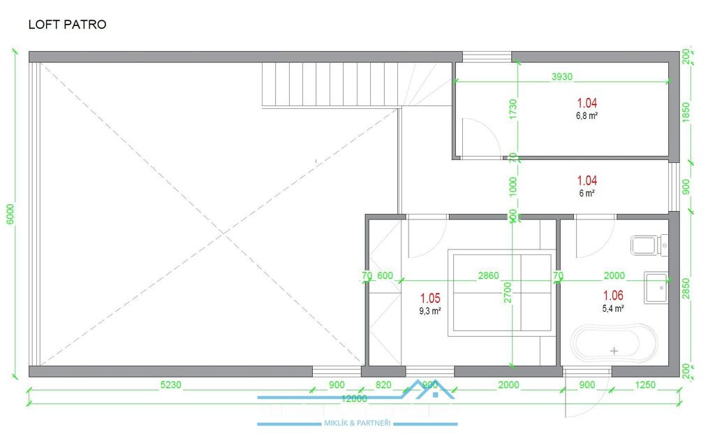
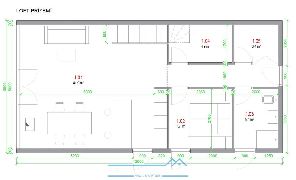
K prodeji nabízíme luxusní loftový dům, o zastavěné ploše 72m2, který je koncipovaný jako 3+kk a dvě koupelny, ale je možné jej také upravit na 4+kk s jednou koupelnou. Jednou z mnoha výhod domu je nadčasový design, nezávislost, cena, rychlé dodání, mobilita, a soulad s přírodou díky vzdušným základům a energetické nenáročnosti.

Nabízíme zde možnost koupě daného domu, který bude vystavěný na míru konkrétnímu klientovi na stavební parcele o výměře 1000m2, ve Vranově nad Dyjí, v blíkozsti Národního parku Podyjí, v úžasné oblasti mezi řekou a vzrostlými stromy.

Informace o domě:

Moderní dřevostavba pyšnící se zdravým a ekologickým bydlením Loft 70 spojuje minimalistický design, vysokou kvalitu a šetrnost k životnímu prostředí.
Tento dům je ideální volbou pro ty, kdo hledají zdravé a komfortní bydlení v harmonii s přírodou.

Použité materiály zdravé a přírodní řešení:
- Nosná konstrukce a pohledové stě ny: CLT panely Novatop o síle 88 mm masivní křížem lepené dřevo, zajišťující stabilitu a zdravé vnitřní klima.
- Izolace: dřevovlá knité desky Pavatex 120 mm v kříž ovém roš tu, tuhé fasádní dřevovlákno Pavatex 60 mm, zateplená a provětrávaná fasáda ze sibiřského modřínu s dlouhou životností.
- Okna a dveře: dřevěné rámy, profil 88 mm, se zasklením izolačním trojsklem.
- Podlahy: přírodní dřevěná podlaha Bjelin Dub.

Inženýrské sítě:
- Vodovodní a kanalizační rozvody
- Vestavěná elektrika a vestavěný rozvaděč
- Venkovní a vnitřní osvětlení

Vybavení domu:
- 2× kompletně vybavená koupelna
- Podlahové teplovodní topení s elektrokotlem
- Plně vybavená kuchyň
- Krb na dřevo
- Klimatizace
- Rekuperace (systém řízeného větrání s rekuperací tepla)

Nadstandardní vybavení (za příplatek):
- Tepelné čerpadlo
- Fotovoltaika
- Terasa

Důležité informace:
- Stavbu je nutné umístit na betonovou základovou desku.
- Dům je řešen jako nízkoenergetická dřevostavba s důrazem na zdravé bydlení a nízké provozní ná klady.

Informace o stavebním pozemku:

K prodeji nabízíme 3 stavební pozemky ve výjimečné lokalitě Vranova nad Dyjí, situovaných v klidné části ulice Benátek. Co se zde může postavit: Podmínky prostorového uspořádání a základních podmínek ochrany krajinného rázu:
- výška nepřesáhne výškovou hladinu stávající zástavby v navazujícím území (max. 2 NP + podkroví), u nových ploch není vymezeno
- koeficient zastavění stavebního pozemku bude max. 30%
- případná vyšší intenzita ve stabilizovaných plochách je respektována.

Další benefity:
- Lokalita Benátek, Vranov nad Dyjí klid, příroda, cyklostezky, turistika, řeka, dostupnost.
- Celková rozloha pozemku: 1000 m2 (možné koupit i více pozemků dohromady, viz. značení ve fotografii, finální rozdělení geomterickým plánem bude uděláno na základě podpisu rezervační smlouvy)
- Veškeré inženýrské sítě na pozemku, zajištěný příjezd po komunikaci až na pozemek

Cena pozemku činí 2.990.000,- Kč/m2 (včetně právního servisu, provize realitní kanceláři i DPH), tato cena je již zahrnuta v celkové prezentované ceně.

Bližší informace a termíny prohlídek u pana Ing. Miklíka, volat můžete kdykoliv, včetně víkendů a svátků.

Parametry domu

Cena
8 540 000 Kč /za nemovitost Spočítat hypotéku
Poznámka k ceně
- včetně právního servisu, provize realitní kanceláři i DPH
Aktualizováno
7. 10. 2025
Adresa
Vranov nad Dyjí
ID
295
Stavba
Montovaná
Stav objektu
Novostavba
Typ objektu
Patrový
Druh objektu
Samostatný
Užitná plocha
110 m2
Zastavěná plocha
72 m2
Podlahová plocha
110 m2
Plocha pozemku
1000 m2
Plocha zahrady
900 m2
Bezbarierový přístup

Kontaktovat makléře

Máte zájem o tento dům?

Tímto, v souladu s nařízením Evropského parlamentu a Rady (EU) 2016/679, v platném znění, prohlašuji, že mi je alespoň 16 let a uděluji tak svůj souhlas se zpracováním zadaných údajů (jméno, telefon, e-mail, ip adresa) společnosti B3 Technology, s.r.o., IČ: 07330600, se sídlem Novostavby 126/23, 435 11 Lom (správce dat), za účelem předání dotazu z tohoto formuláře Vámi vybranému inzerentovi a zpětného kontaktování mé osoby. Osobní údaje bude správce zpracovávat manuálně i automaticky přímo prostřednictvím svých zaměstnanců. Informace předané tímto formulářem budou uloženy v databázi správce maximálně po dobu 10 let. Odvolání souhlasu s uložením a zpracováním poskytnutých dat lze e-mailem na info@realitypro.eu. V případě podezření na neoprávněné použití Vámi poskytnutých údajů máte právo předat podnět k šetření Úřadu pro ochranu osobních údajů. Více informací
Chystáte se prodat nemovitost?
Pomůžeme Vám!

Inzerát si prohlédlo 16 lidí

Prodejce

Ing. Mgr. Gabriel  Miklík, MBA, MSc.

Ing. Mgr. Gabriel Miklík, MBA, MSc.

Hlídací pes

Chcete dostávat emailem podobné nabídky prodeje rodinných domů v Vranově nad Dyjí?

Podobné nemovitosti