Prodej atypického bytu, Doksy, Pod Borným, 73 m2 (ID: 2688775)

Pod Borným, Doksy, Staré Splavy

5 495 000 Kč /za nemovitost HYPOTÉKA od 24 559 Kč /za měsíc
Prověřené firmy v Doksech

Rekonstrukce

Úklidové služby

Informace k bytu

Nabízíme k prodeji zbrusu nové byty v kompletně nově zrekonstruovaném domě v atraktivní rekreační lokalitě ve Starých Splavech u Máchova jezera. Dům se nachází v klidné chatové oblasti Pod Borným, blízko lesů a přírody, 10min pěšky od jezera. Vhodné i k celoročnímu bydlení. Každý z apartmánu má vlastní el. vytápění a ohřev vody, TV+DATA skrze centrální anténu na domě, skladovací prostor, terasu, a parkovací stání před domem. V domě je celkem 7 bytových jednotek. V ceně každé jednotky je podíl 1/7 na kompletně vybaveném Wellness klubu(Sauna, vířivá vana, ochlazovací bazének, sprchy s ochlazovacím vědrem, WC, kuchyňka, vestavený audio sytém, podlahové vytápění, rekuperační jednotka, venkovní krytá terasa), který je všem majitelům k dispozici k užívání.

Byty jsou vhodné jak k rekreaci nebo trvalému bydlení, tak díky atraktivní lokalitě i jako zajímavá investiční příležitost. Je zde možnost spolupráce s lokální firmou za účelem kompletní správy pronájmu nemovitostí.


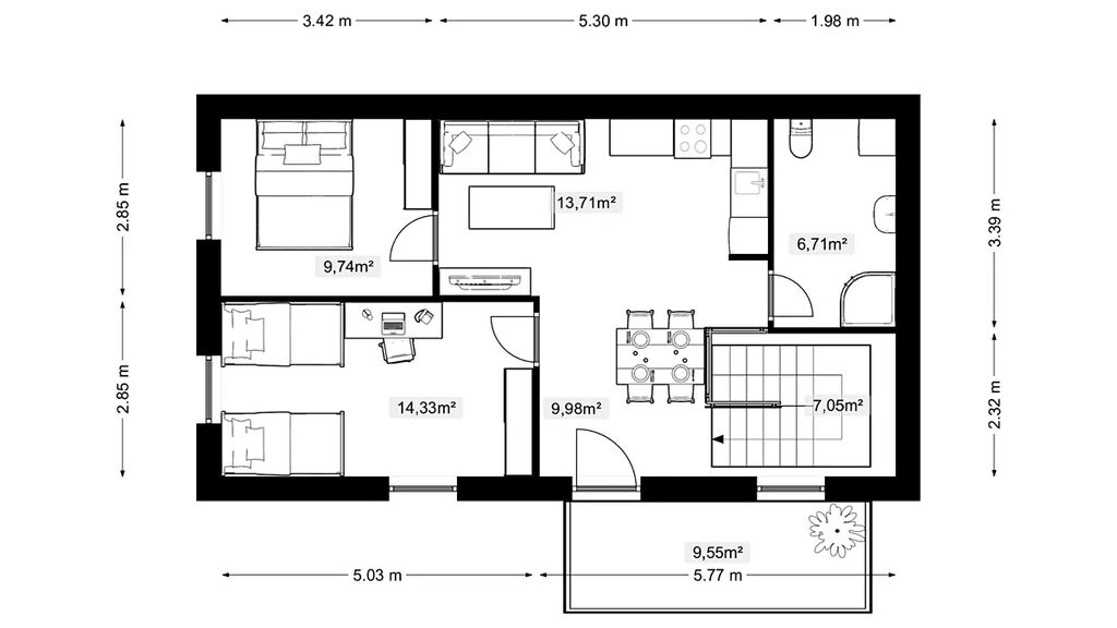
Zde je náhled na mezonetový byt o velikosti 3+kk 73m² + 10m² Balkón.
Apartmán je v přízemí vybaven podlahovým topením pod keramickou dlažbou, v patře el. topnými konvektory, a vlastním bojlerem k ohřevu vody.
přízemí: vstupní chodba, schodiště, úložná komora.
1.patro: Kuchyň s granitovým dřezem, vestavenou lednicí, myčkou, mikrovlnnou troubou, horkovzdušnou troubou, sklokeramickou deskou, a digestoří.
Koupelna s podlahovým vytápěním, se sprchovým koutem, závěsným WC, umyvadlovou skříňkou, a místem pro pračku. Obývací pokoj propojený s jídelnou a kuchyní se vstupem na rozměrný Balkón, a 2 ložnice.

V tomto domě k prodeji aktuálně tento poslední byt.

Pro více info a případnou prohlídku volejte.

Parametry bytu

Cena
5 495 000 Kč /za nemovitost Spočítat hypotéku
Aktualizováno
3. 10. 2025
Adresa
Pod Borným, Doksy, Staré Splavy
Stavba
Smíšená
Stav objektu
Po rekonstrukci
Patro
1.
Lokalita objektu
Klidná část obce
Vlastnictví
Osobní
Užitná plocha
73 m2
Odpad
Veřejná kanalizace
Topení
Lokální elektrické, Podlahové
Telekomunikace
Internet, Kabelové rozvody
Voda
Vodovod
Topné těleso
Podlahové vytápění
Zdroj topení
Elektrokotel
Balkon
Sklep
Parkování
Bazén

Kontaktovat makléře

Realitní kancelář

CONFETTI

Krásná vyhlídka 351, Liberec

Chystáte se prodat nemovitost?
Pomůžeme Vám!

Máte zájem o tento byt?

Tímto, v souladu s nařízením Evropského parlamentu a Rady (EU) 2016/679, v platném znění, prohlašuji, že mi je alespoň 16 let a uděluji tak svůj souhlas se zpracováním zadaných údajů (jméno, telefon, e-mail, ip adresa) společnosti B3 Technology, s.r.o., IČ: 07330600, se sídlem Novostavby 126/23, 435 11 Lom (správce dat), za účelem předání dotazu z tohoto formuláře Vámi vybranému inzerentovi a zpětného kontaktování mé osoby. Osobní údaje bude správce zpracovávat manuálně i automaticky přímo prostřednictvím svých zaměstnanců. Informace předané tímto formulářem budou uloženy v databázi správce maximálně po dobu 10 let. Odvolání souhlasu s uložením a zpracováním poskytnutých dat lze e-mailem na info@realitypro.eu. V případě podezření na neoprávněné použití Vámi poskytnutých údajů máte právo předat podnět k šetření Úřadu pro ochranu osobních údajů. Více informací
Chystáte se prodat nemovitost?
Pomůžeme Vám!

Inzerát si prohlédlo 2 lidí

Prodejce

Luboš Vít

Luboš Vít

Hlídací pes

Chcete dostávat emailem podobné nabídky prodeje atypických bytů v Doksech (okr. Česká Lípa)?

Podobné nemovitosti