Prodej rodinného domu, Boršice, 241 m2 (ID: 2688737)

Boršice

3 250 000 Kč /za nemovitost HYPOTÉKA od 14 526 Kč /za měsíc

(Provizi RK hradí prodávající)

Prověřené firmy v Boršicích

Informace k domu

Ve výhradním zastoupení majitele Vám nabízíme k prodeji rohový, patrový rodinný dům 3+1 v malebné obci Boršice, nedaleko Buchlovic.

Hledáte ideální kombinaci klidu venkova a dostupnosti městské infrastruktury? Tento dům s celkovou výměrou 512 m² je přesně to, co hledáte!

✅ Klíčové vlastnosti nemovitosti:
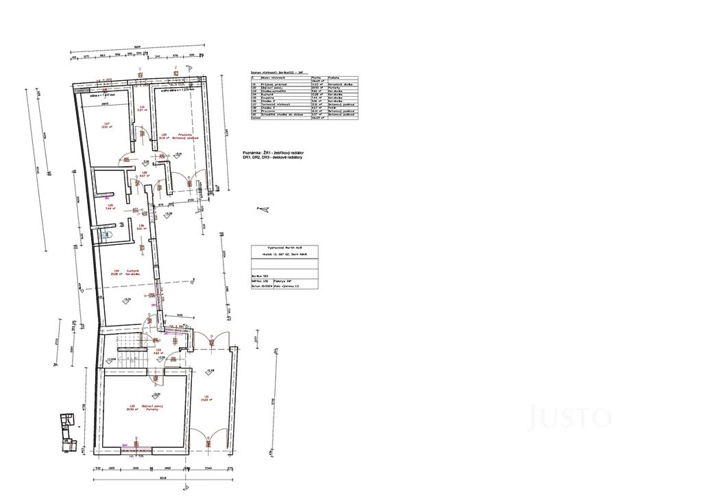
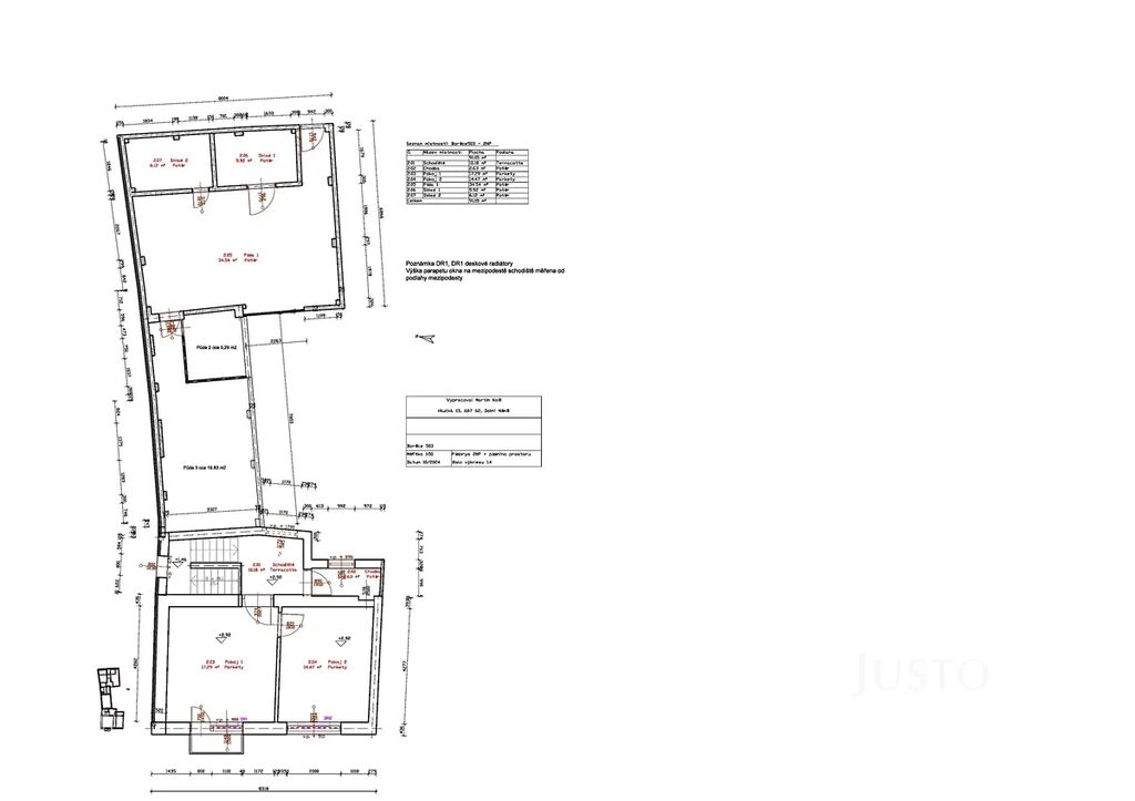
• Dispozice 3+1: Prostorný obývací pokoj, kuchyně, koupelna, sklad a garáž v přízemí. V patře dva pokoje a místnost se vstupem na půdu.
• Rekonstrukce: Probíhající rekonstrukce zahrnuje nové rozvody topení, elektroinstalaci v mědi a nové kanalizační a vodovodní přípojky.
• Inženýrské sítě: Dům je napojen na veřejný vodovod, kanalizaci, elektřinu a plyn. Topení zajišťuje plynový kotel, ohřev vody plynový bojler.
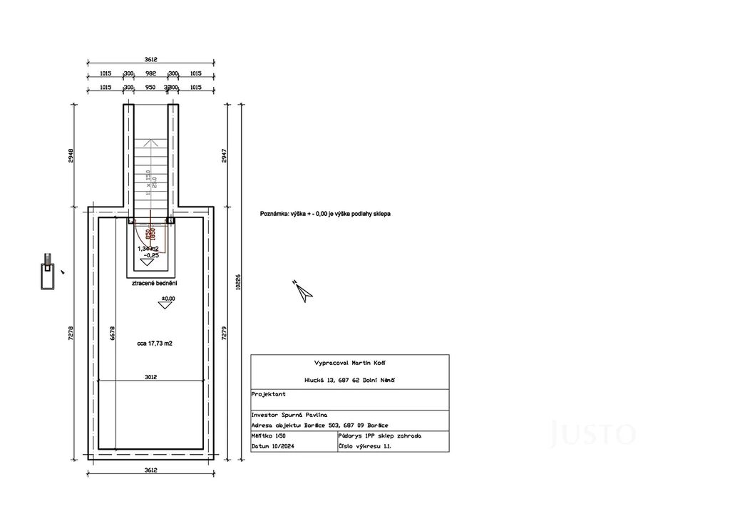
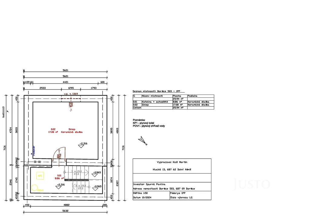
• Zahrada a příslušenství: K domu patří zahrada o výměře 352 m², předzahrádka, dvorek, garáž, dva sklepy, skladový prostor nad garáží, skleník a kovová konstrukce skladu.
• Užitná plocha: Celková užitná plocha domu je 241,51 m², z toho přízemí 106,69 m², patro 91,15 m² a sklepy 43,67 m².

✅ Lokalita:
• Obec Boršice: Nachází se pouhých 10 km od Uherského Hradiště a 3 km od Buchlovic. Pravidelné autobusové spojení do Uherského Hradiště zajišťuje snadnou dostupnost.
• Okolí: Klidná lokalita s krásnou přírodou a možnostmi pro volnočasové aktivity.

✅Vizualizace: Fotografie interiérů obsahují i vizualizace, které ukazují, jak by mohly místnosti vypadat po dokončení rekonstrukce.
✅Prohlídka: Rádi vám poskytneme další detaily a domluvíme prohlídku nemovitosti. Vyplňte formulář na konci inzerátu a do 15 minut obdržíte e-mail s pokyny k prohlídce a veškerými dostupnými informacemi a dokumenty k nemovitosti. Pokud e-mail neobdržíte do 30 minut, zkontrolujte složku nevyžádané pošty (Spam).

✅Financování:
Pomoc s financováním: Pomůžeme vám získat financování koupě této nemovitosti.
Majitel si vyhrazuje právo prodat nemovitost nejvýhodnější nabídce.

Neváhejte a domluvte si prohlídku ještě dnes!

Parametry domu

Cena
3 250 000 Kč /za nemovitost Spočítat hypotéku
Poznámka k ceně
Provizi RK hradí prodávající
Aktualizováno
3. 10. 2025
Adresa
Boršice
ID
J11013
Stavba
Cihlová
Stav objektu
Před rekonstrukcí
Vybaveno
Ne
Druh objektu
Rohový
Lokalita objektu
Klidná část obce
Užitná plocha
241 m2
Zastavěná plocha
115 m2
Podlahová plocha
250 m2
Plocha pozemku
512 m2
Plocha zahrady
325 m2
Třída energetické náročnosti
G - Mimořádně nehospodárná
Elektřina
230V, 400V
Plyn
Plynovod
Odpad
Veřejná kanalizace
Topení
Ústřední plynové
Komunikace
Asfaltová
Doprava
Silnice, Autobus
Voda
Vodovod
Topné těleso
Radiátory
Zdroj topení
Plynový kotel
Zdroj teplé vody
Plynový kotel
Garáž
Sklep
Výtah
Bezbarierový přístup
Parkování

Kontaktovat makléře

Realitní kancelář

PETR FOJTÍK reality, partner Justo

Masarykovo náměstí 34, Uherské Hradiště

Chystáte se prodat nemovitost?
Pomůžeme Vám!

Máte zájem o tento dům?

Tímto, v souladu s nařízením Evropského parlamentu a Rady (EU) 2016/679, v platném znění, prohlašuji, že mi je alespoň 16 let a uděluji tak svůj souhlas se zpracováním zadaných údajů (jméno, telefon, e-mail, ip adresa) společnosti B3 Technology, s.r.o., IČ: 07330600, se sídlem Novostavby 126/23, 435 11 Lom (správce dat), za účelem předání dotazu z tohoto formuláře Vámi vybranému inzerentovi a zpětného kontaktování mé osoby. Osobní údaje bude správce zpracovávat manuálně i automaticky přímo prostřednictvím svých zaměstnanců. Informace předané tímto formulářem budou uloženy v databázi správce maximálně po dobu 10 let. Odvolání souhlasu s uložením a zpracováním poskytnutých dat lze e-mailem na info@realitypro.eu. V případě podezření na neoprávněné použití Vámi poskytnutých údajů máte právo předat podnět k šetření Úřadu pro ochranu osobních údajů. Více informací
Chystáte se prodat nemovitost?
Pomůžeme Vám!

Inzerát si prohlédlo 1 lidí

Prodejce

Ing. Petr Fojtík

Ing. Petr Fojtík

Hlídací pes

Chcete dostávat emailem podobné nabídky prodeje rodinných domů v Boršicích?

Podobné nemovitosti