Pronájem skladu, Klínec, 188 m2 (ID: 2687203)

Klínec

51 700 Kč /za měsíc Získejte výhodnou HYPOTÉKU

(+ zálohy za služby a energie, + vratná kauce, + rezervační poplatek)

Prověřené firmy v Klínci

Informace k nemovitosti

POSLEDNÍ VOLNÁ VELKÁ NEBYTOVÁ JEDNOTKA - C3 !!!

Ve vzdálenosti necelých 20 minut jízdy od Prahy, v obci Klínec (okres Praha-západ), se nachází nově dokončený a plně zprovozněný multifunkční areál Mikropark, který nabízí moderní haly určené pro nerušící výrobu a skladování.

V rámci areálu je aktuálně k dispozici poslední volná větší nebytová jednotka na pronájem s označením C3 včetně možnosti pronájmu parkovacích stání.

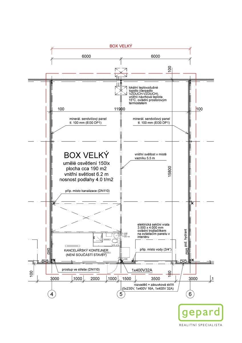
Základní specifika nebytové jednotky o velikosti 188 m2:
- Vnitřní půdorysné rozměry (k vnitřnímu líci opláštění): 15.8 x 11,9 m (+/- 0.25 m)
- Vnitřní světlost (mimo vazník): 6.2 m (+/- 0.10 m)
- Vnitřní světlost (v místě vazníku): 5.5 m (+/- 0.10m)
- 1x sekční průmyslová vrata: 3.500 x 4.000 mm (šířka x výška)
- 1x prosklený výkladec z hliníkových profilů 4.000 x 2.500 mm (šířka x výška)
- Součástí výkladce vstupní dveře (850 x 2.000 mm), kování klika-klika
- 1x PVC okno 4.000 x 1.200 mm (vč. dvou otvíravých křídel o šířce 850 mm)
- 1x tepelné čerpadlo VZDUCH-VZDUCH s návrh. teplotou 15°C (možno regulovat)
- Obvodový plášť: polyuretanový panel tl. 100 mm
- Dělící příčka: minerální panel tl. 100 mm
- Střešní plášť: minerální vata a expandovaný polystyren, celková tl. 220 mm
- Strojně hlazená betonová průmyslová podlaha o nosnosti 4.000 kg/m2
- Požární odolnost nosných konstrukcí a opláštění: 30 minut
- 1x požární hydrant
- 1x přípojné místo pro vodu (kohout 3/4") s výlevkou
- 2x přípojné místo pro kanalizaci (DN110)
- 1x zásuvka 400V 32A (příprava při připojení kancelářské buňky)
- 1x zásuvková skříň: 5x 230V, 1x 400V 16A a 1x 400V 32A
- 1x prostup střešním pláštěm DN75 (pro slaboproud, alt. klima jednotku)
- Připravenost pro vložení až čtyřech kancelářských kontejnerů
- Povrch - parkovací stání: vsakovací zámková dlažba
- Povrch - ostatní komunikace: kartáčovaný beton
- Zastávka PID na přilehlé D4

Nájemné 51.700 Kč + DPH / měsíc + zálohy za služby a energie. Vyhrazené parkovací stání: 1.500 Kč + DPH / měsíc.

Pro více informací kontaktujte realitní makléřku.

Parametry nemovitosti

Cena
51 700 Kč /za měsíc
Poznámka k ceně
+ zálohy za služby a energie, + vratná kauce, + rezervační poplatek
Aktualizováno
1. 10. 2025
Adresa
Klínec
ID
11631
Stavba
Smíšená
Stav objektu
Novostavba
Typ objektu
Přízemní
Lokalita objektu
Okraj obce
Užitná plocha
188 m2
Třída energetické náročnosti
B - Velmi úsporná
Elektřina
230V
Odpad
Veřejná kanalizace
Komunikace
Asfaltová
Telekomunikace
Internet
Doprava
Dálnice
Voda
Vodovod
Převod do OV

Kontaktovat makléře

Máte zájem o tuto nemovistost?

Tímto, v souladu s nařízením Evropského parlamentu a Rady (EU) 2016/679, v platném znění, prohlašuji, že mi je alespoň 16 let a uděluji tak svůj souhlas se zpracováním zadaných údajů (jméno, telefon, e-mail, ip adresa) společnosti B3 Technology, s.r.o., IČ: 07330600, se sídlem Novostavby 126/23, 435 11 Lom (správce dat), za účelem předání dotazu z tohoto formuláře Vámi vybranému inzerentovi a zpětného kontaktování mé osoby. Osobní údaje bude správce zpracovávat manuálně i automaticky přímo prostřednictvím svých zaměstnanců. Informace předané tímto formulářem budou uloženy v databázi správce maximálně po dobu 10 let. Odvolání souhlasu s uložením a zpracováním poskytnutých dat lze e-mailem na info@realitypro.eu. V případě podezření na neoprávněné použití Vámi poskytnutých údajů máte právo předat podnět k šetření Úřadu pro ochranu osobních údajů. Více informací
Chystáte se prodat nemovitost?
Pomůžeme Vám!

Inzerát si prohlédlo 5 lidí

Prodejce

BEM. Ivana Gašpar (Žďánská)

BEM. Ivana Gašpar (Žďánská)

Hlídací pes

Chcete dostávat emailem podobné nabídky pronájmu skladů v Klínci?

Podobné nemovitosti